Mammoth Plan
Ready to build
4222 Misty Woods Way, Sparks NV 89436
Home by D.R. Horton
at Golden Eagle
Last updated 2 days ago
The Price Range displayed reflects the base price of the homes built in this community.
You get to select from the many different types of homes built by this Builder and personalize your New Home with options and upgrades.
4 BR
3 BA
2 GR
2,414 SQ FT
Claim this listing to update information, get access to exclusive tools and more!

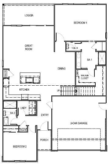
Floorplan 0 1/2
Overview
2 Stories
Single Family
Mammoth Plan Info
Check out our Mammoth floorplan at Golden Eagle! It offers plenty of space with 4 bedrooms, 3 bathrooms, 2,414 sq. ft., and a 2-car garage. This floorplan has three exterior options: Farmhouse, Craftsman, and West Coast. When you walk in the door, you'll be greeted by a secondary bedroom with a full bathroom nearby. You can access the garage or head upstairs through the hallway before reaching the open concept living area and primary bedroom on the first floor. The kitchen features shaker-style cabinetry, quartz countertops, and stainless-steel appliances. Gather around the kitchen island with a built-in sink. Relax and unwind in the primary bedroom with an attached primary bathroom. You'll have a large walk-in closet, double vanity, and separate WC, making getting ready in the morning a breeze. Heading to the second floor, you'll find a loft area just waiting to be turned into a bonus room. You'll also find two cozy carpeted secondary bedrooms with easy access to a separate bathroom. The laundry room is also centrally located for convenience. With the included smart home package, you'll never be far from home. Secure, monitor, and control your home through your phone, Qolsys panel, or voice. Contact us to learn more about the Mammoth floorplan yours today!
Floor plan center
View floor plan details for this property.
- Floor Plans
- Exterior Images
- Interior Images
- Other Media
Neighborhood
Community location & sales center
4222 Misty Woods Way
Sparks, NV 89436
4222 Misty Woods Way
Sparks, NV 89436
888-355-8096
Schools near Golden Eagle
- Washoe County School District
Actual schools may vary. Contact the builder for more information.
Amenities
Home details
Ready to build
Build the home of your dreams with the Mammoth plan by selecting your favorite options. For the best selection, pick your lot in Golden Eagle today!
Builder details
D.R. Horton
In 1978, D.R. Horton broke ground on our first home in Fort Worth, Texas. Since that day, the company has defined its success not by bricks and mortar, but by the satisfaction of the families that make our houses their homes. Our foundation is a single, guiding principle: a value-first dedication to the individual needs of each and every one of our nation’s homebuyers.
From first-time homebuyers to empty nesters, our family of brands provides a home for every stage in life. Our highly-trained, market experts are where you want to live, from New Jersey to Hawaii, providing unique, personalized services tailored to your individual needs. But the real value comes from the quality construction we put into every home, and the peace of mind that comes with a premium-backed warranty from America’s Number One Homebuilder.
We’ve come a long way, and while more people choose our family of brands over any other builder in the country, we never forget the most important thing of all – the families that choose us for their place to call home.
So continue to live out those dreams, America, and know we’ll be here for you every step of the way.
More new homes in Sparks, Nevada
Mammoth Plan by D.R. Horton
saved to favorites!
To see all the homes you’ve saved, visit the My Favorites section of your account.
Discover More Great Communities
Select additional listings for more information
Way to Go!
An agent will be in contact soon!
