McKenzie Plan
Ready to build
Old Ferry Road, Santa Rosa Beach FL 32459
Home by D.R. Horton
Last updated 4 days ago
The Price Range displayed reflects the base price of the homes built in this community.
You get to select from the many different types of homes built by this Builder and personalize your New Home with options and upgrades.
5 BR
3 BA
2 GR
3,129 SQ FT
Claim this listing to update information, get access to exclusive tools and more!

Floorplan 1 1/1
Overview
1 Story
2 Car Garage
3 Bathrooms
3129 Sq Ft
5 Bedrooms
Single Family
McKenzie Plan Info
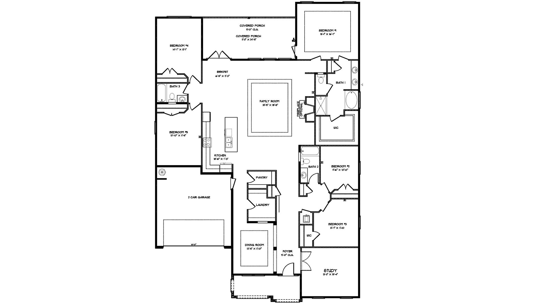
Welcome to the McKenzie, a new home floor plan in Holley Grove at Peach Creek. This home has a bright welcoming foyer that leads you past the appointed formal dining room and a sizable study. As you enter the grand family room, you will notice the seamless transition with EVP flooring flowing through the home. The kitchen is the central focal point of this home with its large layout and breakfast area, making it perfect for hosting gatherings or enjoying quiet evenings. The open concept design of this home offers functionality and warmth, and the trey ceilings lend to the sense of height in the dining area, family room, and primary bedroom. The kitchen has a large center island, generous cabinetry, and a walk-in pantry to accommodate your appliance and grocery storage needs. A dedicated hallway connects the kitchen to the dining room, ensuring seamless service during meals. The primary bedroom has trey ceilings and features a luxurious ensuite with a separate shower, soaking tub, and dual-sink vanity, complemented by a spacious walk-in closet. The home's thoughtful layout places two guest bedrooms near the kitchen and an additional two near the foyer, each pair sharing a well-appointed bathroom. Additional conveniences include a large laundry room and two covered patios which are perfect for outdoor relaxation. With its elegant design and sunlit interiors. To explore the McKenzie floor plan further and envision your future here, please contact a D.R. Horton repres
Floor plan center
View floor plan details for this property.
- Floor Plans
- Exterior Images
- Interior Images
- Other Media
Neighborhood
Community location & sales center
Old Ferry Road
Santa Rosa Beach, FL 32459
Old Ferry Road
Santa Rosa Beach, FL 32459
888-790-3488
Schools near Holley Grove at Peach Creek - Waterfront Homes
- Walton
Actual schools may vary. Contact the builder for more information.
Amenities
Home details
Ready to build
Build the home of your dreams with the Mckenzie plan by selecting your favorite options. For the best selection, pick your lot in Holley Grove at Peach Creek - Waterfront Homes today!
Builder details
D.R. Horton
In 1978, D.R. Horton broke ground on our first home in Fort Worth, Texas. Since that day, the company has defined its success not by bricks and mortar, but by the satisfaction of the families that make our houses their homes. Our foundation is a single, guiding principle: a value-first dedication to the individual needs of each and every one of our nation’s homebuyers.
From first-time homebuyers to empty nesters, our family of brands provides a home for every stage in life. Our highly-trained, market experts are where you want to live, from New Jersey to Hawaii, providing unique, personalized services tailored to your individual needs. But the real value comes from the quality construction we put into every home, and the peace of mind that comes with a premium-backed warranty from America’s Number One Homebuilder.
We’ve come a long way, and while more people choose our family of brands over any other builder in the country, we never forget the most important thing of all – the families that choose us for their place to call home.
So continue to live out those dreams, America, and know we’ll be here for you every step of the way.
More new homes in Santa Rosa Beach, Florida
McKenzie Plan by D.R. Horton
saved to favorites!
To see all the homes you’ve saved, visit the My Favorites section of your account.
Discover More Great Communities
Select additional listings for more information
Way to Go!
An agent will be in contact soon!
