2945 W LaGrand Street 1196 (Millbrook)
Under Construction
Cedar City, UT 84720
Home by D.R. Horton
Last updated 20 hours ago
The Price Range displayed reflects the base price of the homes built in this community.
You get to select from the many different types of homes built by this Builder and personalize your New Home with options and upgrades.
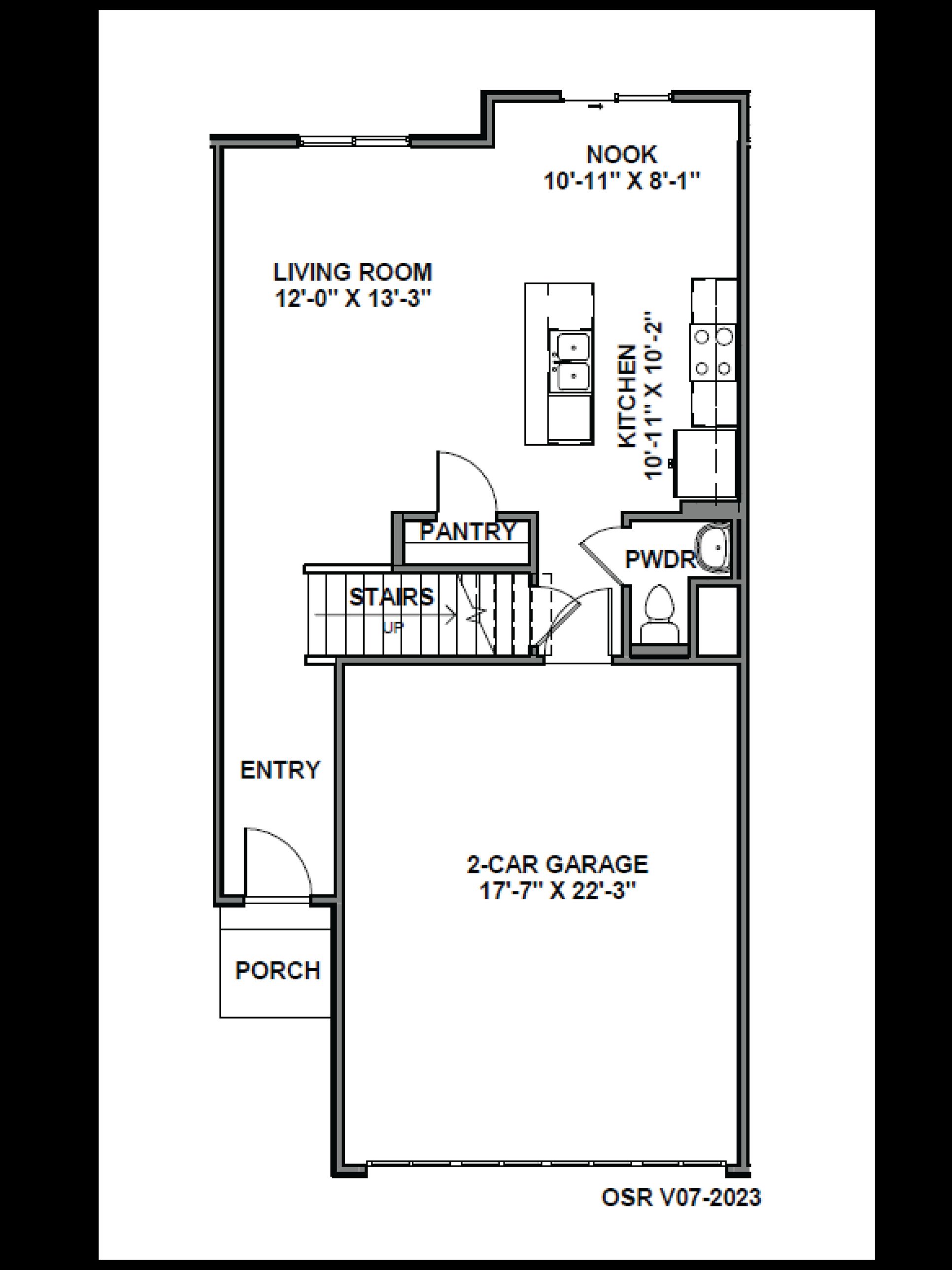
3 BR
2.5 BA
2 GR
2,187 SQ FT
Claim this listing to update information, get access to exclusive tools and more!

Floor Plan 1/4
Overview
1 Half Bathroom
2 Bathrooms
2 Car Garage
2 Stories
2187 Sq Ft
3 Bedrooms
Multi Family
2945 W LaGrand Street 1196 (Millbrook) Home Info
The property is located at 2945 W LaGrand Street CEDAR CITY UT 84720 priced at 319990, the square foot and stories are 1555, 2.The number of bath is 2, halfbath is 1 there are 3 bedrooms and 2 garages. For more details please, call or email.
Floor plan center
View floor plan details for this property.
- Floor Plans
- Exterior Images
- Interior Images
- Other Media
Neighborhood
Community location & sales center
2915 W LaGrand Street
Cedar City, UT 84720
2915 W LaGrand Street
Cedar City, UT 84720
888-790-3488
Schools near Old Sorrel Townhomes
- Iron County School District
Actual schools may vary. Contact the builder for more information.
Amenities
Home details
Now building
This home is currently under construction at 2945 W LaGrand Street 1196 and will soon be available for move-in at Old Sorrel Townhomes. Contact D.R. Horton today to lock in your options!
Builder details
D.R. Horton
In 1978, D.R. Horton broke ground on our first home in Fort Worth, Texas. Since that day, the company has defined its success not by bricks and mortar, but by the satisfaction of the families that make our houses their homes. Our foundation is a single, guiding principle: a value-first dedication to the individual needs of each and every one of our nation’s homebuyers.
From first-time homebuyers to empty nesters, our family of brands provides a home for every stage in life. Our highly-trained, market experts are where you want to live, from New Jersey to Hawaii, providing unique, personalized services tailored to your individual needs. But the real value comes from the quality construction we put into every home, and the peace of mind that comes with a premium-backed warranty from America’s Number One Homebuilder.
We’ve come a long way, and while more people choose our family of brands over any other builder in the country, we never forget the most important thing of all – the families that choose us for their place to call home.
So continue to live out those dreams, America, and know we’ll be here for you every step of the way.
More new homes in Cedar City, Utah
2945 W LaGrand Street 1196 (Millbrook) by D.R. Horton
saved to favorites!
To see all the homes you’ve saved, visit the My Favorites section of your account.
Discover More Great Communities
Select additional listings for more information
Way to Go!
An agent will be in contact soon!
