MISTY Plan
Ready to build
23163 Bushel Drive, Fairhope AL 36532
Home by D.R. Horton
Last updated 1 day ago
The Price Range displayed reflects the base price of the homes built in this community.
You get to select from the many different types of homes built by this Builder and personalize your New Home with options and upgrades.
4 BR
3 BA
2 GR
2,030 SQ FT
Claim this listing to update information, get access to exclusive tools and more!

Floorplan 0 1/1
Overview
1 Story
Single Family
MISTY Plan Info
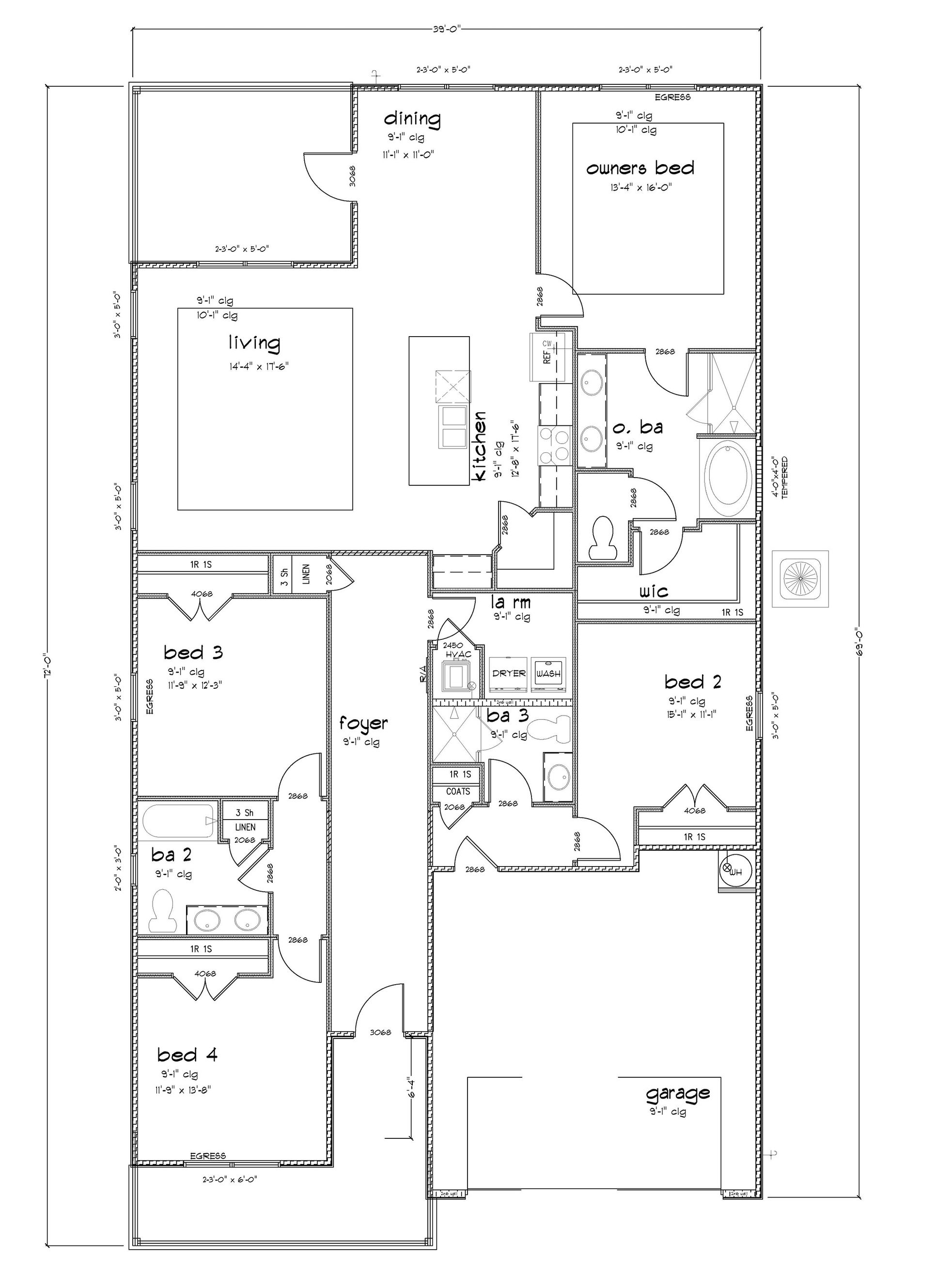
Welcome to the Misty floorplan in Harvest Green in Fairhope, Alabama. This beautiful floor plan has so much to offer with 4 bedrooms, 3 bathrooms and a 2-car garage all on one-level. The Misty features 2,030 square feet with an abundance of space to enjoy. The Misty is a split bedroom home with a seamless flow to maximize privacy and flexibility. As you enter the foyer, to one side you will pass the hall to two bedrooms with a bathroom conveniently between them. On the other side you will pass a hall leading to another bathroom and bedroom as well as the garage. The laundry room is just past the third bedroom before you enter the large open concept kitchen which overlooks the living room and dining room. This space is perfect for entertaining from game days to holidays and everything in between. This floorplan also includes a covered back porch of off the dining room area, so you can easily extend fun outdoors. The owner's suite is in the back corner of the home for additional privacy behind the dining area. It leads to a luxurious bathroom featuring a vanity with 2 sinks, a separate shower and soaking tub, an enclosed toilet room and a large walk-in closet. You will enjoy getting ready or unwinding from your days here. Schedule your tour to learn more and find your home in home in Harvest Green today! Harvest Green is centrally located off of Highway 181 with great convenience to wherever life takes you, and this community also boasts award-winning Fairhope schools. With
Floor plan center
View floor plan details for this property.
- Floor Plans
- Exterior Images
- Interior Images
- Other Media
Neighborhood
Community location & sales center
23163 Bushel Drive
Fairhope, AL 36532
23163 Bushel Drive
Fairhope, AL 36532
888-790-3488
Schools near Harvest Green East
- Baldwin County Public Schools
- Fairhope East Elementary School
- Fairhope Middle School
- Fairhope High School
Actual schools may vary. Contact the builder for more information.
Amenities
Home details
Ready to build
Build the home of your dreams with the MISTY plan by selecting your favorite options. For the best selection, pick your lot in Harvest Green East today!
Nearby schools
Baldwin County Public Schools
Fairhope East Elementary School
Elementary-Middle school. Grades KG to 6
Public school
Class ratio: 1: 15
Enrollment: 740
251-928-8400
20698 Bishop Rd, Fairhope, AL, 36532
Fairhope Middle School
Middle school. Grades 7 to 8
Public school
Class ratio: 1: 16
Enrollment: 777
251-928-2573
2 Pirate Dr, Fairhope, AL, 36532
Fairhope High School
High school. Grades 9 to 12
Public school
Class ratio: 1: 16
Enrollment: 1629
251-928-8309
1 Pirate Dr, Fairhope, AL, 36532
Actual schools may vary. We recommend verifying with the local school district, the school assignment and enrollment process.
Neighborhood amenities
Publix
0.88 mile away
9867 State Highway 104
Publix
2.30 miles away
22530 US Highway 98
ALDI
2.45 miles away
10101 County Road 48
Walmart Supercenter
2.60 miles away
10040 County Road 48
Brainology-Brian Food 625 Pinehurst Dr Gulf Shores 967-1918
3.03 miles away
86 Plantation Pointe
Walmart Bakery
2.60 miles away
10040 County Road 48
Virginia's Health Foods
3.18 miles away
280 Eastern Shore Shopping Ctr
Strawcherry Two LLC
3.27 miles away
199 Baldwin Sq
Healing Touch Chiropractic
3.47 miles away
119 Professional Park Dr
Warehouse Bakery & Donuts
3.65 miles away
759 Nichols Ave
Shanghai Cottage
2.35 miles away
22530 US Highway 98
Hunt Brothers Pizza
2.53 miles away
9990 Fairhope Ave
Krispy Krunchy Chicken
2.64 miles away
8961 Fairhope Ave
Pelican's SnoBalls
2.72 miles away
23825 US Highway 98
Homestead Village Restaurant
2.80 miles away
924 Plantation Blvd
The Coffee Loft
3.37 miles away
503 N Section St
Refuge Coffee
3.86 miles away
4 S Bancroft St
Starbucks
3.91 miles away
1698 US Highway 98
Mr Gene's Beans
4.00 miles away
302 De La Mare Ave
Doughnuts Glazed
4.39 miles away
2200 US Highway 98
Private Gallery
1.68 miles away
9902 Vance Ln
Sweet Seconds Boutique
1.78 miles away
21193 State Highway 181
Walmart Supercenter
2.60 miles away
10040 County Road 48
Sassy Fans
2.89 miles away
24208 US Highway 98
Game Day Sports LLC
2.93 miles away
25945 State Highway 181
Bill-E's
3.03 miles away
19992 State Highway 181
Plow
3.05 miles away
96 Plantation Pointe
Plow Bar
3.05 miles away
96 Plantation Pointe
Agave
3.14 miles away
104 Ecor Rouge PL Shop Ctr
Fairhope's Grill & Bar
3.16 miles away
210 Eastern Shore Shopping Ctr
Please note this information may vary. If you come across anything inaccurate, please contact us.
Builder details
D.R. Horton
In 1978, D.R. Horton broke ground on our first home in Fort Worth, Texas. Since that day, the company has defined its success not by bricks and mortar, but by the satisfaction of the families that make our houses their homes. Our foundation is a single, guiding principle: a value-first dedication to the individual needs of each and every one of our nation’s homebuyers.
From first-time homebuyers to empty nesters, our family of brands provides a home for every stage in life. Our highly-trained, market experts are where you want to live, from New Jersey to Hawaii, providing unique, personalized services tailored to your individual needs. But the real value comes from the quality construction we put into every home, and the peace of mind that comes with a premium-backed warranty from America’s Number One Homebuilder.
We’ve come a long way, and while more people choose our family of brands over any other builder in the country, we never forget the most important thing of all – the families that choose us for their place to call home.
So continue to live out those dreams, America, and know we’ll be here for you every step of the way.
More new homes in Fairhope, Alabama
MISTY Plan by D.R. Horton
saved to favorites!
To see all the homes you’ve saved, visit the My Favorites section of your account.
Discover More Great Communities
Select additional listings for more information
Way to Go!
An agent will be in contact soon!
