Mountain Vista Floor Plan Plan
Ready to build
Yakima WA 98901
Custom Home by Lexar Homes
at Lexar Homes
Last updated 03/01/2026
The Price Range displayed reflects the base price of the homes built in this community.
You get to select from the many different types of homes built by this Builder and personalize your New Home with options and upgrades.
3 BR
2 BA
2 GR
1,572 SQ FT
Claim this listing to update information, get access to exclusive tools and more!

Exterior 1/3
Overview
Single Family
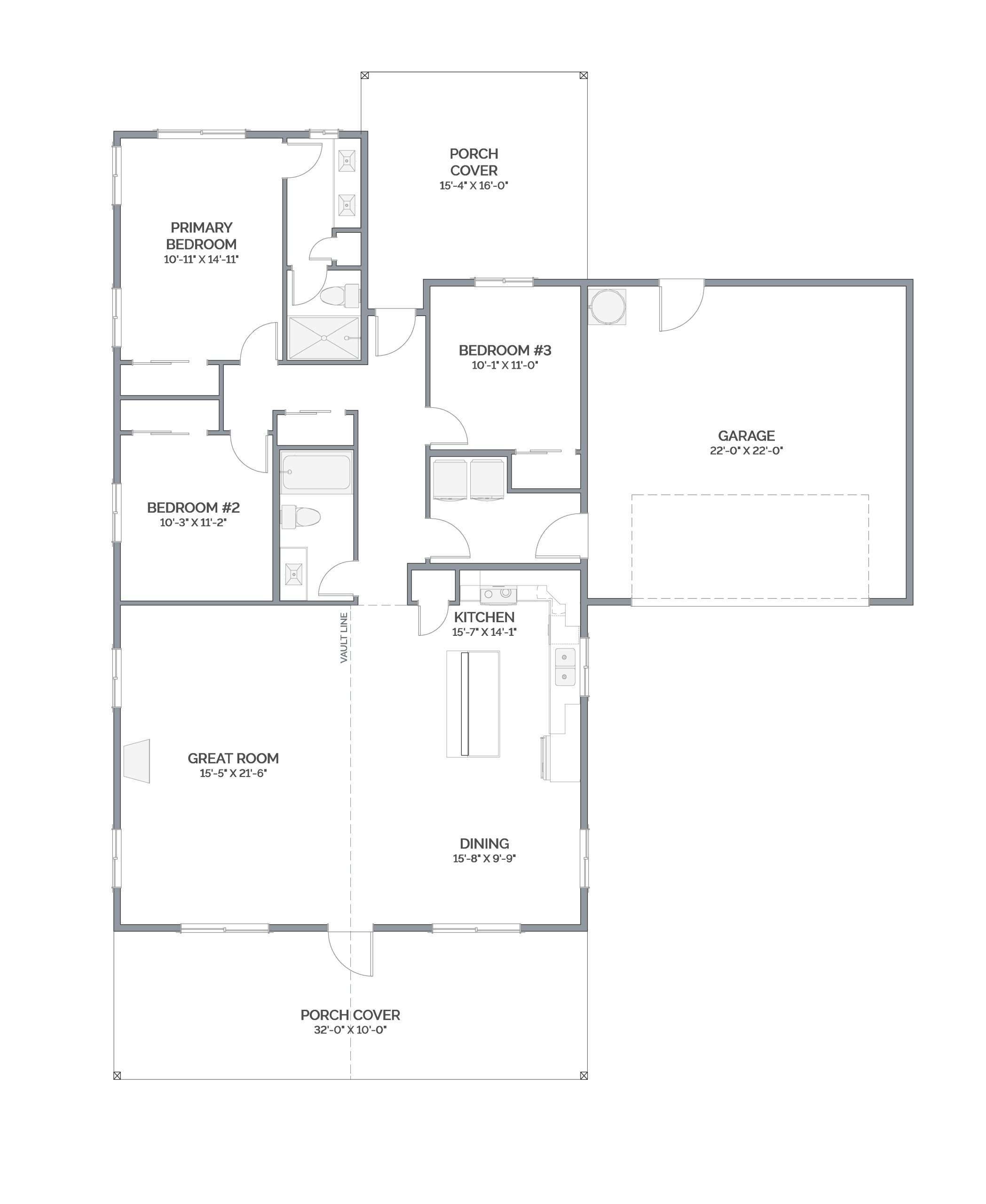
Mountain Vista Floor Plan Plan Info
While the mountain vista floor plan isnt huge it still has room to include all the features youve been dreaming of! this popular plan is perfect for making your house a home! the open floor plan lets you design living areas to best fit your vision. The kitchen is snuggled into one corner of the main living area and is complete with a spacious island countertop and plenty of cabinets. Three bedrooms and two full bathrooms in this home provide convenient close proximity thats ideal for families with kids or those working from home plus consider turning the second bedroom into an office/den/hobby room or connecting it as part of the primary suite by adding a sitting area & dressing room. The outside of the home features an impressive vaulted covered patio sure to make passersby take notice!.
Neighborhood
Community location & sales center
Yakima, WA 98901
Yakima, WA 98901
888-790-3488
Schools near Lexar Homes
- East Valley School District (yakima)
- Yakima School District
Actual schools may vary. Contact the builder for more information.
Builder details
Lexar Homes
More new homes in Yakima, Washington
Mountain Vista Floor Plan Plan by Lexar Homes
saved to favorites!
To see all the homes you’ve saved, visit the My Favorites section of your account.
Discover More Great Communities
Select additional listings for more information
Way to Go!
An agent will be in contact soon!