MUIRFIELD Plan
Ready to build
18701 E 99th Ave, Commerce City CO 80022
Home by D.R. Horton
Last updated 1 day ago
The Price Range displayed reflects the base price of the homes built in this community.
You get to select from the many different types of homes built by this Builder and personalize your New Home with options and upgrades.
3 BR
2.5 BA
2 GR
1,513 SQ FT
Claim this listing to update information, get access to exclusive tools and more!

Floorplan 0 1/2
Overview
1 Half Bathroom
1513 Sq Ft
2 Bathrooms
2 Car Garage
2 Stories
3 Bedrooms
Duplex
MUIRFIELD Plan Info
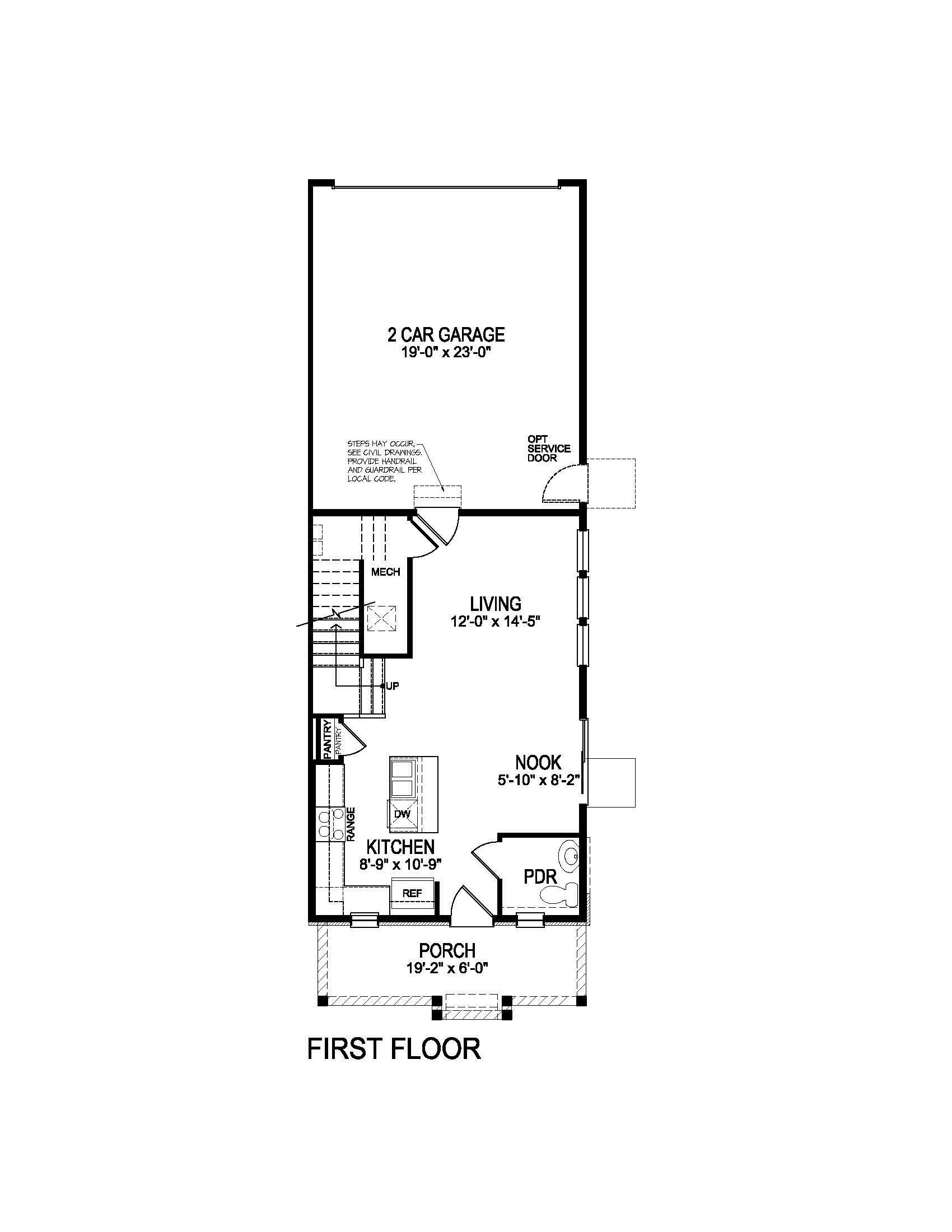
Welcome home to the Muirfield floor plan, located in Commerce City, Colorado in the Paired Homes at Settlers Crossing new home community. The Muirfield is a 2-story home featuring 3-bedrooms, 2.5-bathrooms, and 1,500 sq.ft of living space. As you enter from the covered front porch you will be welcomed by the beautiful kitchen that overlooks the dining and living area. The spacious kitchen features premium cabinetry, stainless steel appliances, a pantry, and an expansive island perfect for food prepping, dining or entertaining. The dining nook seamlessly flows from the kitchen providing optimal functionality. The living room located near the rear of the home and next to the 2-car garage is spacious allowing for a variety of set-ups and ample seating. An open loft space sits at the top of the stairs, providing you additional space for all of your needs, whether it be a second living area, game room, or office. Two bedrooms located next two each other share one well appointed bathroom. The laundry room is centrally located, with space for a full sized washer and dryer and additional storage. The primary bedroom provides plenty of space for a variety of set-ups, the en-suite bathroom with double vanity sinks is a dream and connects to the oversized walk-in closet. The Muirfield floor plan was thoughtfully designed with space in mind, contact us today to make the Muirfield your new home.
Floor plan center
View floor plan details for this property.
- Floor Plans
- Exterior Images
- Interior Images
- Other Media
Neighborhood
Community location & sales center
18701 E 99th Ave
Commerce City, CO 80022
18701 E 99th Ave
Commerce City, CO 80022
888-355-8096
Schools near Settlers Crossing
- Brighton School District No. 27j
- Mapleton Public Schools
- Trailside Academy
Actual schools may vary. Contact the builder for more information.
Amenities
Home details
Ready to build
Build the home of your dreams with the MUIRFIELD plan by selecting your favorite options. For the best selection, pick your lot in Settlers Crossing today!
Nearby schools
Mapleton Public Schools
Elementary-Middle school. Grades PK to 8.
- Public school
- Teacher - student ratio: 1:19
- Students enrolled: 496
2300 West 67th Pl., Denver, CO, 80221
303-853-1000
Actual schools may vary. We recommend verifying with the local school district, the school assignment and enrollment process.
Neighborhood amenities
King Soopers
2.36 miles away
15051 E 104th Ave
Sprouts Farmers Market
5.35 miles away
5670 N Tower Rd
Mile High Grocery Supply Inc
6.11 miles away
9101 E 89th Ave
King Soopers
6.33 miles away
18605 Green Valley Ranch Blvd
Natural Grocers
6.41 miles away
18471 Green Valley Ranch Blvd
Buttercreme Cakes
1.57 miles away
16240 E 100th Ave
Walmart Bakery
6.65 miles away
5141 Chambers Rd
Einstein Bros Bagels
6.91 miles away
8500 Pena Boulevard Terminal C
Walmart Bakery
7 miles away
60 W Bromley Ln
La Favorita Foods
7.18 miles away
9330 Brighton Rd
SONIC Drive-in
0.51 mile away
10319 Tower Rd
Del Taco
0.62 mile away
18260 E 104th Ave
Subway
0.64 mile away
18220 E 104th Ave
China Red
2.01 miles away
15550 E 103rd Pl
Las Margas at Reunion
2.01 miles away
15550 E 103rd Pl
Starbucks
0.52 mile away
10339 Tower Rd
Reunion Coffee House
0.98 mile away
10601 Reunion Pkwy
Dutch Bros Coffee
2.10 miles away
15431 E 104th Ave
Starbucks
2.36 miles away
15051 E 104th Ave
Dunkin'
3.87 miles away
7680 Pena Blvd
Famous Footwear
5.22 miles away
2431 Prairie Center Pkwy
Kohl's
5.28 miles away
2425 Prairie Center Pkwy
Johnston & Murphy
5.30 miles away
8900 Pena Blvd
Red Wing Shoe Store
5.31 miles away
2239 Prairie Center Pkwy
Ross Dress For Less
5.37 miles away
2275 Prairie Center Pkwy
State House 38
2.04 miles away
15591 E 104th Ave
Tower Tap & Grill
3.75 miles away
6900 Tower Rd
Arapahoe Springs Bar & Grill
4.26 miles away
6700 N Gaylord Rockies Blvd
Mountain Pass Sports Bar
4.26 miles away
6700 N Gaylord Rockies Blvd
Pinyons
4.26 miles away
6700 N Gaylord Rockies Blvd
Please note this information may vary. If you come across anything inaccurate, please contact us.
Builder details
D.R. Horton
In 1978, D.R. Horton broke ground on our first home in Fort Worth, Texas. Since that day, the company has defined its success not by bricks and mortar, but by the satisfaction of the families that make our houses their homes. Our foundation is a single, guiding principle: a value-first dedication to the individual needs of each and every one of our nation’s homebuyers.
From first-time homebuyers to empty nesters, our family of brands provides a home for every stage in life. Our highly-trained, market experts are where you want to live, from New Jersey to Hawaii, providing unique, personalized services tailored to your individual needs. But the real value comes from the quality construction we put into every home, and the peace of mind that comes with a premium-backed warranty from America’s Number One Homebuilder.
We’ve come a long way, and while more people choose our family of brands over any other builder in the country, we never forget the most important thing of all – the families that choose us for their place to call home.
So continue to live out those dreams, America, and know we’ll be here for you every step of the way.
More new homes in Commerce City, Colorado
MUIRFIELD Plan by D.R. Horton
saved to favorites!
To see all the homes you’ve saved, visit the My Favorites section of your account.
Discover More Great Communities
Select additional listings for more information
Way to Go!
An agent will be in contact soon!
