NEUVILLE Plan
Ready to build
6615 Bluebell St, Papillion NE 68133
Home by D.R. Horton
at Oak Leaf
Last updated 4 days ago
The Price Range displayed reflects the base price of the homes built in this community.
You get to select from the many different types of homes built by this Builder and personalize your New Home with options and upgrades.
3 BR
2 BA
2 GR
1,635 SQ FT
Claim this listing to update information, get access to exclusive tools and more!

Elevation 19 1/6
Overview
1 Story
Single Family
NEUVILLE Plan Info
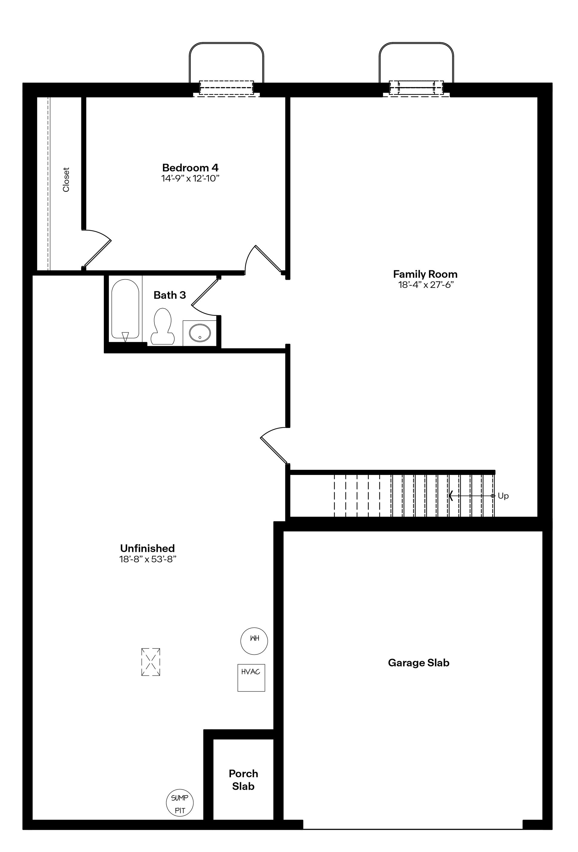
Welcome home to the Neuville floor plan at Oak Leaf in Papillion, Ne. This 3-bedroom, 2-bathroom ranch offers 1,635 sq. ft. of thoughtfully designed living space with an open-concept kitchen overlooking the living and dining areas and back patio. Making your way into the heart of the home, the living room features an electric fireplace and large windows that fill the home with natural light. The kitchen flows seamlessly from the living room which includes, white cabinetry, quartz countertops, stainless steel appliances, a large island, and a corner pantry for ample storage. Sliding glass doors open to the back patio/deck, making entertaining easy. The primary suite at the rear of the home offers a private bathroom with double vanity and walk-in closet, while two additional bedrooms share a second bathroom at the front of the home. Carpeted floors and sizable closets provide comfort and flexibility for bedrooms, offices, or bonus spaces. A convenient laundry room with shelving and a 2-3 car garage complete this home. Discover the Neuville floor plan and make it your new home at Oak Leaf!
Floor plan center
View floor plan details for this property.
- Floor Plans
- Exterior Images
- Interior Images
- Other Media
Neighborhood
Community location & sales center
6615 Bluebell St
Papillion, NE 68133
6615 Bluebell St
Papillion, NE 68133
888-790-3488
Schools near Oak Leaf
- South Sarpy District 46
- Westmont Elementary School
- Platteview Central Junior High School
Actual schools may vary. Contact the builder for more information.
Amenities
Home details
Ready to build
Build the home of your dreams with the NEUVILLE plan by selecting your favorite options. For the best selection, pick your lot in Oak Leaf today!
Nearby schools
South Sarpy District 46
Westmont Elementary School
Elementary-Middle school. Grades PK to 6
Public school
Class ratio: 1: 12
Enrollment: 271
402-895-9602
13210 Glenn St, Omaha, NE, 68138
Platteview Central Junior High School
High school. Grades 9 to 12
Public school
Class ratio: 1: 13
Enrollment: 181
402-339-3606
14801 S 108th St, Springfield, NE, 68059
Actual schools may vary. We recommend verifying with the local school district, the school assignment and enrollment process.
Builder details
D.R. Horton
In 1978, D.R. Horton broke ground on our first home in Fort Worth, Texas. Since that day, the company has defined its success not by bricks and mortar, but by the satisfaction of the families that make our houses their homes. Our foundation is a single, guiding principle: a value-first dedication to the individual needs of each and every one of our nation’s homebuyers.
From first-time homebuyers to empty nesters, our family of brands provides a home for every stage in life. Our highly-trained, market experts are where you want to live, from New Jersey to Hawaii, providing unique, personalized services tailored to your individual needs. But the real value comes from the quality construction we put into every home, and the peace of mind that comes with a premium-backed warranty from America’s Number One Homebuilder.
We’ve come a long way, and while more people choose our family of brands over any other builder in the country, we never forget the most important thing of all – the families that choose us for their place to call home.
So continue to live out those dreams, America, and know we’ll be here for you every step of the way.
More new homes in Papillion, Nebraska
NEUVILLE Plan by D.R. Horton
saved to favorites!
To see all the homes you’ve saved, visit the My Favorites section of your account.
Discover More Great Communities
Select additional listings for more information
Way to Go!
An agent will be in contact soon!
