NEUVILLE Plan
Ready to build
17928 Meriwether Lewis St, Ruther Glen VA 22546
Home by D.R. Horton
Last updated 1 day ago
The Price Range displayed reflects the base price of the homes built in this community.
You get to select from the many different types of homes built by this Builder and personalize your New Home with options and upgrades.
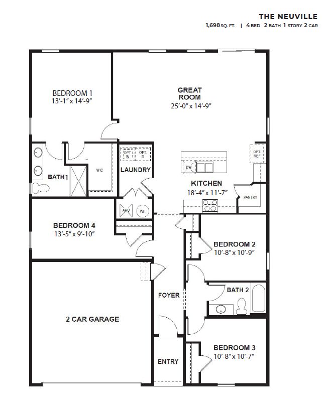
4 BR
2 BA
2 GR
1,698 SQ FT
Claim this listing to update information, get access to exclusive tools and more!

Floorplan 0 1/1
Overview
1 Story
Single Family
NEUVILLE Plan Info
Welcome to the Neuville, a beautifully designed 1,698 sq ft single-story home offering a modern and spacious open-concept living space. Perfect for families or those seeking one-level living, this home features a large great room, a kitchen with a large center island and walk-in pantry, ideal for entertaining or family gatherings. The laundry room offers convenience and functionality. The primary suite is a true retreat, complete with a sizeable walk-in closet and a luxurious full bath featuring separate vanities for added comfort. In addition, a full bathroom and 3 additional bedrooms provide plenty of space for family, guests, or a home office. The Neuville offers everything you need in a home, all on one spacious level!
Floor plan center
View floor plan details for this property.
- Floor Plans
- Exterior Images
- Interior Images
- Other Media
Neighborhood
Community location & sales center
17928 Meriwether Lewis St
Ruther Glen, VA 22546
17928 Meriwether Lewis St
Ruther Glen, VA 22546
888-355-8096
Schools near Ladysmith Village
- Caroline County Public Schools
- Caroline Middle School
- Caroline High School
Actual schools may vary. Contact the builder for more information.
Amenities
Home details
Ready to build
Build the home of your dreams with the NEUVILLE plan by selecting your favorite options. For the best selection, pick your lot in Ladysmith Village today!
Nearby schools
Caroline County Public Schools
Caroline Middle School
Middle school. Grades 6 to 8
Public school
Class ratio: 1: 16
Enrollment: 973
804-633-6561
13325 Devils Three Jump Rd, Milford, VA, 22514
Caroline High School
High school. Grades 9 to 12
Public school
Class ratio: 1: 15
Enrollment: 1251
804-633-9886
19155 Rogers Clark Blvd, Milford, VA, 22514
Actual schools may vary. We recommend verifying with the local school district, the school assignment and enrollment process.
Builder details
D.R. Horton
In 1978, D.R. Horton broke ground on our first home in Fort Worth, Texas. Since that day, the company has defined its success not by bricks and mortar, but by the satisfaction of the families that make our houses their homes. Our foundation is a single, guiding principle: a value-first dedication to the individual needs of each and every one of our nation’s homebuyers.
From first-time homebuyers to empty nesters, our family of brands provides a home for every stage in life. Our highly-trained, market experts are where you want to live, from New Jersey to Hawaii, providing unique, personalized services tailored to your individual needs. But the real value comes from the quality construction we put into every home, and the peace of mind that comes with a premium-backed warranty from America’s Number One Homebuilder.
We’ve come a long way, and while more people choose our family of brands over any other builder in the country, we never forget the most important thing of all – the families that choose us for their place to call home.
So continue to live out those dreams, America, and know we’ll be here for you every step of the way.
More new homes in Ruther Glen, Virginia
NEUVILLE Plan by D.R. Horton
saved to favorites!
To see all the homes you’ve saved, visit the My Favorites section of your account.
Discover More Great Communities
Select additional listings for more information
Way to Go!
An agent will be in contact soon!
