Newcastle Plan
Ready to build
2766 Aldengate Lane, Delaware OH 43015
Home by D.R. Horton
Last updated 2 days ago
The Price Range displayed reflects the base price of the homes built in this community.
You get to select from the many different types of homes built by this Builder and personalize your New Home with options and upgrades.
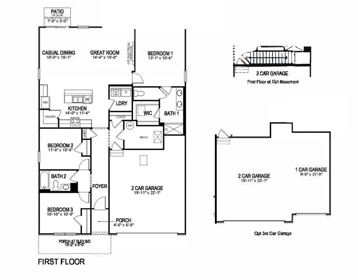
3 BR
2 BA
2 GR
1,635 SQ FT
Claim this listing to update information, get access to exclusive tools and more!

Floorplan 0 1/1
Overview
1 Story
Single Family
Newcastle Plan Info
D.R. Horton, America's Builder, presents the Newcastle plan. This home offers 3 bedrooms and 2 baths in a single-level living space. The main living area offers solid surface flooring throughout for easy maintenance, as well as a spacious, open layout that provides the perfect entertainment space. Two large bedrooms are situated in the front of the home, with the main bedroom, which features a wonderfully sized walk-in closet and ensuite bath, being situated in the back of the home for privacy. The gorgeous kitchen comes with stunning, spacious countertops, a large built-in island, beautiful cabinetry, and a corner pantry for all your storage needs. This home also comes with all the benefits of new construction! All D.R. Horton Columbus homes include our America's Smart Home? Technology, which allows you to monitor and control your home from your couch or from 500 miles away and connect to your home with your smartphone, tablet, or computer. This home is an incredible value with all the benefits of new construction. Ask about our Main Street Stars Savings Program!
Floor plan center
View floor plan details for this property.
- Floor Plans
- Exterior Images
- Interior Images
- Other Media
Neighborhood
Community location & sales center
2766 Aldengate Lane <br/> Delaware, OH 43015
2766 Aldengate Lane <br/> Delaware, OH 43015
888-790-3488
Schools near Piatt Preserve
- Olentangy Local Schools
- Arrowhead Elementary School
- Olentangy Berkshire Middle School
Actual schools may vary. Contact the builder for more information.
Amenities
Home details
Ready to build
Build the home of your dreams with the Newcastle plan by selecting your favorite options. For the best selection, pick your lot in Piatt Preserve today!
Nearby schools
Olentangy Local Schools
Arrowhead Elementary School
Elementary school. Grades PK to 5.
Public school
Teacher - student ratio: 1:20
Students enrolled: 623
740-657-4650
2385 Hollenback Rd, Lewis Center, OH, 43035
Olentangy Berkshire Middle School
Middle school. Grades 6 to 8.
Public school
Teacher - student ratio: 1:21
Students enrolled: 1298
740-657-5200
2869 S 3 Bs And K Rd, Galena, OH, 43021
Actual schools may vary. We recommend verifying with the local school district, the school assignment and enrollment process.
Neighborhood amenities
Kroger
3.17 miles away
6417 Columbus Pike
Meijer
3.35 miles away
1380 Sunbury Rd
Kroger
3.69 miles away
1840 Columbus Pike
ALDI
3.75 miles away
973 Sunbury Rd
ALDI
5.05 miles away
8156 Orange Center Dr
Meijer Bakery
3.35 miles away
1380 Sunbury Rd
Kroger Bakery
3.69 miles away
1840 Columbus Pike
Gluten-Free From the Dipped
4.53 miles away
256 S Sandusky St
The Dipped Donut, Inc
4.53 miles away
256 S Sandusky St
Yummy Wheels
2.02 miles away
4819 Columbus Pike
Four Points Pizza & Grill
2.29 miles away
5277 Columbus Pike
Cheshire Market
2.41 miles away
5094 Cheshire Rd
Watersedgepizza
2.49 miles away
5192 Cheshire Rd
Water's Edge Sports Grill
2.49 miles away
5192 Cheshire Rd
Starbucks
3.10 miles away
6289 Pullman Dr
Starbucks
3.17 miles away
6417 Columbus Pike
Dunkin'
3.46 miles away
50 Coughlin Ln
Tropical Smoothie Cafe
3.58 miles away
1100 Sunbury Rd
Starbucks
3.71 miles away
1740 Columbus Pike
Red Wing Shoe Store
3.46 miles away
50 Coughlin Ln
Cato Fashions
3.52 miles away
880 Sunbury Rd
Kohl's
3.55 miles away
980 Sunbury Rd
Walmart
3.80 miles away
1760 Columbus Pike
Aeropostale
4.47 miles away
400 S Wilson Rd
Tavern at the Creek
2.42 miles away
2475 Africa Rd
Joe's Corner Tavern
3.21 miles away
6477 Pullman Dr
Keystone Pub & Patio Lewis Center
3.21 miles away
6477 Pullman Dr
The Redmen Club
4.73 miles away
137 E Winter St
Roop Brothers Bar
4.86 miles away
17 N Union St
Please note this information may vary. If you come across anything inaccurate, please contact us.
Builder details
D.R. Horton
In 1978, D.R. Horton broke ground on our first home in Fort Worth, Texas. Since that day, the company has defined its success not by bricks and mortar, but by the satisfaction of the families that make our houses their homes. Our foundation is a single, guiding principle: a value-first dedication to the individual needs of each and every one of our nation’s homebuyers.
From first-time homebuyers to empty nesters, our family of brands provides a home for every stage in life. Our highly-trained, market experts are where you want to live, from New Jersey to Hawaii, providing unique, personalized services tailored to your individual needs. But the real value comes from the quality construction we put into every home, and the peace of mind that comes with a premium-backed warranty from America’s Number One Homebuilder.
We’ve come a long way, and while more people choose our family of brands over any other builder in the country, we never forget the most important thing of all – the families that choose us for their place to call home.
So continue to live out those dreams, America, and know we’ll be here for you every step of the way.
More new homes in Delaware, Ohio
Newcastle Plan by D.R. Horton
saved to favorites!
To see all the homes you’ve saved, visit the My Favorites section of your account.
Discover More Great Communities
Select additional listings for more information
Way to Go!
An agent will be in contact soon!
