4776 172ND ST (Olsen)
Under Construction
Urbandale, IA 50323
Home by D.R. Horton
Last updated 1 day ago
The Price Range displayed reflects the base price of the homes built in this community.
You get to select from the many different types of homes built by this Builder and personalize your New Home with options and upgrades.
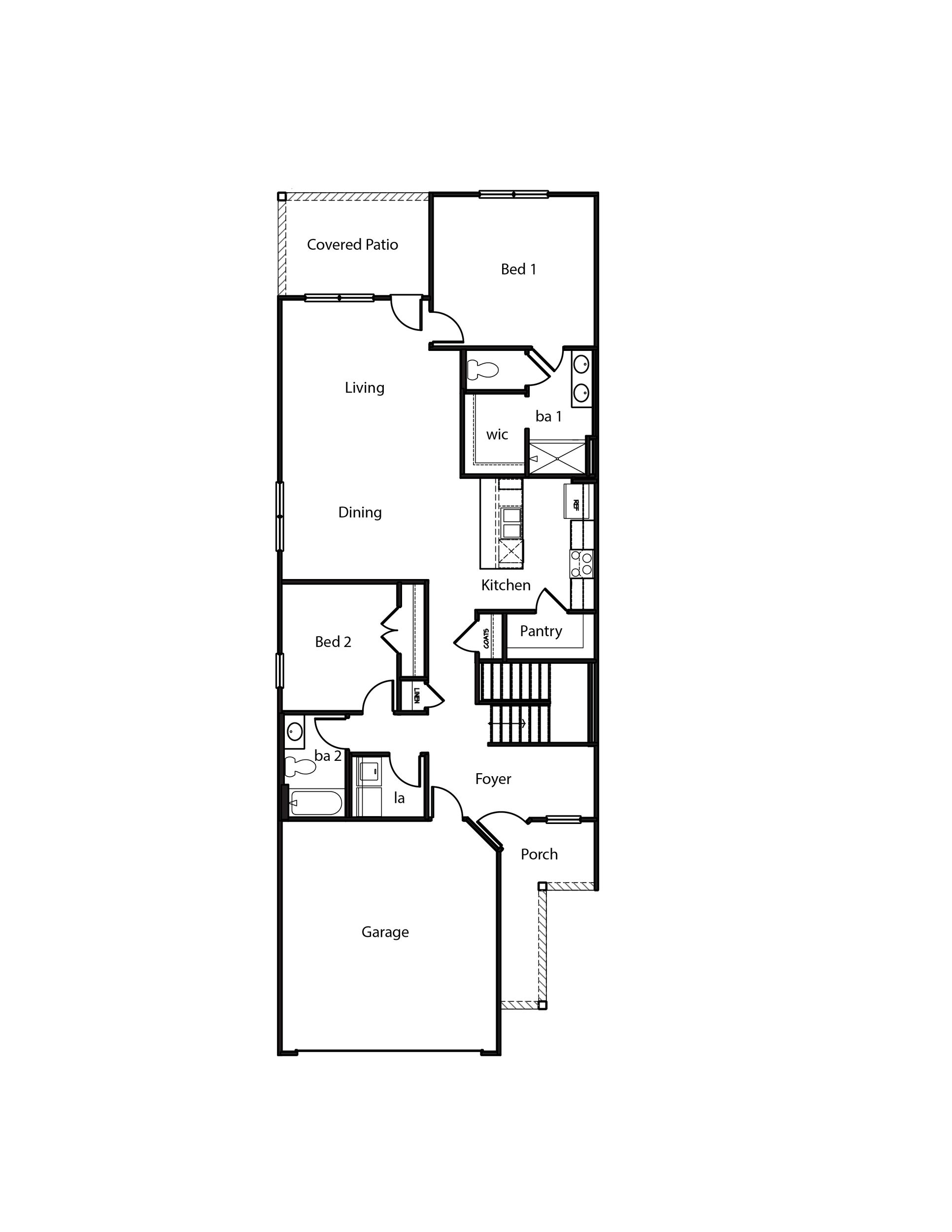
3 BR
3 BA
2 GR
1,410 SQ FT
Claim this listing to update information, get access to exclusive tools and more!

Floor Plan 1/3
Overview
1 Story
1410 Sq Ft
2 Car Garage
3 Bathrooms
3 Bedrooms
Multi Family
4776 172ND ST (Olsen) Home Info
Step inside 4776 172nd St in Urbandale, Iowa. This ranch-style duplex features 3 bedrooms, 3 bathrooms, and 2,199 sq. ft. of open-concept living-ideal for homebuyers at any stage. Enter through the welcoming front porch into a bright foyer with a spacious secondary bedroom, full bathroom, and convenient laundry room. Pass the open stairway leading to the finished basement. The kitchen impresses with crisp white cabinetry, stainless steel appliances, a large island, and walk-in pantry. The dining area and great room flow seamlessly, centered by a cozy electric fireplace. The private primary suite at the back includes an en-suite with dual vanities, walk-in shower, and a large walk-in closet. The finished basement adds more living space, a third bedroom, and full bathroom. Your perfect home awaits at Mallard Prairie Twinhomes in Urbandale today! This home is Move-In Ready. Photos and video may be similar but not necessarily of subject property, including interior and exterior colors, finishes and appliances.
Floor plan center
View floor plan details for this property.
- Floor Plans
- Exterior Images
- Interior Images
- Other Media
Neighborhood
Community location & sales center
4735 172nd St
Urbandale, IA 50323
4735 172nd St
Urbandale, IA 50323
888-790-3488
Schools near Mallard Prairie Twinhomes
- Waukee Comm School District
Actual schools may vary. Contact the builder for more information.
Amenities
Home details
Now building
This home is currently under construction at 4776 172ND ST and will soon be available for move-in at Mallard Prairie Twinhomes. Contact D.R. Horton today to lock in your options!
Neighborhood amenities
Hy-Vee
2.15 miles away
1005 E Hickman Rd
Fareway
2.54 miles away
200 SE Laurel St
Fareway
2.55 miles away
16035 Hickman Rd
ALDI
3.02 miles away
1030 E Hickman Rd
Hy-Vee
4.23 miles away
1725 Jordan Creek Pkwy
Hy-Vee Bakery
2.15 miles away
1005 E Hickman Rd
Great Earth Nutrition Center
3.06 miles away
14968 Wildwood Dr
Icing By Naomi LLC
3.64 miles away
8950 University Ave
Nothing Bundt Cakes
4.57 miles away
1255 NW 128th St
wahlburgers
2.15 miles away
1005 E Hickman Rd
Fridley Theatres The Palms Theatres & IMAX
2.21 miles away
200 NE Westgate Dr
Caribou Coffee
2.26 miles away
1025 E Hickman Rd
B-Bop's Inc
2.28 miles away
855 E Hickman Rd
Pancheros Mexican Grill
2.28 miles away
757 E Hickman Rd
Caribou Coffee
2.26 miles away
1025 E Hickman Rd
Starbucks
2.33 miles away
1014 E Hickman Rd
Tropical Smoothie Cafe
2.36 miles away
426 E Hickman Rd
Scooter's Coffeehouse
2.58 miles away
122 W Hickman Rd
Starbucks
3.02 miles away
1500 SE University Ave
Fessley Finds
2.03 miles away
380 NE Sandalwood
Style Bar Boutique
2.35 miles away
37 NE Carefree Ln
Jacob's Closet Inc
2.75 miles away
730 SE Parker Dr
Glynn Village
3.02 miles away
1400 SE Waddell Way
Mainstream
3.49 miles away
9500 University Ave
wahlburgers
2.15 miles away
1005 E Hickman Rd
Broheim's Indoor Golf & Pub
2.35 miles away
53 NE Carefree Ln
Saint's Pub & Patio
2.35 miles away
87 NE Carefree Ln
John & Nick's Steak & Prime Rib Inc
2.54 miles away
15970 Hickman Rd
Mickey's Irish Pub
2.55 miles away
50 SE Laurel St
Please note this information may vary. If you come across anything inaccurate, please contact us.
Builder details
D.R. Horton
In 1978, D.R. Horton broke ground on our first home in Fort Worth, Texas. Since that day, the company has defined its success not by bricks and mortar, but by the satisfaction of the families that make our houses their homes. Our foundation is a single, guiding principle: a value-first dedication to the individual needs of each and every one of our nation’s homebuyers.
From first-time homebuyers to empty nesters, our family of brands provides a home for every stage in life. Our highly-trained, market experts are where you want to live, from New Jersey to Hawaii, providing unique, personalized services tailored to your individual needs. But the real value comes from the quality construction we put into every home, and the peace of mind that comes with a premium-backed warranty from America’s Number One Homebuilder.
We’ve come a long way, and while more people choose our family of brands over any other builder in the country, we never forget the most important thing of all – the families that choose us for their place to call home.
So continue to live out those dreams, America, and know we’ll be here for you every step of the way.
More new homes in Urbandale, Iowa
4776 172ND ST (Olsen) by D.R. Horton
saved to favorites!
To see all the homes you’ve saved, visit the My Favorites section of your account.
Discover More Great Communities
Select additional listings for more information
Way to Go!
An agent will be in contact soon!
