Palm Exterior Plan
Ready to build
290 Phillips Bluff Avenue, Panama City Beach FL 32407
Home by D.R. Horton
Last updated 21 hours ago
The Price Range displayed reflects the base price of the homes built in this community.
You get to select from the many different types of homes built by this Builder and personalize your New Home with options and upgrades.
3 BR
2.5 BA
1 GR
1,470 SQ FT
Claim this listing to update information, get access to exclusive tools and more!

Floorplan 0 1/1
Overview
1 Car Garage
1 Half Bathroom
1470 Sq Ft
2 Bathrooms
2 Stories
3 Bedrooms
Townhome
Palm Exterior Plan Info
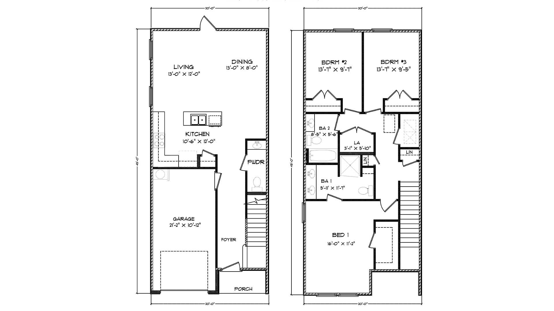
Welcome to the Palm floorplan at Colonial East Townhomes in Panama City Beach Florida. This is an exterior unit that offers a welcoming space that has 3 bedrooms, 2.5 bathrooms, and a convenient single car garage. The bright entry leads to an open kitchen, living, and dining area that is designed for comfort and everyday living. The kitchen serves as the culinary center with a spacious center island, beautiful white cabinetry, granite countertops, and a premium stainless steel appliance package including a smooth top stove, microwave and dishwasher. Beautiful windows surround the living area allowing for natural light. The first floor is the heart of the home, while the privacy of the second level has all bedrooms, ensuring a quiet retreat. The main suite features a generous closet, an oversized shower, dual sink vanity, and a linen storage area in the private bath. Two additional bedrooms share a hall bath with shower tub combo that create a comfortable space for family or guests. This townhome is equipped with a Smart Home Technology Package featuring a Qolsys IQ touch panel for thermostat and lighting control, ensuring security and convenience. A landscaped front entry adds curb appeal and welcomes you to your very own slice of Florida paradise awaits. Call today for more information on this townhome.
Floor plan center
View floor plan details for this property.
- Floor Plans
- Exterior Images
- Interior Images
- Other Media
Neighborhood
Community location & sales center
290 Phillips Bluff Avenue
Panama City Beach, FL 32407
290 Phillips Bluff Avenue
Panama City Beach, FL 32407
888-790-3488
Schools near Colonial East Townhomes
- Bay District Schools
Actual schools may vary. Contact the builder for more information.
Amenities
Home details
Ready to build
Build the home of your dreams with the Palm Exterior plan by selecting your favorite options. For the best selection, pick your lot in Colonial East Townhomes today!
Builder details
D.R. Horton
In 1978, D.R. Horton broke ground on our first home in Fort Worth, Texas. Since that day, the company has defined its success not by bricks and mortar, but by the satisfaction of the families that make our houses their homes. Our foundation is a single, guiding principle: a value-first dedication to the individual needs of each and every one of our nation’s homebuyers.
From first-time homebuyers to empty nesters, our family of brands provides a home for every stage in life. Our highly-trained, market experts are where you want to live, from New Jersey to Hawaii, providing unique, personalized services tailored to your individual needs. But the real value comes from the quality construction we put into every home, and the peace of mind that comes with a premium-backed warranty from America’s Number One Homebuilder.
We’ve come a long way, and while more people choose our family of brands over any other builder in the country, we never forget the most important thing of all – the families that choose us for their place to call home.
So continue to live out those dreams, America, and know we’ll be here for you every step of the way.
More new homes in Panama City Beach, Florida
Palm Exterior Plan by D.R. Horton
saved to favorites!
To see all the homes you’ve saved, visit the My Favorites section of your account.
Discover More Great Communities
Select additional listings for more information
Way to Go!
An agent will be in contact soon!
