Palm Interior Plan
Ready to build
105 Foxtail Way Unit 55, Destin FL 32541
Home by D.R. Horton
Last updated 21 hours ago
The Price Range displayed reflects the base price of the homes built in this community.
You get to select from the many different types of homes built by this Builder and personalize your New Home with options and upgrades.
3 BR
2.5 BA
1 GR
1,459 SQ FT
Claim this listing to update information, get access to exclusive tools and more!

Floorplan 0 1/1
Overview
1 Car Garage
1 Half Bathroom
1459 Sq Ft
2 Bathrooms
2 Stories
3 Bedrooms
Townhome
Palm Interior Plan Info
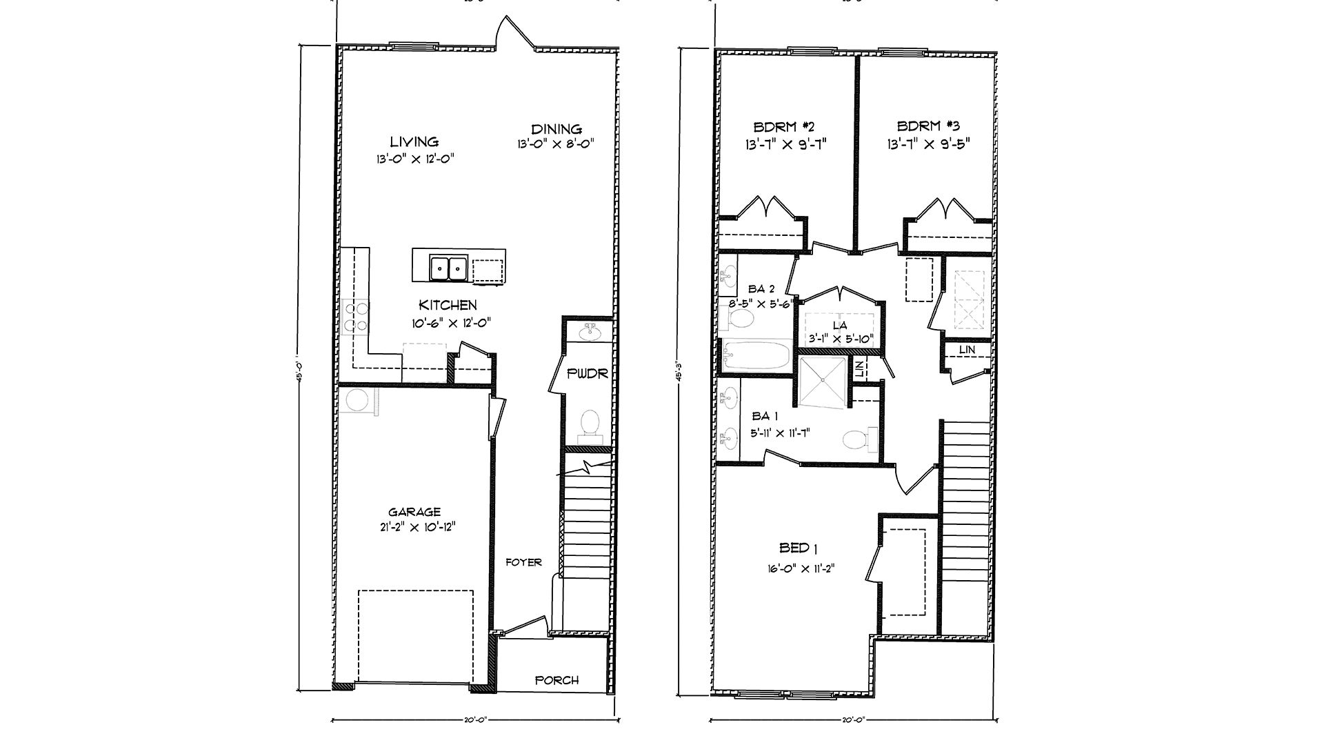
Welcome to the Palm Townhome, a new home floor plan at Palms Street Townhomes in Destin, Florida. This townhome is two stories and has 3 well-appointed bedrooms, and 2.5 elegant bathrooms. As you enter this interior unit townhome you will find a bright hallway leading to an open-concept kitchen, living, and dining area. The open and spacious main level is designed for entertaining and everyday living. The kitchen serves as the culinary center with its spacious center island allowing for easy meal prep and cleanup. The first floor is the core of the home, while the privacy of the second level holds all bedrooms, ensuring a quiet retreat. The main suite is a sanctuary, featuring a generous closet and an ensuite bathroom with a dual sink vanity, shower, and a linen storage area. Just down the hall from the primary bedroom are the two guest bedrooms. The bedrooms are spacious and have ample closet space. There is a shared bathroom and laundry area off the additional bedrooms. The additional bedrooms share a hall bath with shower tub combo, creating a comfortable space for family or guests. The Palm townhome has a back patio that accessible off the dining area on the main level. This home has a single car garage and a driveway that will fit additional cars. If you are interested in this townhome, contact us for more information.
Floor plan center
View floor plan details for this property.
- Floor Plans
- Exterior Images
- Interior Images
- Other Media
Neighborhood
Community location & sales center
105 Foxtail Way Unit 55
Destin, FL 32541
105 Foxtail Way Unit 55
Destin, FL 32541
888-790-3488
Schools near Palm Street Townhomes
- Okaloosa County School District
Actual schools may vary. Contact the builder for more information.
Amenities
Home details
Ready to build
Build the home of your dreams with the Palm Interior plan by selecting your favorite options. For the best selection, pick your lot in Palm Street Townhomes today!
Builder details
D.R. Horton
In 1978, D.R. Horton broke ground on our first home in Fort Worth, Texas. Since that day, the company has defined its success not by bricks and mortar, but by the satisfaction of the families that make our houses their homes. Our foundation is a single, guiding principle: a value-first dedication to the individual needs of each and every one of our nation’s homebuyers.
From first-time homebuyers to empty nesters, our family of brands provides a home for every stage in life. Our highly-trained, market experts are where you want to live, from New Jersey to Hawaii, providing unique, personalized services tailored to your individual needs. But the real value comes from the quality construction we put into every home, and the peace of mind that comes with a premium-backed warranty from America’s Number One Homebuilder.
We’ve come a long way, and while more people choose our family of brands over any other builder in the country, we never forget the most important thing of all – the families that choose us for their place to call home.
So continue to live out those dreams, America, and know we’ll be here for you every step of the way.
More new homes in Destin, Florida
Palm Interior Plan by D.R. Horton
saved to favorites!
To see all the homes you’ve saved, visit the My Favorites section of your account.
Discover More Great Communities
Select additional listings for more information
Way to Go!
An agent will be in contact soon!
