14 Rudder Lane (Palm Interior)
Under Construction
Freeport, FL 32439
Home by D.R. Horton
Last updated 2 days ago
The Price Range displayed reflects the base price of the homes built in this community.
You get to select from the many different types of homes built by this Builder and personalize your New Home with options and upgrades.
3 BR
2.5 BA
1 GR
1,459 SQ FT
Claim this listing to update information, get access to exclusive tools and more!

Floor Plan 1/1
Overview
1 Car Garage
1 Half Bathroom
1459 Sq Ft
2 Bathrooms
2 Stories
3 Bedrooms
Multi Family
14 Rudder Lane (Palm Interior) Home Info
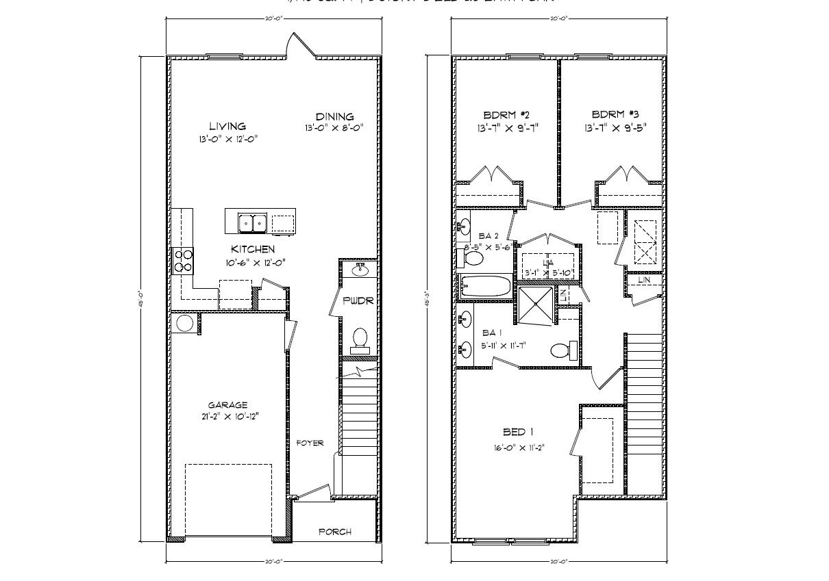
Welcome to 30 Rudder Lane at Genoa Landing Townhomes in Freeport Florida. This is an interior unit that is located in a four unit building that is under construction. As you enter this townhome you will find a hall with EVP flooring that leads to an open-concept kitchen, living, and dining area, designed for entertaining and everyday living. From the dining area you will have access to the back patio and there is window that will illuminate the living area with natural light. The kitchen serves as the culinary center with its spacious center island and cabinetry for storage as well as a pantry. The kitchen has been appointed with stainless appliances including a stove, microwave and dishwasher and granite countertops From the heart of the home on the main level, continue to the second level where you will find carpet on the stairs, upstairs hall and each bedroom. The primary bedroom has a generous size closet and a private bath with shower, dual sink vanity, and ample linen storage space. The additional bedrooms share a hall bath with shower tub combo, creating a comfortable space for family or guests. You will also have a laundry area on the second level with space for a full-size washer and dryer. Each townhome comes with the Smart Home Technology Package, featuring a Qolsys IQ touch panel for thermostat and lighting control, ensuring security and convenience with a keyless KwikSet deadbolt. For more information on this townhome, contact a D.R. Horton Sales Representativ
Floor plan center
View floor plan details for this property.
- Floor Plans
- Exterior Images
- Interior Images
- Other Media
Neighborhood
Community location & sales center
Lot 29 Rudder Lane
Freeport, FL 32439
Lot 29 Rudder Lane
Freeport, FL 32439
888-790-3488
Schools near Genoa Landing Townhomes
- Walton
Actual schools may vary. Contact the builder for more information.
Amenities
Home details
Now building
This home is currently under construction at 14 Rudder Lane and will soon be available for move-in at Genoa Landing Townhomes. Contact D.R. Horton today to lock in your options!
Builder details
D.R. Horton
In 1978, D.R. Horton broke ground on our first home in Fort Worth, Texas. Since that day, the company has defined its success not by bricks and mortar, but by the satisfaction of the families that make our houses their homes. Our foundation is a single, guiding principle: a value-first dedication to the individual needs of each and every one of our nation’s homebuyers.
From first-time homebuyers to empty nesters, our family of brands provides a home for every stage in life. Our highly-trained, market experts are where you want to live, from New Jersey to Hawaii, providing unique, personalized services tailored to your individual needs. But the real value comes from the quality construction we put into every home, and the peace of mind that comes with a premium-backed warranty from America’s Number One Homebuilder.
We’ve come a long way, and while more people choose our family of brands over any other builder in the country, we never forget the most important thing of all – the families that choose us for their place to call home.
So continue to live out those dreams, America, and know we’ll be here for you every step of the way.
More new homes in Freeport, Florida
14 Rudder Lane (Palm Interior) by D.R. Horton
saved to favorites!
To see all the homes you’ve saved, visit the My Favorites section of your account.
Discover More Great Communities
Select additional listings for more information
Way to Go!
An agent will be in contact soon!
