575 FIELDCREST ROAD (Pamlico)
Under Construction
Blountville, TN 37617
Home by D.R. Horton
Last updated 2 days ago
The Price Range displayed reflects the base price of the homes built in this community.
You get to select from the many different types of homes built by this Builder and personalize your New Home with options and upgrades.
5 BR
3.5 BA
3 GR
4,109 SQ FT
Claim this listing to update information, get access to exclusive tools and more!

Floor Plan 1/2
Overview
1 Half Bathroom
2 Stories
3 Bathrooms
3 Car Garage
4109 Sq Ft
5 Bedrooms
Single Family
575 FIELDCREST ROAD (Pamlico) Home Info
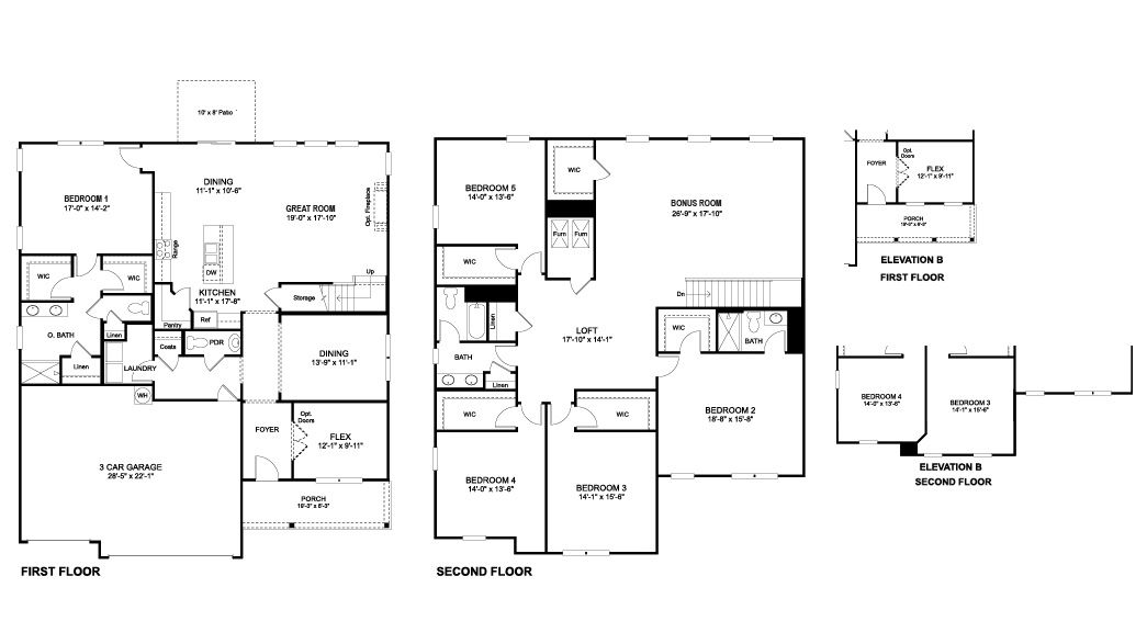
Welcome to the Pamlico at 575 Fieldcrest Road, a spacious floor plan by D.R. Horton available at Fieldcrest Acres in Blountville, TN. This gorgeous home boasts a flex room and designated dining space as you enter through the foyer. On the main level, you'll also find a powder room and laundry area, as well as a large primary suite with two private walk-in closets and a luxurious bathroom. The open concept kitchen and living area provide ample space for everyone, with an island and countertop seating, a breakfast nook, and a spacious pantry. Upstairs, you'll find another primary suite, a bonus area, three additional bedrooms, and another full bathroom. This expansive home is perfect for living, working, and entertaining. D.R. Horton is an Equal Housing Opportunity Builder. Home and community information, including pricing, included features, terms, availability and amenities, are subject to change and prior sale at any time without notice or obligation. Pictures, photographs, colors, features, and sizes are for illustration purposes only and will vary from the homes as built. Images may contain virtual staging.
Floor plan center
View floor plan details for this property.
- Floor Plans
- Exterior Images
- Interior Images
- Other Media
Neighborhood
Community location & sales center
213 Chimney View Loop
Blountville, TN 37617
213 Chimney View Loop
Blountville, TN 37617
888-790-3488
Schools near Fieldcrest Acres
- Kingsport School District
Actual schools may vary. Contact the builder for more information.
Amenities
Home details
Now building
This home is currently under construction at 575 FIELDCREST ROAD and will soon be available for move-in at Fieldcrest Acres. Contact D.R. Horton today to lock in your options!
Builder details
D.R. Horton
In 1978, D.R. Horton broke ground on our first home in Fort Worth, Texas. Since that day, the company has defined its success not by bricks and mortar, but by the satisfaction of the families that make our houses their homes. Our foundation is a single, guiding principle: a value-first dedication to the individual needs of each and every one of our nation’s homebuyers.
From first-time homebuyers to empty nesters, our family of brands provides a home for every stage in life. Our highly-trained, market experts are where you want to live, from New Jersey to Hawaii, providing unique, personalized services tailored to your individual needs. But the real value comes from the quality construction we put into every home, and the peace of mind that comes with a premium-backed warranty from America’s Number One Homebuilder.
We’ve come a long way, and while more people choose our family of brands over any other builder in the country, we never forget the most important thing of all – the families that choose us for their place to call home.
So continue to live out those dreams, America, and know we’ll be here for you every step of the way.
More new homes in Blountville, Tennessee
575 FIELDCREST ROAD (Pamlico) by D.R. Horton
saved to favorites!
To see all the homes you’ve saved, visit the My Favorites section of your account.
Discover More Great Communities
Select additional listings for more information
Way to Go!
An agent will be in contact soon!
