Pearson A Plan
Ready to build
421 Warm Heron pl, Ruskin FL 33570
Home by D.R. Horton
Last updated 2 days ago
The Price Range displayed reflects the base price of the homes built in this community.
You get to select from the many different types of homes built by this Builder and personalize your New Home with options and upgrades.
3 BR
2.5 BA
1 GR
1,463 SQ FT
Claim this listing to update information, get access to exclusive tools and more!

Floorplan 0 1/1
Overview
1 Half Bathroom
2 Stories
Townhouse
Pearson A Plan Info
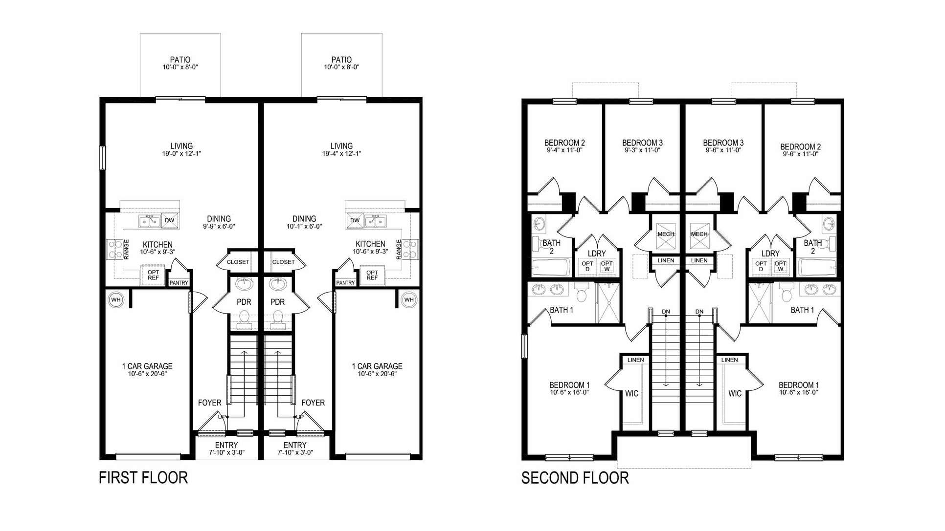
This two-story, all-concrete block constructed connected town home features 3 bedrooms, 2.5 bathrooms and a one car garage. As you enter into the foyer you are greeted with the wide hallway guiding you to the main living area and kitchen, or up the stairs to the bedrooms. The open kitchen overlooks the living area, dining, and sliding glass doors out to the back lanai. Upstairs is the living quarters, bedroom 1 is in the front of the home, the second and third bedrooms are in the back of the home. The primary bedroom has the ensuite bathroom with double vanity sinks as well as a spacious walk-in closet. The townhome also comes with stainless steel kitchen appliances, a fully equipped laundry room, and a cutting-edge smart home system. Pictures, photographs, colors, features, and sizes are for illustration purposes only and will vary from the homes as built. Home and community information including pricing, included features, terms, availability and amenities are subject to change and prior sale at any time without notice or obligation. CBC039052.
Floor plan center
View floor plan details for this property.
- Floor Plans
- Exterior Images
- Interior Images
- Other Media
Neighborhood
Community location & sales center
421 Warm Heron pl
Ruskin, FL 33570
421 Warm Heron pl
Ruskin, FL 33570
888-790-3488
Schools near Ruskin Preserve Townhomes
- Hillsborough County School District
- Thompson Elementary School
- Shields Middle School
- Lennard High School
Actual schools may vary. Contact the builder for more information.
Amenities
Home details
Ready to build
Build the home of your dreams with the Pearson A plan by selecting your favorite options. For the best selection, pick your lot in Ruskin Preserve Townhomes today!
Nearby schools
Hillsborough County School District
Thompson Elementary School
Elementary school. Grades PK to 5
Public school
Class ratio: 1: 16
Enrollment: 744
813-938-1203
2020 E Shell Point Rd, Ruskin, FL, 33570
Shields Middle School
Middle school. Grades 6 to 8
Public school
Class ratio: 1: 21
Enrollment: 1867
813-672-5338
15732 Beth Shields Way, Ruskin, FL, 33573
Lennard High School
High school. Grades 9 to 12
Public school
Class ratio: 1: 25
Enrollment: 2404
813-641-5611
2342 E Shell Point Rd, Ruskin, FL, 33570
Actual schools may vary. We recommend verifying with the local school district, the school assignment and enrollment process.
Builder details
D.R. Horton
In 1978, D.R. Horton broke ground on our first home in Fort Worth, Texas. Since that day, the company has defined its success not by bricks and mortar, but by the satisfaction of the families that make our houses their homes. Our foundation is a single, guiding principle: a value-first dedication to the individual needs of each and every one of our nation’s homebuyers.
From first-time homebuyers to empty nesters, our family of brands provides a home for every stage in life. Our highly-trained, market experts are where you want to live, from New Jersey to Hawaii, providing unique, personalized services tailored to your individual needs. But the real value comes from the quality construction we put into every home, and the peace of mind that comes with a premium-backed warranty from America’s Number One Homebuilder.
We’ve come a long way, and while more people choose our family of brands over any other builder in the country, we never forget the most important thing of all – the families that choose us for their place to call home.
So continue to live out those dreams, America, and know we’ll be here for you every step of the way.
More new homes in Ruskin, Florida
Pearson A Plan by D.R. Horton
saved to favorites!
To see all the homes you’ve saved, visit the My Favorites section of your account.
Discover More Great Communities
Select additional listings for more information
Way to Go!
An agent will be in contact soon!
