Pearson Plan
Ready to build
2800 Georgia Aster Way NW, Atlanta GA 30318
Home by D.R. Horton
Last updated 3 days ago
The Price Range displayed reflects the base price of the homes built in this community.
You get to select from the many different types of homes built by this Builder and personalize your New Home with options and upgrades.
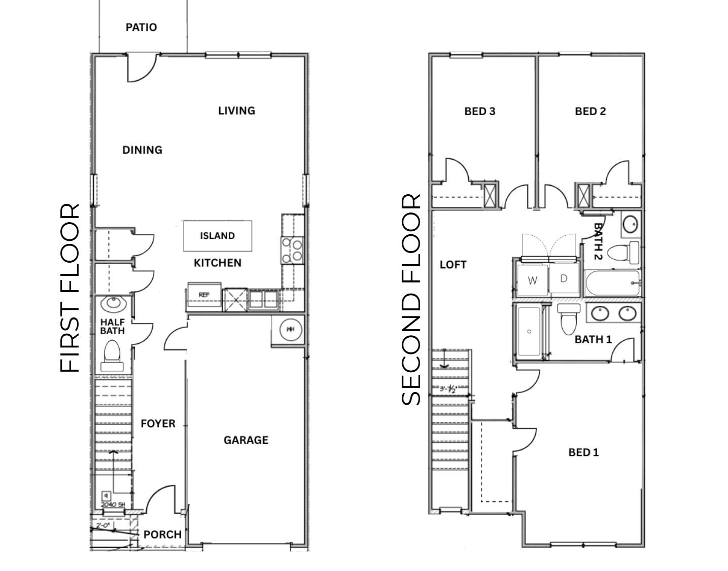
3 BR
2.5 BA
1 GR
1,418 SQ FT
Claim this listing to update information, get access to exclusive tools and more!

Floorplan 0 1/1
Overview
1 Half Bathroom
2 Stories
Townhouse
Pearson Plan Info
Introducing the Pearson, one of D.R. Horton's newest townhome floor plans, designed to feel both modern and easy to live in. This two-story home features 3 bedrooms, 2.5 baths, and a one-car garage, offering just the right amount of space without feeling overwhelming. From the moment you walk in, the layout feels open and welcoming, with a natural flow that makes everyday living simple. The main level is where everything comes together. Luxury vinyl plank flooring runs throughout, giving the space a clean, durable finish that holds up to real life. The kitchen is set up to be both functional and stylish, with quartz countertops, stainless steel appliances, and LED lighting that brightens the entire space. It opens right into the family room and breakfast area, so whether you're cooking dinner or having friends over, everything feels connected and easy. Upstairs, all three bedrooms are thoughtfully laid out to give a sense of separation and privacy. The owner's suite offers a comfortable retreat with plenty of space to unwind, while the secondary bedrooms are perfect for guests, a home office, or whatever fits your lifestyle. The 2.5 bath setup keeps mornings running smoothly, especially if you have a busy household. Another great feature of the Pearson is the included smart home technology, adding convenience to your day-to-day routine without overcomplicating things. It's those little touches that make a difference. Overall, the Pearson is a great option for anyone looki
Floor plan center
View floor plan details for this property.
- Floor Plans
- Exterior Images
- Interior Images
- Other Media
Neighborhood
Community location & sales center
2800 Georgia Aster Way NW
Atlanta, GA 30318
2800 Georgia Aster Way NW
Atlanta, GA 30318
888-790-3488
Schools near Towns at Monroe
- Atlanta Public Schools
- Scott Elementary School
- John Lewis Invictus Academy
- Frederick Douglass High School 9th Grade Steam Academy
- Frederick Douglass High School
Actual schools may vary. Contact the builder for more information.
Amenities
Home details
Ready to build
Visit this model home today to experience the quality of D.R. Horton and truly feel what it’s like to live in Towns at Monroe!
Nearby schools
Atlanta Public Schools
Scott Elementary School
Elementary school. Grades PK to 5
Public school
Class ratio: 1: 9
Enrollment: 289
404-802-7000
1752 Hollywood Rd Nw, Atlanta, GA, 30318
John Lewis Invictus Academy
Middle school. Grades 6 to 8
Public school
Class ratio: 1: 12
Enrollment: 825
404-802-6100
1890 Donald Lee Hollowell Pkwy, Atlanta, GA, 30318
Frederick Douglass High School 9th Grade Steam Academy
High school. Grades 9 to 9
Public school
404-802-8600
101 Hemphill School Rd, Atlanta, GA, 30331
Frederick Douglass High School
High school. Grades 10 to 12
Public school
Class ratio: 1: 14
Enrollment: 1112
404-802-3100
225 Hamilton E Holmes Dr Nw, Atlanta, GA, 30318
Actual schools may vary. We recommend verifying with the local school district, the school assignment and enrollment process.
Builder details
D.R. Horton
In 1978, D.R. Horton broke ground on our first home in Fort Worth, Texas. Since that day, the company has defined its success not by bricks and mortar, but by the satisfaction of the families that make our houses their homes. Our foundation is a single, guiding principle: a value-first dedication to the individual needs of each and every one of our nation’s homebuyers.
From first-time homebuyers to empty nesters, our family of brands provides a home for every stage in life. Our highly-trained, market experts are where you want to live, from New Jersey to Hawaii, providing unique, personalized services tailored to your individual needs. But the real value comes from the quality construction we put into every home, and the peace of mind that comes with a premium-backed warranty from America’s Number One Homebuilder.
We’ve come a long way, and while more people choose our family of brands over any other builder in the country, we never forget the most important thing of all – the families that choose us for their place to call home.
So continue to live out those dreams, America, and know we’ll be here for you every step of the way.
More new homes in Atlanta, Georgia
Pearson Plan by D.R. Horton
saved to favorites!
To see all the homes you’ve saved, visit the My Favorites section of your account.
Discover More Great Communities
Select additional listings for more information
Way to Go!
An agent will be in contact soon!
