5981 SKYLAR DRIVE (PEARSON II)
Under Construction
South Fulton, GA 30331
Home by D.R. Horton
Last updated 22 hours ago
The Price Range displayed reflects the base price of the homes built in this community.
You get to select from the many different types of homes built by this Builder and personalize your New Home with options and upgrades.
3 BR
2.5 BA
1 GR
1,508 SQ FT
Claim this listing to update information, get access to exclusive tools and more!

Floor Plan 1/2
Overview
1 Car Garage
1 Half Bathroom
1508 Sq Ft
2 Bathrooms
2 Stories
3 Bedrooms
Multi Family
5981 SKYLAR DRIVE (PEARSON II) Home Info
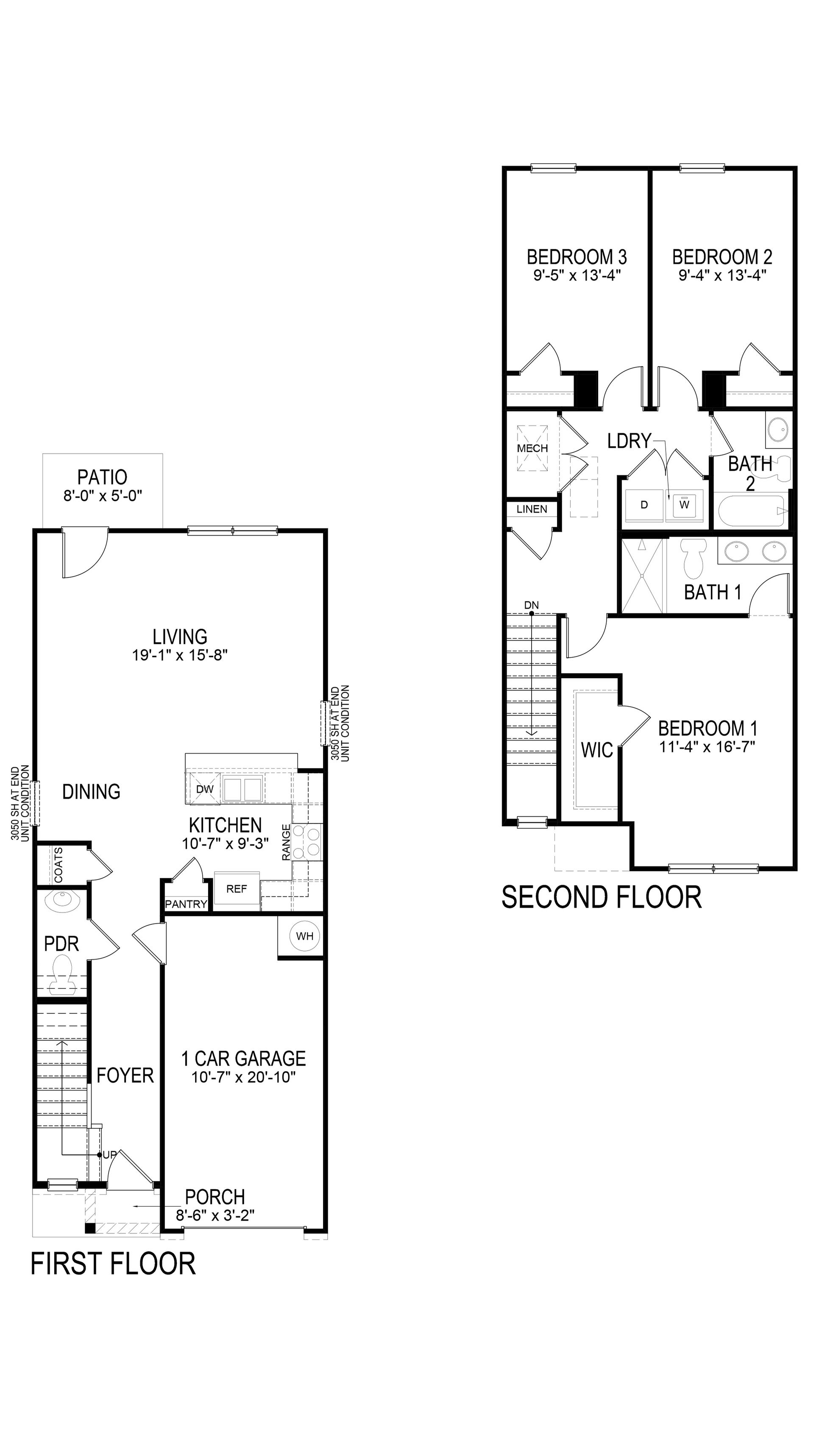
Each of the townhome built in our Woodbury Park community in Atlanta, GA are the Pearson II floorplan. This two-story plan features 3 bedrooms and 2.5 bathrooms in 1,508 square feet along with a 1-car garage. As you step off the front porch, a long foyer welcomes you and leads you into the main living area as you pass by a half bathroom in the front hallway. The large living room is the perfect space for family and friends to gather or for a quiet night with a movie or book. Enjoy easy access to the back patio where you can relax with coffee in the mornings. The living room flows seamlessly into the contemporary designed kitchen with an attached island, white cabinets, and granite countertops. Homeowners will appreciate the durable, laminate wood flooring throughout the main level, that is perfect for any active household. Up the stairs you'll turn from the landing into the primary suite. A spacious bedroom is complimented by the en suite bathroom featuring a granite topped, dual vanity and roomy walk-in closet. Across the landing you'll be led into one of the two additional bedrooms, both with walk-in closets. The laundry room and an additional bathroom round out the upper floor. If 5981 Skylar Drive sounds like a dream come true, call us today at Woodbury Park to come visit us in Atlanta, GA!
Floor plan center
View floor plan details for this property.
- Floor Plans
- Exterior Images
- Interior Images
- Other Media
Neighborhood
Community location & sales center
5938 Skylar Drive
South Fulton, GA 30331
5938 Skylar Drive
Atlanta, GA 30336
888-355-8096
Schools near Woodbury Park
- Fulton County Schools
Actual schools may vary. Contact the builder for more information.
Amenities
Home details
Now building
This home is currently under construction at 5981 SKYLAR DRIVE and will soon be available for move-in at Woodbury Park. Contact D.R. Horton today to lock in your options!
Builder details
D.R. Horton
In 1978, D.R. Horton broke ground on our first home in Fort Worth, Texas. Since that day, the company has defined its success not by bricks and mortar, but by the satisfaction of the families that make our houses their homes. Our foundation is a single, guiding principle: a value-first dedication to the individual needs of each and every one of our nation’s homebuyers.
From first-time homebuyers to empty nesters, our family of brands provides a home for every stage in life. Our highly-trained, market experts are where you want to live, from New Jersey to Hawaii, providing unique, personalized services tailored to your individual needs. But the real value comes from the quality construction we put into every home, and the peace of mind that comes with a premium-backed warranty from America’s Number One Homebuilder.
We’ve come a long way, and while more people choose our family of brands over any other builder in the country, we never forget the most important thing of all – the families that choose us for their place to call home.
So continue to live out those dreams, America, and know we’ll be here for you every step of the way.
More new homes in South Fulton, Georgia
5981 SKYLAR DRIVE (PEARSON II) by D.R. Horton
saved to favorites!
To see all the homes you’ve saved, visit the My Favorites section of your account.
Discover More Great Communities
Select additional listings for more information
Way to Go!
An agent will be in contact soon!
