PERRY Plan
Ready to build
2409 Starlight St, Grand Prairie TX 75052
Home by D.R. Horton
Last updated 3 days ago
The Price Range displayed reflects the base price of the homes built in this community.
You get to select from the many different types of homes built by this Builder and personalize your New Home with options and upgrades.
4 BR
3.5 BA
2 GR
2,719 SQ FT
Claim this listing to update information, get access to exclusive tools and more!

Floorplan 0 1/1
Overview
1 Half Bathroom
2 Stories
Single Family
PERRY Plan Info
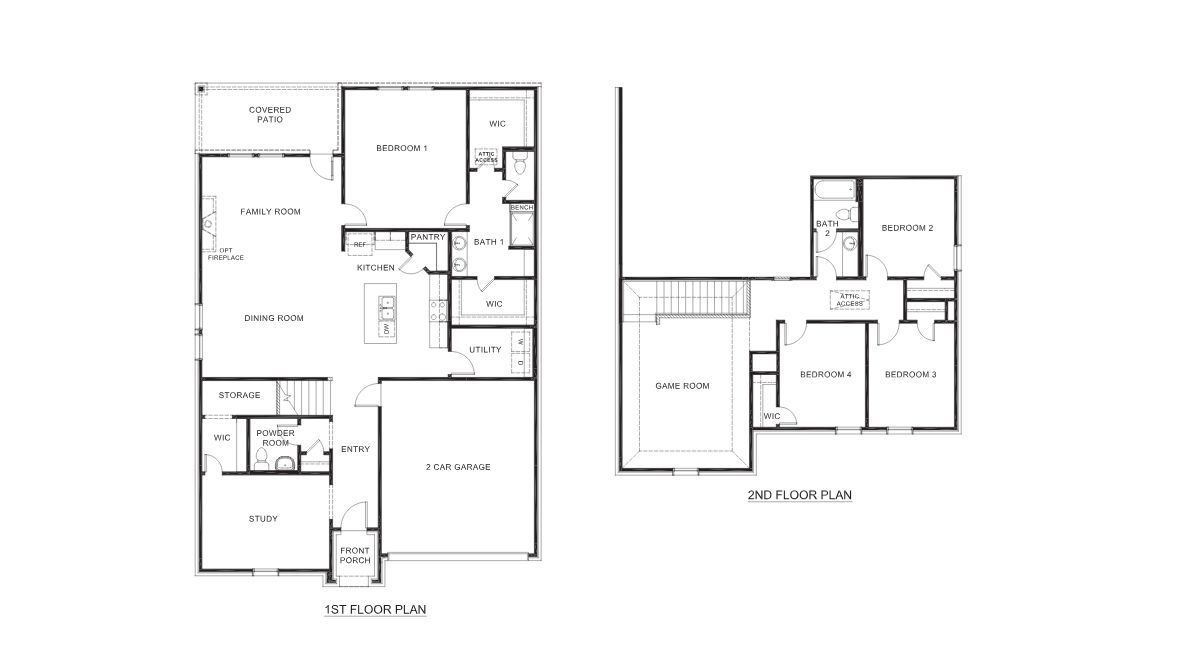
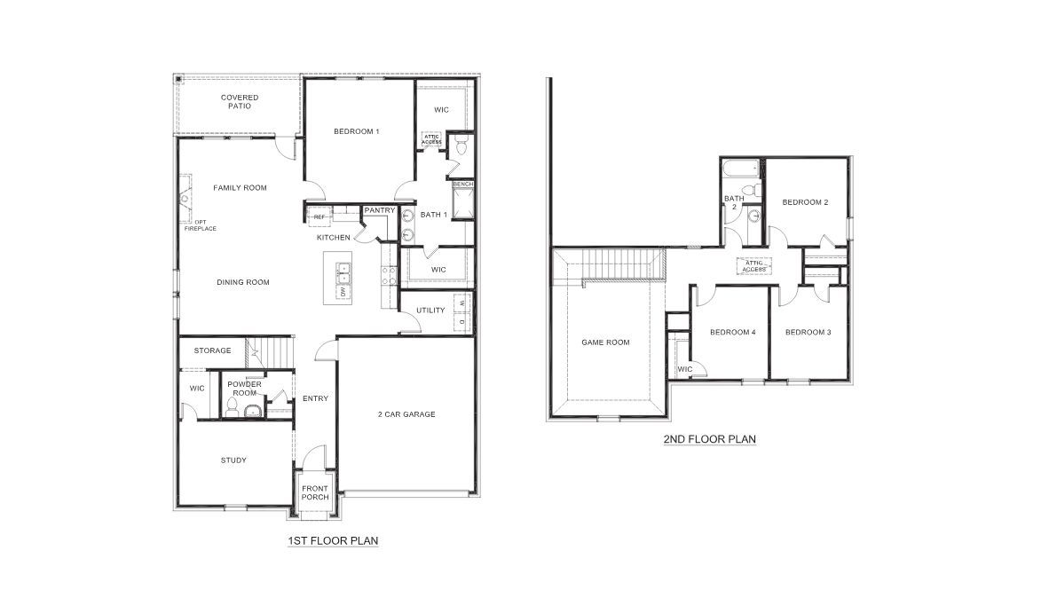
Welcome to the Perry floor plan, located in The Preserves at The Forum community in Grand Prairie! This two-story house includes four bedrooms, two-and-a-half bathrooms, a private study, an upstairs game room, and a two-car garage. This house spans 2,561 square feet and will be a lovely abode for you and your family! As you enter the home, you will notice the beautiful study by the front of the house. The study has vinyl flooring, two large windows that illuminate the room, and a storage closet. It is the perfect space for an office or library. Continuing through the foyer, you will find the powder room, which is finished with vinyl flooring, and the carpeted stairway. The family room, dining room, and L-shaped kitchen are just beyond the staircase. This open concept living and dining space makes this house perfect for hosting football celebrations or large family gatherings. The vinyl flooring and bright windows allow the room to glow with natural lighting. The L-shaped kitchen is equipped with stainless-steel appliances, a large kitchen island, and a tall pantry. The utility room, which has vinyl flooring and space for a washer and dryer, can be accessed through the kitchen. The primary bedroom can be entered through the family room. This bedroom features carpet floors and two bright windows, allowing for sunlight to adorn the room with its rays. The primary bedroom opens to the primary bathroom, complete with vinyl floors, a standing shower, a double sink, and a separat
Floor plan center
View floor plan details for this property.
- Floor Plans
- Exterior Images
- Interior Images
- Other Media
Neighborhood
Community location & sales center
2409 Starlight St
Grand Prairie, TX 75052
2409 Starlight St
Grand Prairie, TX 75052
888-790-3488
Schools near The Preserve at Forum
- Arlington Independent School District
- Farrell Elementary School
- Barnett Junior High School
- Bowie High School
Actual schools may vary. Contact the builder for more information.
Amenities
Home details
Ready to build
Build the home of your dreams with the PERRY plan by selecting your favorite options. For the best selection, pick your lot in The Preserve at Forum today!
Nearby schools
Arlington Independent School District
Farrell Elementary School
Elementary-Middle school. Grades PK to 6
Public school
Class ratio: 1: 15
Enrollment: 565
682-867-0300
3410 Paladium Dr, Grand Prairie, TX, 75052
Barnett Junior High School
Middle school. Grades 7 to 8
Public school
Class ratio: 1: 13
Enrollment: 641
682-867-5000
2101 E Sublett Rd, Arlington, TX, 76018
Bowie High School
High school. Grades 9 to 12
Public school
Class ratio: 1: 15
Enrollment: 2391
682-867-4400
2101 Highbank Dr, Arlington, TX, 76018
Actual schools may vary. We recommend verifying with the local school district, the school assignment and enrollment process.
Neighborhood amenities
Nygel Market
0.59 mile away
3223 Kildeer Trl
Walmart Supercenter
0.73 mile away
2225 W Interstate 20
Kroger
0.79 mile away
2525 W Interstate 20
ALDI
0.96 mile away
2601 Bardin Rd
Spicemart Grocers & Caterers
1.64 miles away
903 Luxor Ct
Flour Child Cupcakes
0.44 mile away
2530 Sara Jane Pkwy
Walmart Bakery
0.73 mile away
2225 W Interstate 20
Kroger Bakery
0.79 mile away
2525 W Interstate 20
Crossroads Natural Health LLC
1.45 miles away
3175 S Carrier Pkwy
Einstein Bros Bagels
1.64 miles away
2810 S State Highway 161
Beto's Mexican Restaurant
0.52 mile away
2530 W Interstate 20
Taco Bueno
0.53 mile away
2546 W Interstate 20
KFC
0.53 mile away
2559 Sara Jane Pkwy
Wendy's
0.54 mile away
2554 W Interstate 20
Taco Bell
0.55 mile away
3890 S Great Southwest Pkwy
Ygk Enterprise Inc
0.82 mile away
4045 S Great Southwest Pkwy
Coffee Cup
1.00 mile away
2950 W Interstate 20
Starbucks
1.00 mile away
2950 W Interstate 20
Dutch Bros Coffee
1.13 miles away
3110 S State Highway 161
American Donuts
1.43 miles away
3480 S Carrier Pkwy
Shoe Dept
0.67 mile away
2307 W Interstate 20
Walmart Supercenter
0.73 mile away
2225 W Interstate 20
Hibbett Sports
0.91 mile away
3154 S State Highway 161
adidas Outlet Store
1.00 mile away
2950 W Interstate 20
Aeropostale
1.00 mile away
2950 W Interstate 20
Buffalo Wild Wings
0.62 mile away
2315 W Interstate 20
Applebee's Grill + Bar
0.64 mile away
2415 W Interstate 20
Cheesesteak House
0.72 mile away
2620 W Interstate 20
Hooters
0.85 mile away
2750 W Interstate 20
LongHorn Steakhouse
1.03 miles away
3134 S State Highway 161
Please note this information may vary. If you come across anything inaccurate, please contact us.
Builder details
D.R. Horton
In 1978, D.R. Horton broke ground on our first home in Fort Worth, Texas. Since that day, the company has defined its success not by bricks and mortar, but by the satisfaction of the families that make our houses their homes. Our foundation is a single, guiding principle: a value-first dedication to the individual needs of each and every one of our nation’s homebuyers.
From first-time homebuyers to empty nesters, our family of brands provides a home for every stage in life. Our highly-trained, market experts are where you want to live, from New Jersey to Hawaii, providing unique, personalized services tailored to your individual needs. But the real value comes from the quality construction we put into every home, and the peace of mind that comes with a premium-backed warranty from America’s Number One Homebuilder.
We’ve come a long way, and while more people choose our family of brands over any other builder in the country, we never forget the most important thing of all – the families that choose us for their place to call home.
So continue to live out those dreams, America, and know we’ll be here for you every step of the way.
More new homes in Grand Prairie, Texas
PERRY Plan by D.R. Horton
saved to favorites!
To see all the homes you’ve saved, visit the My Favorites section of your account.
Discover More Great Communities
Select additional listings for more information
Way to Go!
An agent will be in contact soon!
