PINE Plan
Ready to build
238 Zelcova Drive, Eminence KY 40019
Home by D.R. Horton
at Arbor View
Last updated 24 hours ago
The Price Range displayed reflects the base price of the homes built in this community.
You get to select from the many different types of homes built by this Builder and personalize your New Home with options and upgrades.
4 BR
2.5 BA
2 GR
1,953 SQ FT
Claim this listing to update information, get access to exclusive tools and more!

Floorplan 0 1/1
Overview
1 Half Bathroom
2 Stories
Single Family
PINE Plan Info
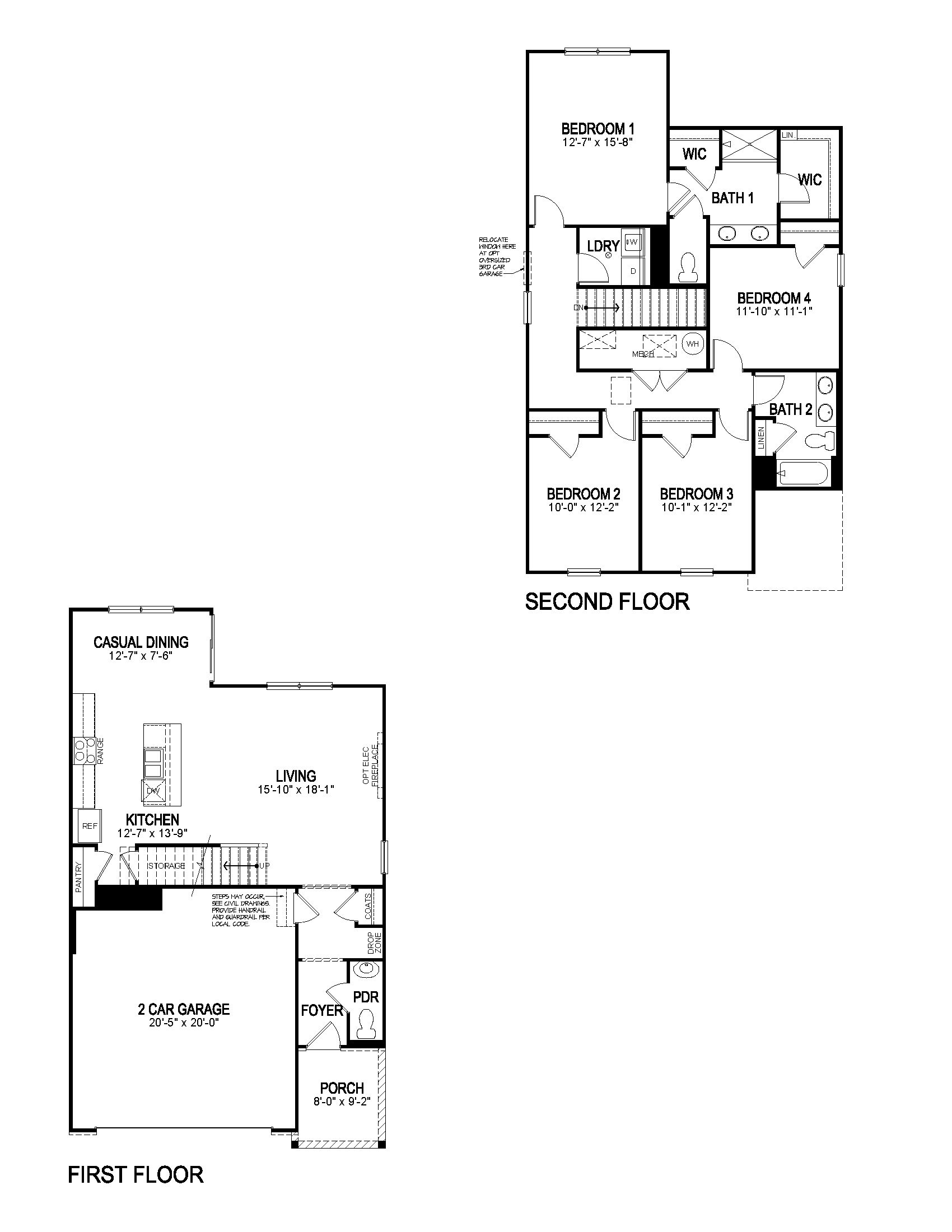
Introducing The Pine, a thoughtfully designed 1,953 square foot open-concept home in our Arbor View community in Eminence, Kentucky. offering the perfect blend of space, style, and convenience. With four bedrooms, two and a half bathrooms, and a two-car garage, The Pine is ideal for families looking for both comfort and functionality. As you enter, a welcoming foyer with a powder room and a coat closet greets you, leading you into the open concept living room, dining area, and kitchen, making it the perfect space for family gatherings or entertaining guests. The spacious kitchen is a chef's dream, featuring a large center island with seating, ample cabinet space, and stainless steel appliances. Upstairs, you'll find the Primary suite, complete with a bathroom that includes double vanities and a walk-in closet. Three additional spacious bedrooms share access to the second spacious full bathroom which also features a double vanity sink. The laundry room is also conveniently located on the second level. The Pine is a standout floor plan that provides modern living, spacious design, and luxurious finishes. Contact a new home specialist today to learn more about making Arbor View your new home! Photos are representative of the plan only and may vary as built.
Floor plan center
View floor plan details for this property.
- Floor Plans
- Exterior Images
- Interior Images
- Other Media
Neighborhood
Community location & sales center
238 Zelcova Drive
Eminence, KY 40019
238 Zelcova Drive
Eminence, KY 40019
888-790-3488
Schools near Arbor View
- Eminence Independent School District
Actual schools may vary. Contact the builder for more information.
Amenities
Home details
Ready to build
Build the home of your dreams with the PINE plan by selecting your favorite options. For the best selection, pick your lot in Arbor View today!
Neighborhood amenities
Save-A-Lot
0.64 mile away
704 Elm St
B & N Food Market
9.06 miles away
5945 Elmburg Rd
Sammy's Bakery LLC
0.42 mile away
352 Elm Tree Pl
Sammy's Bakery
1.28 miles away
448 W Broadway St
Red Barn Bakery LLC
4.84 miles away
2811 Clore Jackson Rd
El Nopal
0.56 mile away
697 Elm St
Save-A-Lot
0.64 mile away
704 Elm St
Counyry Express
0.83 mile away
5625 S Main St
Guru Enterprises
0.83 mile away
5625 S Main St
Hunt Brothers Pizza
0.83 mile away
5625 S Main St
Please note this information may vary. If you come across anything inaccurate, please contact us.
Builder details
D.R. Horton
In 1978, D.R. Horton broke ground on our first home in Fort Worth, Texas. Since that day, the company has defined its success not by bricks and mortar, but by the satisfaction of the families that make our houses their homes. Our foundation is a single, guiding principle: a value-first dedication to the individual needs of each and every one of our nation’s homebuyers.
From first-time homebuyers to empty nesters, our family of brands provides a home for every stage in life. Our highly-trained, market experts are where you want to live, from New Jersey to Hawaii, providing unique, personalized services tailored to your individual needs. But the real value comes from the quality construction we put into every home, and the peace of mind that comes with a premium-backed warranty from America’s Number One Homebuilder.
We’ve come a long way, and while more people choose our family of brands over any other builder in the country, we never forget the most important thing of all – the families that choose us for their place to call home.
So continue to live out those dreams, America, and know we’ll be here for you every step of the way.
More new homes in Eminence, Kentucky
PINE Plan by D.R. Horton
saved to favorites!
To see all the homes you’ve saved, visit the My Favorites section of your account.
Discover More Great Communities
Select additional listings for more information
Way to Go!
An agent will be in contact soon!
