5913 Conway Road
Under Construction
Bethesda, MD 20817
Custom Home by Douglas Construction Group
Last updated 22 hours ago
The Price Range displayed reflects the base price of the homes built in this community.
You get to select from the many different types of homes built by this Builder and personalize your New Home with options and upgrades.
5 BR
4.5 BA
2 GR
5,500 SQ FT
Claim this listing to update information, get access to exclusive tools and more!

Exterior 1/1
Overview
1 Half Bathroom
2 Car Garage
4 Bathrooms
5 Bedrooms
5500 Sq Ft
Single Family
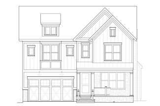
5913 Conway Road Home Info
A beautifully designed transitional home by claude c. Lapp aia offering 5500 finished sq. Ft. With 5 bedrooms and 4. 5 baths. This home combines open light-filled spaces with elegant details perfect for both everyday living and entertaining.
Neighborhood
Community location & sales center
Bethesda, MD 20817
Potomac, MD 20854
888-355-8096
Schools near Douglas Construction Group
- Montgomery County Public Schools
- Potomac Elementary School
- Herbert Hoover Middle School
- Winston Churchill High School
Actual schools may vary. Contact the builder for more information.
Builder details
Douglas Construction Group
More new homes in Bethesda, Maryland
5913 Conway Road by Douglas Construction Group
saved to favorites!
To see all the homes you’ve saved, visit the My Favorites section of your account.
Discover More Great Communities
Select additional listings for more information
Way to Go!
An agent will be in contact soon!