11376 Quail Ridge Drive
Under Construction
Plain City, OH 43064
Home by Manor Homes
Last updated 1 day ago
The Price Range displayed reflects the base price of the homes built in this community.
You get to select from the many different types of homes built by this Builder and personalize your New Home with options and upgrades.
5 BR
4.5 BA
3 GR
4,898 SQ FT
Claim this listing to update information, get access to exclusive tools and more!

Exterior 1/3
Overview
1 Half Bathroom
3 Car Garage
4 Bathrooms
4898 Sq Ft
5 Bedrooms
Single Family
11376 Quail Ridge Drive Home Info
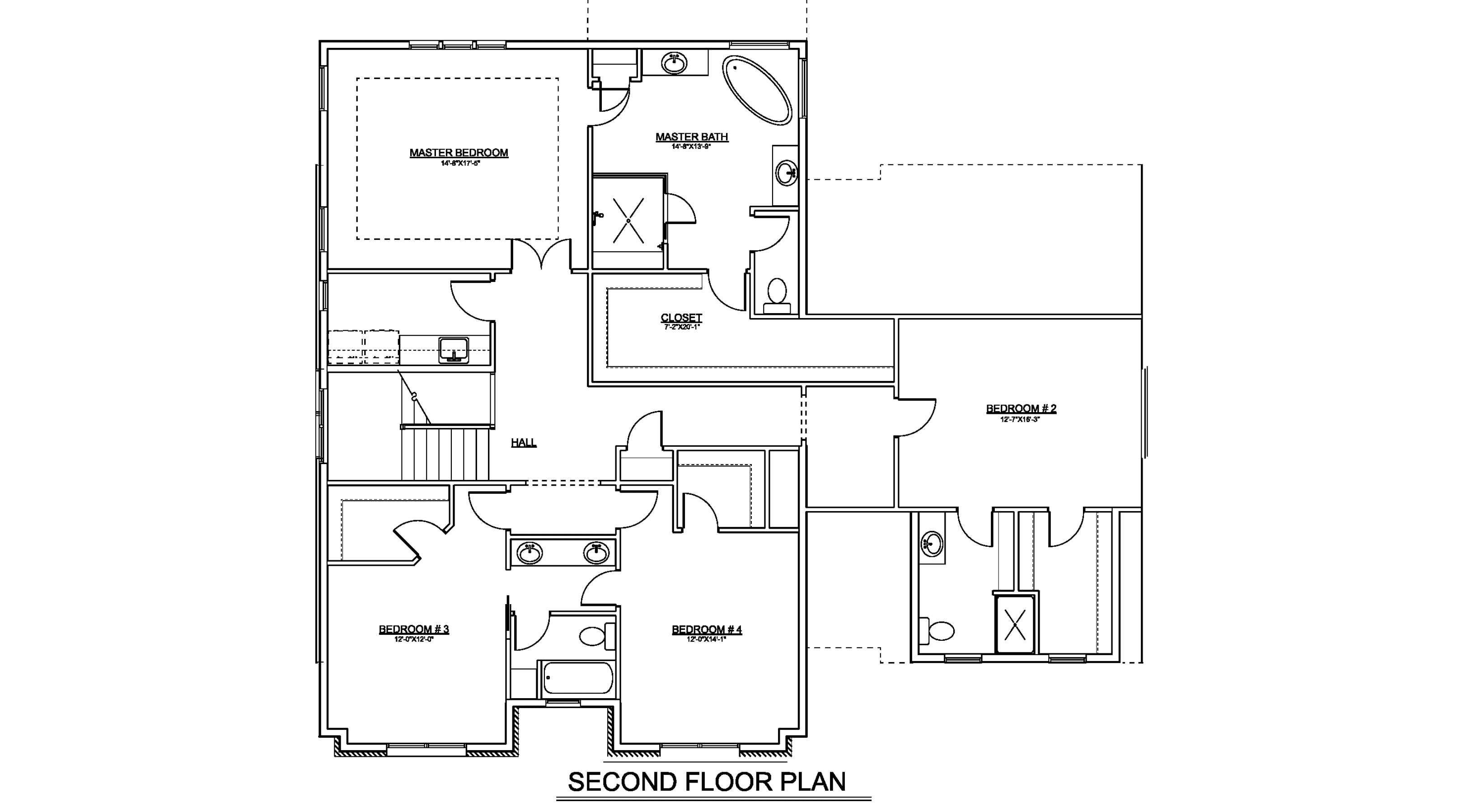
The spaciousness and attention to detail are appealing in this 2 story home. Having a large island kitchen with quartz countertops and a walk-in butler pantry make cooking and entertaining a joy. The 10 ft ceilings in the kitchen and great room create an open and airy feel. Having a private study is perfect for those who work from home or just need a quiet space to focus. The owner's suite with a custom shower and freestanding tub creates a luxurious retreat especially with the large walk-in closet. The second-floor laundry room with cabinets & sink is such a convenient feature. The finished basement with a rec room bedroom and bath adds even more living space and versatility. And of course a covered rear porch and a three-car garage is always a plus!.
Neighborhood
Community location & sales center
Plain City, OH 43064
Plain City, OH 43064
888-790-3488
Schools near Jerome Village
- Dublin City Schools
- Jonathan Alder Local Schools
Actual schools may vary. Contact the builder for more information.
Amenities
Home details
Now building
This home is currently under construction at 11376 Quail Ridge Drive and will soon be available for move-in at Jerome Village. Contact Manor Homes today to lock in your options!
Community & neighborhood
Health and fitness
- Trails
Neighborhood amenities
Costco Wholesale
0.59 mile away
7300 State Route 161 E
ALDI
4.01 miles away
7390 State Route 161 E
Kroger
5.47 miles away
7100 Hospital Dr
Giant Eagle
5.63 miles away
6700 Hayden Run Rd
Market District
5.92 miles away
6700 Perimeter Loop Rd
Heflin Caterers
2.76 miles away
9334 State Route 736
Amby Bakes
5.18 miles away
5175 Cosgray RD
Nothing Bundt Cakes
5.52 miles away
6560 Perimeter Dr
PJ Coffland
5.52 miles away
6560 Perimeter Dr
Lana's Bakery LLC
5.65 miles away
6327 Wismer Cir
Monarch Pizza LLC
0.07 mile away
209 W Bigelow Ave
Lil E's Ice Cream
0.42 mile away
461 W Main St
Sazon Latin Street Food
0.54 mile away
525 W Main St
Plain City Lanes Pizza
0.55 mile away
325 S Jefferson Ave
Jan & Tony's Pizza
0.58 mile away
542 W Main St
Tim Hortons
0.59 mile away
7290 State Route 161 E
Tropical Smoothie Cafe
4.23 miles away
7360 Sr 161
Starbucks
5.52 miles away
6510 Perimeter Dr
Tim Hortons
5.66 miles away
6850 Hospital Dr
Starbucks
5.80 miles away
5885 Frantz Rd
White Feather Gallery Boutique
0.32 mile away
294 North Ave
Costco Wholesale
0.59 mile away
7300 State Route 161 E
Holly's Unique Weddings & Gowns
3.50 miles away
7845 Plain City Georgesville Rd NE
T.J. Maxx & HomeGoods
4.02 miles away
7396 State Route 161 E
Mamenia's Closet Inc
5.43 miles away
6610 Traquair Pl
Buffalo Wild Wings
5.56 miles away
6595 Perimeter Dr
El Vaquero Mexican Restaurant
5.56 miles away
6549 Perimeter Dr
Los Jimadores
5.56 miles away
6549 Perimeter Dr
Matt the Miller's Tavern
5.64 miles away
6725 Avery Muirfield Dr
Donericks Pub
5.88 miles away
6542 Hayden Run Rd
Please note this information may vary. If you come across anything inaccurate, please contact us.
Builder details
Manor Homes
More new homes in Plain City, Ohio
11376 Quail Ridge Drive by Manor Homes
saved to favorites!
To see all the homes you’ve saved, visit the My Favorites section of your account.
Discover More Great Communities
Select additional listings for more information
Way to Go!
An agent will be in contact soon!