Plan 1619 Plan
Ready to build
7960 Rivermeadow Way, Sacramento CA 95832
Home by D.R. Horton
at Lucia
Last updated 1 day ago
4 BR
2.5 BA
2 GR
1,619 SQ FT
Claim this listing to update information, get access to exclusive tools and more!

Floorplan 0 1/1
Overview
1 Half Bathroom
2 Stories
Single Family
Plan 1619 Plan Info
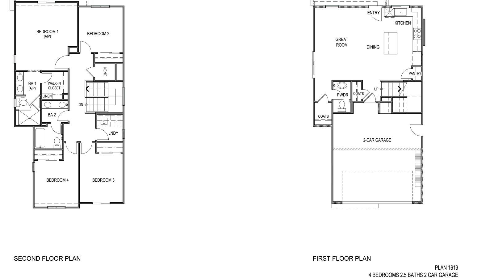
Explore the exquisite features of Plan 1619, a dream home perfectly designed for comfort and modern living. This spacious 1,619 square foot residence boasts 4 bedrooms, 2.5 bathrooms, and a 2-car garage across two well-appointed stories. The first floor of this home invites you through the entryway, which opens seamlessly into the great room. At the heart of the home, the modern kitchen boasts quartz countertops and stainless-steel appliances and elegant Shaker style cabinets. Just off the kitchen is the dining room, which is perfect for shared meals and special occasions. Additionally, the walk-in pantry ensures ample storage for all your culinary essentials. A coat closet and powder room are conveniently located on the first floor. Traveling upstairs you will find four spacious bedrooms and a full bathroom. The primary bedroom suite includes a spa inspired bathroom with quartz countertops, dual sinks and a generously sized shower. Conveniently situated on the second floor is the laundry room and linen closet. The home is meticulously detailed with Mohawk carpeting and plank flooring. Technology and innovation are seamlessly integrated with smart home features, including a control panel, doorbell, and lamp module, enhancing convenience and security. Plan 1619 promises an exceptional living experience, blending style and modern amenities perfectly suited for discerning new home buyers.
Floor plan center
View floor plan details for this property.
- Floor Plans
- Exterior Images
- Interior Images
- Other Media
Neighborhood
Community location & sales center
7960 Rivermeadow Way
Sacramento, CA 95832
7960 Rivermeadow Way
Sacramento, CA 95832
888-790-3488
Schools near Lucia
- Sacramento City Unified School District
Actual schools may vary. Contact the builder for more information.
Amenities
Home details
Ready to build
Build the home of your dreams with the Plan 1619 plan by selecting your favorite options. For the best selection, pick your lot in Lucia today!
Builder details
D.R. Horton
In 1978, D.R. Horton broke ground on our first home in Fort Worth, Texas. Since that day, the company has defined its success not by bricks and mortar, but by the satisfaction of the families that make our houses their homes. Our foundation is a single, guiding principle: a value-first dedication to the individual needs of each and every one of our nation’s homebuyers.
From first-time homebuyers to empty nesters, our family of brands provides a home for every stage in life. Our highly-trained, market experts are where you want to live, from New Jersey to Hawaii, providing unique, personalized services tailored to your individual needs. But the real value comes from the quality construction we put into every home, and the peace of mind that comes with a premium-backed warranty from America’s Number One Homebuilder.
We’ve come a long way, and while more people choose our family of brands over any other builder in the country, we never forget the most important thing of all – the families that choose us for their place to call home.
So continue to live out those dreams, America, and know we’ll be here for you every step of the way.
More new homes in Sacramento, California
Plan 1619 Plan by D.R. Horton
saved to favorites!
To see all the homes you’ve saved, visit the My Favorites section of your account.
Discover More Great Communities
Select additional listings for more information
Way to Go!
An agent will be in contact soon!
