Plan 1678 Plan
Ready to build
886 Pico Place, Chico CA 95973
Home by D.R. Horton
Last updated 3 days ago
The Price Range displayed reflects the base price of the homes built in this community.
You get to select from the many different types of homes built by this Builder and personalize your New Home with options and upgrades.
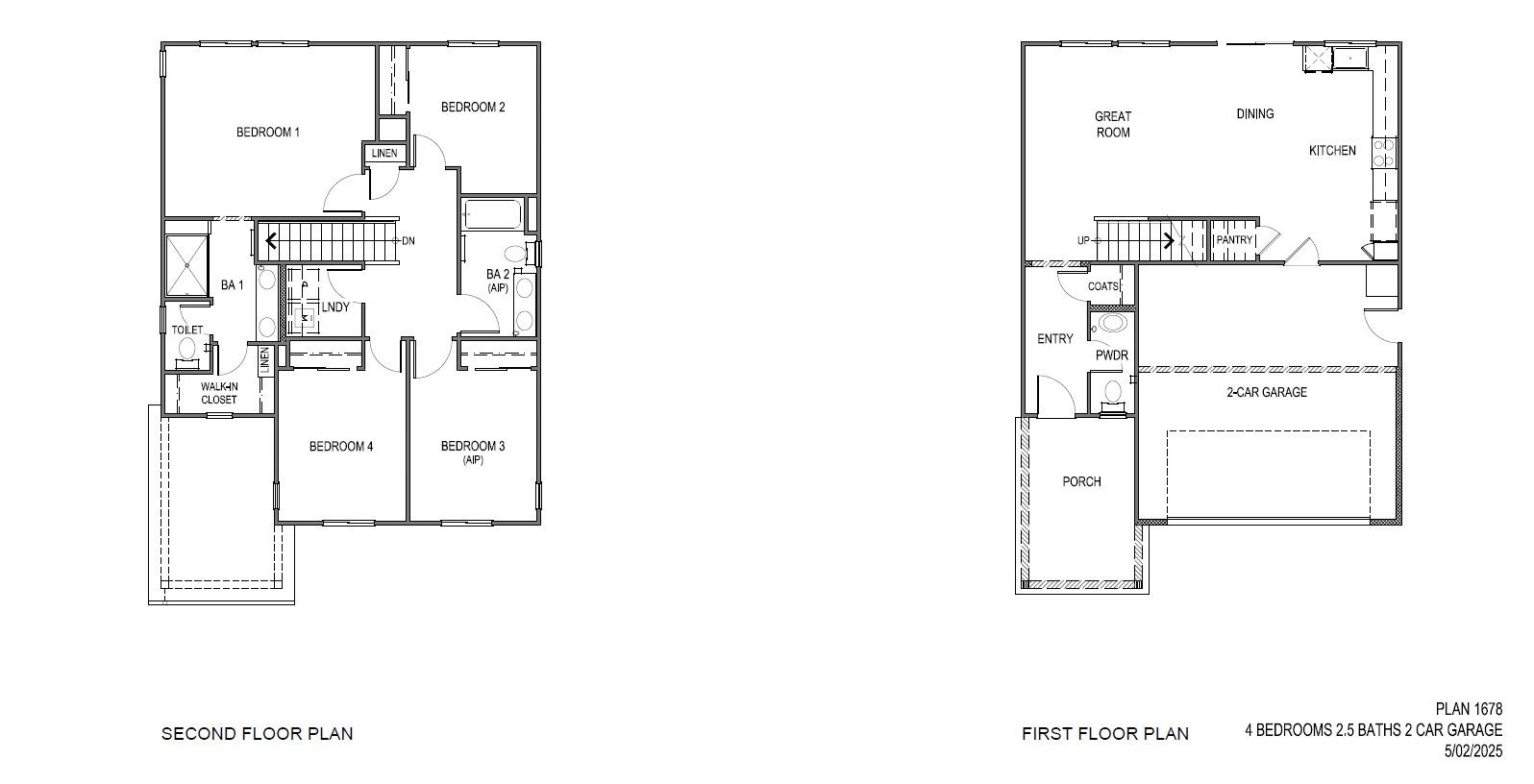
4 BR
2.5 BA
2 GR
1,678 SQ FT
Claim this listing to update information, get access to exclusive tools and more!

Floorplan 0 1/1
Overview
1 Half Bathroom
1678 Sq Ft
2 Bathrooms
2 Car Garage
2 Stories
4 Bedrooms
Single Family
Plan 1678 Plan Info
Explore the exceptional two-story 1678 plan at Amber Lynn Estates, offering a perfect blend of comfort and style. This spacious home features 4 bedrooms, 2.5 bathrooms, and a 2-car garage, ideal for modern family living. Step inside to discover thoughtful details throughout, including a designated kitchen pantry for optimal storage and convenience. Bedroom 1 boasts a large walk-in closet, providing ample space for wardrobe essentials. Enjoy the convenience of a second-story laundry room, making chores a breeze. Outside, experience beautiful curb appeal with your choice of 3 distinctive exterior styles, ensuring your home stands out in the neighborhood. In the kitchen, cooking is a joy with the Whirlpool 30" stainless steel freestanding gas range and complementing Whirlpool 30" microwave/hood combo. Clean up effortlessly with the Whirlpool 24" built-in dishwasher. Bathrooms are designed for luxury with chrome fixtures, elongated toilets, and exquisite E-Stone countertops. Preselected elegant shaker style cabinets in either white or gray, adding a touch of sophistication to every room. Modern amenities abound, including Deako switches, USB charging outlets in the kitchen, and GFCI nightlight combo outlets in all baths, enhancing both convenience and safety. Experience comfort throughout the home with Mohawk carpet and MSI luxury vinyl plank flooring, complemented by a Honeywell programmable thermostat for efficient HVAC control. Additional features include Quartz counte
Floor plan center
View floor plan details for this property.
- Floor Plans
- Exterior Images
- Interior Images
- Other Media
Neighborhood
Community location & sales center
886 Pico Place
Chico, CA 95973
886 Pico Place
Chico, CA 95973
888-790-3488
Schools near Amber Lynn Estates
- Chico Unified School District
Actual schools may vary. Contact the builder for more information.
Amenities
Home details
Ready to build
Build the home of your dreams with the Plan 1678 plan by selecting your favorite options. For the best selection, pick your lot in Amber Lynn Estates today!
Builder details
D.R. Horton
In 1978, D.R. Horton broke ground on our first home in Fort Worth, Texas. Since that day, the company has defined its success not by bricks and mortar, but by the satisfaction of the families that make our houses their homes. Our foundation is a single, guiding principle: a value-first dedication to the individual needs of each and every one of our nation’s homebuyers.
From first-time homebuyers to empty nesters, our family of brands provides a home for every stage in life. Our highly-trained, market experts are where you want to live, from New Jersey to Hawaii, providing unique, personalized services tailored to your individual needs. But the real value comes from the quality construction we put into every home, and the peace of mind that comes with a premium-backed warranty from America’s Number One Homebuilder.
We’ve come a long way, and while more people choose our family of brands over any other builder in the country, we never forget the most important thing of all – the families that choose us for their place to call home.
So continue to live out those dreams, America, and know we’ll be here for you every step of the way.
More new homes in Chico, California
Plan 1678 Plan by D.R. Horton
saved to favorites!
To see all the homes you’ve saved, visit the My Favorites section of your account.
Discover More Great Communities
Select additional listings for more information
Way to Go!
An agent will be in contact soon!
