Plan 2311 Plan
Ready to build
316 Whistle Court, Roseville CA 95747
Home by D.R. Horton
Last updated 2 days ago
The Price Range displayed reflects the base price of the homes built in this community.
You get to select from the many different types of homes built by this Builder and personalize your New Home with options and upgrades.
5 BR
3 BA
2 GR
2,311 SQ FT
Claim this listing to update information, get access to exclusive tools and more!

Floorplan 0 1/1
Overview
2 Car Garage
2 Stories
2311 Sq Ft
3 Bathrooms
5 Bedrooms
Single Family
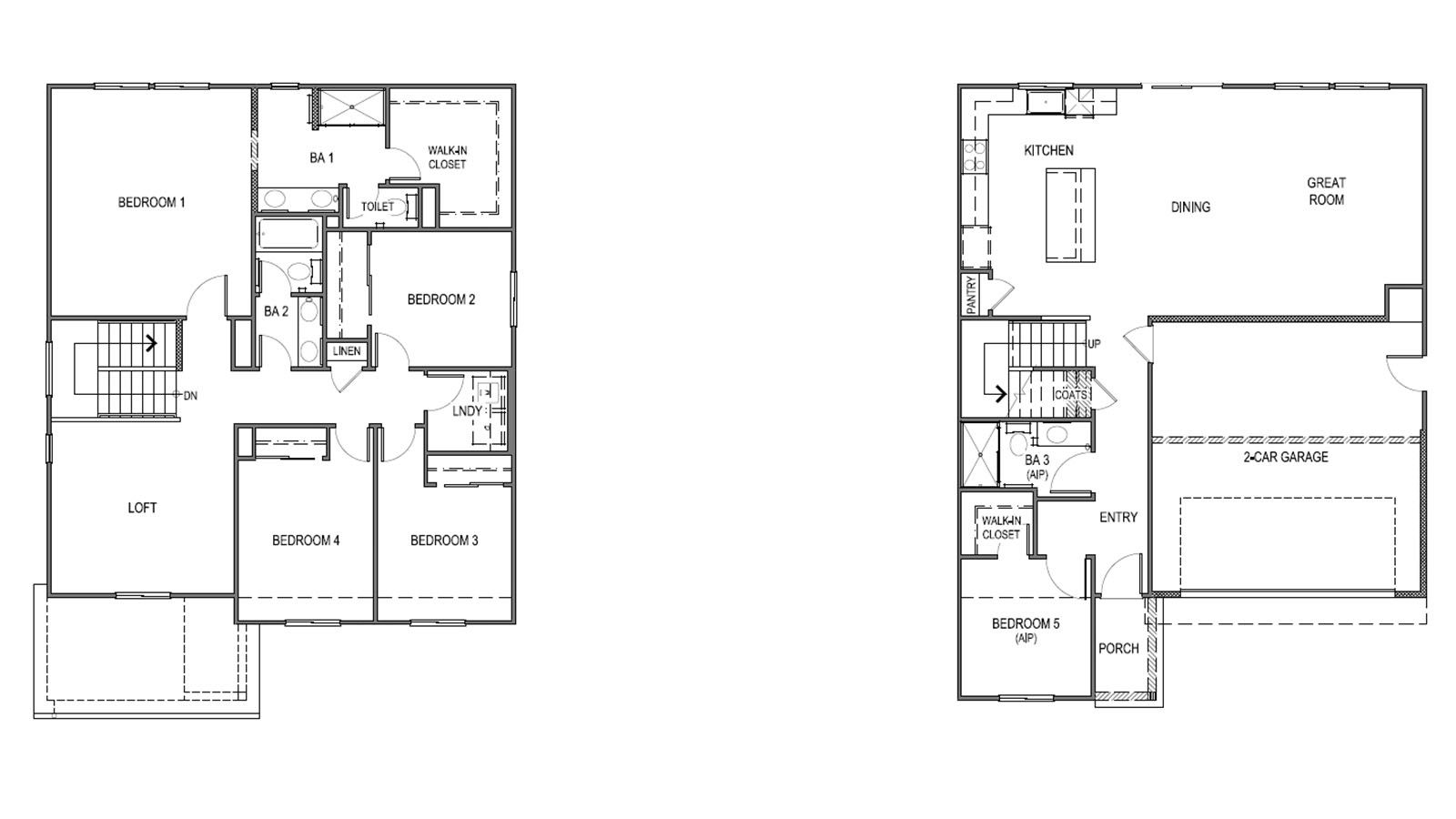
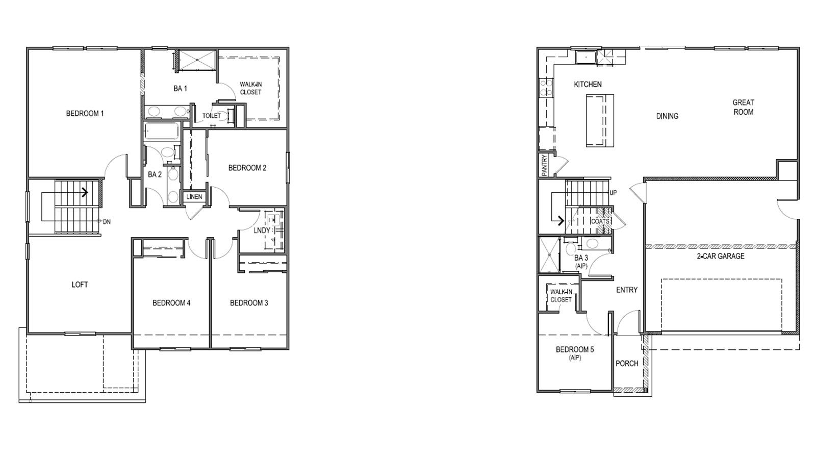
Plan 2311 Plan Info
Discover Plan 2311, a spacious 5-bedroom, 3-bathroom home ideal for modern living. This 2-story residence spans 2,311 sq. ft. and features a thoughtful layout with 1 bedroom downstairs and 4 upstairs, including a loft space. Enjoy the convenience of walk-in closets on both levels, along with a suite of Whirlpool appliances in the kitchen, including a ceramic cooktop wall oven, microwave/hood combo, and built-in dishwasher. Each bathroom is elegantly appointed with chrome fixtures, elongated toilets, and quartz countertops. The kitchen boasts shaker-style cabinets, quartz countertops, and Deako switches with a USB charging outlet. Throughout the home, you'll find smart features like a Honeywell programmable thermostat and WiFi-enabled garage door opener. Additional highlights include Mohawk carpeting, MSI laminate flooring and concrete tile roofing. This home is designed for comfort and efficiency, featuring modern conveniences such as a side garage access door, GFCI nightlight combo outlets in all baths, and surface mount LED lights. This home is ideal for those seeking contemporary comfort and functionality in every detail.
Floor plan center
View floor plan details for this property.
- Floor Plans
- Exterior Images
- Interior Images
- Other Media
Neighborhood
Community location & sales center
316 Whistle Court
Roseville, CA 95747
316 Whistle Court
Roseville, CA 95747
888-790-3488
Schools near Aviara at Amoruso Ranch
- Roseville City Elementary School District
- Roseville Joint Union High School District
Actual schools may vary. Contact the builder for more information.
Amenities
Home details
Ready to build
Build the home of your dreams with the Plan 2311 plan by selecting your favorite options. For the best selection, pick your lot in Aviara at Amoruso Ranch today!
Builder details
D.R. Horton
In 1978, D.R. Horton broke ground on our first home in Fort Worth, Texas. Since that day, the company has defined its success not by bricks and mortar, but by the satisfaction of the families that make our houses their homes. Our foundation is a single, guiding principle: a value-first dedication to the individual needs of each and every one of our nation’s homebuyers.
From first-time homebuyers to empty nesters, our family of brands provides a home for every stage in life. Our highly-trained, market experts are where you want to live, from New Jersey to Hawaii, providing unique, personalized services tailored to your individual needs. But the real value comes from the quality construction we put into every home, and the peace of mind that comes with a premium-backed warranty from America’s Number One Homebuilder.
We’ve come a long way, and while more people choose our family of brands over any other builder in the country, we never forget the most important thing of all – the families that choose us for their place to call home.
So continue to live out those dreams, America, and know we’ll be here for you every step of the way.
More new homes in Roseville, California
Plan 2311 Plan by D.R. Horton
saved to favorites!
To see all the homes you’ve saved, visit the My Favorites section of your account.
Discover More Great Communities
Select additional listings for more information
Way to Go!
An agent will be in contact soon!
