Plan 2311 Plan
Ready to build
1214 Jefferson Avenue, Yuba City CA 95993
Home by D.R. Horton
Last updated 1 day ago
The Price Range displayed reflects the base price of the homes built in this community.
You get to select from the many different types of homes built by this Builder and personalize your New Home with options and upgrades.
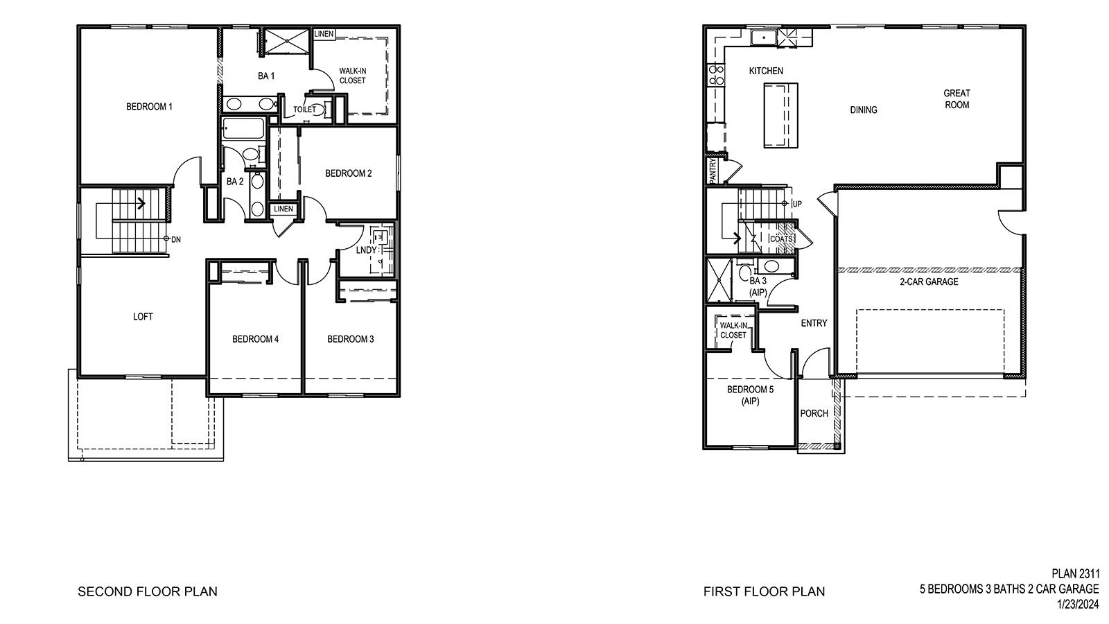
5 BR
3 BA
2 GR
2,311 SQ FT
Claim this listing to update information, get access to exclusive tools and more!

Floorplan 0 1/1
Overview
2 Car Garage
2 Stories
2311 Sq Ft
3 Bathrooms
5 Bedrooms
Single Family
Plan 2311 Plan Info
Welcome to Plan 2311, a luxurious two-story home designed for those seeking spaciousness, comfort, and modern amenities. Spanning 2,311 sq. ft., this impressive residence features five bedrooms, three bathrooms, and a two-car garage, ideal for those who love a large space or love to entertain. The kitchen is equipped with top-of-the-line Whirlpool stainless steel appliances, including a 30" freestanding electric range, microwave/hood combo, and built-in dishwasher, all complemented by elegant granite countertops that extend seamlessly into each bathroom for a cohesive look. Indulge in relaxation with Bath 1's chrome-framed shower enclosure with fiberglass surround, while Bath 2 offers a convenient fiberglass tub/shower combo with a shower rod. Each bathroom features elongated toilets and stylish chrome fixtures, adding a touch of sophistication. The kitchen showcases Full Overlay Shaker style cabinets in timeless white, complete with sleek hardware and 30" uppers, providing ample storage space for culinary essentials. Enjoy the convenience of Deako switches, USB charging outlets strategically placed in the kitchen, and GFCI nightlight combo outlets in all baths for added safety. Energy-efficient features include surface mount LED lights throughout the ceilings and pre-wiring for ceiling fans in the Great Room and all bedrooms. Step outside to relax on the covered porch or retreat to the loft, offering additional living space for hobbies or relaxation. Additional features i
Floor plan center
View floor plan details for this property.
- Floor Plans
- Exterior Images
- Interior Images
- Other Media
Neighborhood
Community location & sales center
1214 Jefferson Avenue
Yuba City, CA 95993
1214 Jefferson Avenue
Yuba City, CA 95993
888-790-3488
Schools near Harter Estates
- Yuba City Unified School District
Actual schools may vary. Contact the builder for more information.
Amenities
Home details
Ready to build
Build the home of your dreams with the Plan 2311 plan by selecting your favorite options. For the best selection, pick your lot in Harter Estates today!
Builder details
D.R. Horton
In 1978, D.R. Horton broke ground on our first home in Fort Worth, Texas. Since that day, the company has defined its success not by bricks and mortar, but by the satisfaction of the families that make our houses their homes. Our foundation is a single, guiding principle: a value-first dedication to the individual needs of each and every one of our nation’s homebuyers.
From first-time homebuyers to empty nesters, our family of brands provides a home for every stage in life. Our highly-trained, market experts are where you want to live, from New Jersey to Hawaii, providing unique, personalized services tailored to your individual needs. But the real value comes from the quality construction we put into every home, and the peace of mind that comes with a premium-backed warranty from America’s Number One Homebuilder.
We’ve come a long way, and while more people choose our family of brands over any other builder in the country, we never forget the most important thing of all – the families that choose us for their place to call home.
So continue to live out those dreams, America, and know we’ll be here for you every step of the way.
More new homes in Yuba City, California
Plan 2311 Plan by D.R. Horton
saved to favorites!
To see all the homes you’ve saved, visit the My Favorites section of your account.
Discover More Great Communities
Select additional listings for more information
Way to Go!
An agent will be in contact soon!
