PLAN D204 Plan
Ready to build
91 4116 Hikuha Street, Kapolei HI 96707
Home by D.R. Horton
Last updated 1 day ago
The Price Range displayed reflects the base price of the homes built in this community.
You get to select from the many different types of homes built by this Builder and personalize your New Home with options and upgrades.
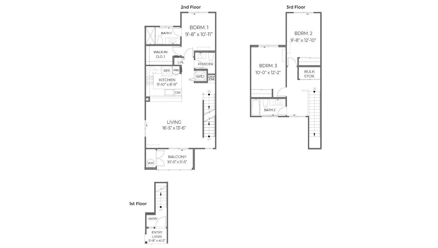
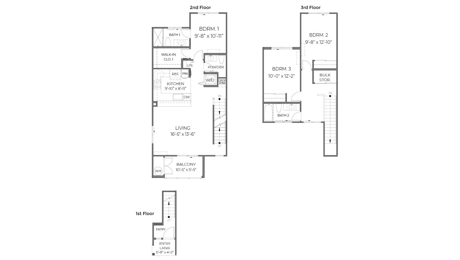
3 BR
2.5 BA
1,317 SQ FT
Claim this listing to update information, get access to exclusive tools and more!

Floorplan 0 1/1
Overview
1 Half Bathroom
2 Stories
Townhouse
PLAN D204 Plan Info
This three story 3 bedroom and 2.5 bathroom condominium consists of 1,317 square feet of net living area. When you step into this home, you will be greeted by a staircase that leads you into the living room and peninsula kitchen featuring stainless steel appliances and white soft-close cabinets. Nearby is a convenient powder room. On the second floor, you'll find the primary bedroom with a walk-in closet and ensuite bathroom with a vanity sink and walk-in shower. Relax and take in the fresh air on the balcony off the living room. The third floor features two secondary bedrooms, each with mirrored sliding door closets and a secondary bathroom with a combination bathtub and shower adjacent to an open concept family room. Split air conditioning and modern appliances including a range/oven, micro-hood, dishwasher, refrigerator, and washer/dryer allow for ease of living.
Floor plan center
View floor plan details for this property.
- Floor Plans
- Exterior Images
- Interior Images
- Other Media
Neighborhood
Community location & sales center
91 4116 Hikuha Street <br/> Kapolei, HI 96707
91 4116 Hikuha Street <br/> Kapolei, HI 96707
888-790-3488
Schools near Alana at Ho'opili Pohaku Estates
- Hawaii Department Of Education
Actual schools may vary. Contact the builder for more information.
Amenities
Home details
Ready to build
Build the home of your dreams with the PLAN D204 plan by selecting your favorite options. For the best selection, pick your lot in Alana at Ho'opili Pohaku Estates today!
Builder details
D.R. Horton
In 1978, D.R. Horton broke ground on our first home in Fort Worth, Texas. Since that day, the company has defined its success not by bricks and mortar, but by the satisfaction of the families that make our houses their homes. Our foundation is a single, guiding principle: a value-first dedication to the individual needs of each and every one of our nation’s homebuyers.
From first-time homebuyers to empty nesters, our family of brands provides a home for every stage in life. Our highly-trained, market experts are where you want to live, from New Jersey to Hawaii, providing unique, personalized services tailored to your individual needs. But the real value comes from the quality construction we put into every home, and the peace of mind that comes with a premium-backed warranty from America’s Number One Homebuilder.
We’ve come a long way, and while more people choose our family of brands over any other builder in the country, we never forget the most important thing of all – the families that choose us for their place to call home.
So continue to live out those dreams, America, and know we’ll be here for you every step of the way.
More new homes in Kapolei, Hawaii
PLAN D204 Plan by D.R. Horton
saved to favorites!
To see all the homes you’ve saved, visit the My Favorites section of your account.
Discover More Great Communities
Select additional listings for more information
Way to Go!
An agent will be in contact soon!
