PLAN J103 Plan
Ready to build
91 4116 Hikuha Street, Kapolei HI 96707
Home by D.R. Horton
Last updated 2 days ago
The Price Range displayed reflects the base price of the homes built in this community.
You get to select from the many different types of homes built by this Builder and personalize your New Home with options and upgrades.
3 BR
3.5 BA
1 GR
1,497 SQ FT
Claim this listing to update information, get access to exclusive tools and more!

Floorplan 0 1/1
Overview
1 Car Garage
1 Half Bathroom
1497 Sq Ft
3 Bathrooms
3 Bedrooms
3 Stories
Townhome
PLAN J103 Plan Info
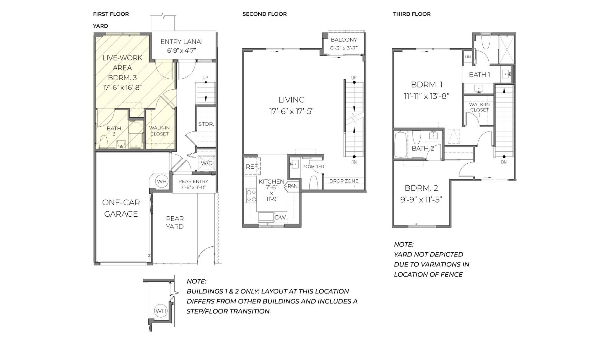
This three story condominium FLEX® floorplan has 3 bedrooms and 3.5 bathrooms and consists of 1,497 square feet of net living area. When you step into this home, you will be greeted by a versatile space that can be used as a live/work area designed for your entrepreneurial needs, or a bedroom designed as a ground level ensuite, offering a bathroom with a sink and combination tub and shower, as well as a walk-in closet. The separate entry to the home greets you to a staircase leading you into the living and dining area which flows seamlessly into the kitchen, featuring stainless steel appliances and white soft-close cabinets. On the third floor, you'll find the primary bedroom with a walk-in closet and ensuite bathroom with a double vanity and separate walk-in shower and water closet. Down the hall is the secondary bedroom with a generously sized closet and mirrored sliding doors. This bedroom has an additional ensuite bathroom that includes a combination bathtub and shower. Attached to this home is a single-car garage. Split air conditioning and modern appliances including a range/oven, micro-hood, dishwasher, refrigerator, and washer/dryer allow for ease of living.
Floor plan center
View floor plan details for this property.
- Floor Plans
- Exterior Images
- Interior Images
- Other Media
Neighborhood
Community location & sales center
91 4116 Hikuha Street
Kapolei, HI 96707
91 4116 Hikuha Street
Kapolei, HI 96707
888-790-3488
Schools near Alana at Ho'opili Pohaku Estates
- Hawaii Department Of Education
Actual schools may vary. Contact the builder for more information.
Amenities
Home details
Ready to build
Build the home of your dreams with the PLAN J103 plan by selecting your favorite options. For the best selection, pick your lot in Alana at Ho'opili Pohaku Estates today!
Builder details
D.R. Horton
In 1978, D.R. Horton broke ground on our first home in Fort Worth, Texas. Since that day, the company has defined its success not by bricks and mortar, but by the satisfaction of the families that make our houses their homes. Our foundation is a single, guiding principle: a value-first dedication to the individual needs of each and every one of our nation’s homebuyers.
From first-time homebuyers to empty nesters, our family of brands provides a home for every stage in life. Our highly-trained, market experts are where you want to live, from New Jersey to Hawaii, providing unique, personalized services tailored to your individual needs. But the real value comes from the quality construction we put into every home, and the peace of mind that comes with a premium-backed warranty from America’s Number One Homebuilder.
We’ve come a long way, and while more people choose our family of brands over any other builder in the country, we never forget the most important thing of all – the families that choose us for their place to call home.
So continue to live out those dreams, America, and know we’ll be here for you every step of the way.
More new homes in Kapolei, Hawaii
PLAN J103 Plan by D.R. Horton
saved to favorites!
To see all the homes you’ve saved, visit the My Favorites section of your account.
Discover More Great Communities
Select additional listings for more information
Way to Go!
An agent will be in contact soon!
