401 CHERRY TREE DRIVE (REGENT)
Under Construction
Butler, PA 16001
Home by D.R. Horton
at Autumn Woods
Last updated 2 days ago
The Price Range displayed reflects the base price of the homes built in this community.
You get to select from the many different types of homes built by this Builder and personalize your New Home with options and upgrades.
3 BR
2.5 BA
2 GR
2,208 SQ FT
Claim this listing to update information, get access to exclusive tools and more!

Floor Plan 1/1
Overview
1 Half Bathroom
2 Bathrooms
2 Car Garage
2208 Sq Ft
3 Bedrooms
3 Stories
Multi Family
401 CHERRY TREE DRIVE (REGENT) Home Info
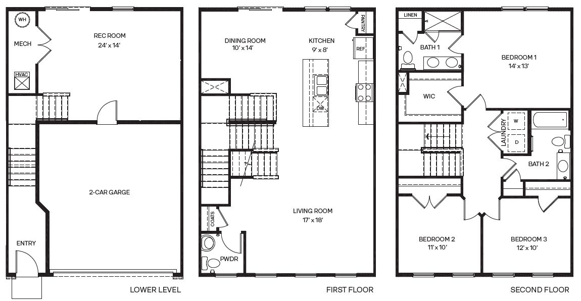
The Regent by D.R. Horton is a stunning new construction 3- story townhome plan featuring 2,208 square feet of open living space, 3 bedrooms, 2.5 baths and 2-car garage. The convenience of townhome living meets the amenities of a single-family home with the Regent. The main level eat-in kitchen with large pantry and modern island opens to an airy, bright dining and living room. The upper level features 3 bedrooms, all with generous closet space, a hall bath, upstairs laundry, and spacious owner's suite that highlights a large walk-in closet and owner's bath with double vanity. The finished rec room is the perfect additional space for both entertaining and storage! Autumn Woods is a new community located in Meridian, PA that is situation in a beautiful tree lined setting. The community features a Community Clubhouse with a fitness center and pool. Enjoy meeting neighbors or hosting a private event. Spacious backyards that can be fenced, and lawn care and snow removal included.
Floor plan center
View floor plan details for this property.
- Floor Plans
- Exterior Images
- Interior Images
- Other Media
Neighborhood
Community location & sales center
1604 Cherry Tree Drive
Butler, PA 16001
1604 Cherry Tree Drive
Butler, PA 16001
888-790-3488
Schools near Autumn Woods
- Butler Area School District
Actual schools may vary. Contact the builder for more information.
Amenities
Home details
Now building
This home is currently under construction at 401 CHERRY TREE DRIVE and will soon be available for move-in at Autumn Woods. Contact D.R. Horton today to lock in your options!
Neighborhood amenities
Giant Eagle
2.31 miles away
700 Moraine Pointe Plz
Sam's Club
2.38 miles away
200 Moraine Pointe Plz
ALDI
2.47 miles away
300 Butler CMNS
Sharp Shopper
2.65 miles away
180 Point Plz
Walmart Supercenter
2.65 miles away
400 Butler CMNS
Sam's Club Bakery
2.38 miles away
200 Moraine Pointe Plz
GNC
2.39 miles away
260 Moraine Pointe Plz
Walmart Bakery
2.65 miles away
400 Butler CMNS
Lyndora National Baking Co
2.90 miles away
8 Chesapeake St
Tanner's Bake House
2.90 miles away
8 Chesapeake St
W Rick's Taproom & Grill
0.26 mile away
269 Meridian Rd
Missing Links Brewery
1.04 miles away
891 Evans City Rd
Debbie Lee's Delight
1.06 miles away
886 Evans City Rd
Pizza Pie
1.08 miles away
572 Evans City Rd
King Cones Castle
1.09 miles away
566 Evans City Rd
Cummings Coffee
1.16 miles away
530 Evans City Rd
Tropical Smoothie Cafe
2.48 miles away
340 New Castle Rd
Dunkin'
2.49 miles away
540 Butler Xing
Starbucks
2.50 miles away
310 Greenwood Plz
Dunkin'
2.59 miles away
134 Pittsburgh Rd
Sam's Club
2.38 miles away
200 Moraine Pointe Plz
maurices
2.52 miles away
310 Butler CMNS
Famous Footwear
2.52 miles away
320 Butler CMNS
Target
2.55 miles away
200 Butler CMNS
Ross Dress For Less
2.61 miles away
720 Butler Crossing
Rock Ann Haven
2.26 miles away
141 Greenwood Dr
Chili's
2.45 miles away
115 Butler CMNS
Sherwood Lanes
2.92 miles away
11 Lyn Mar Plz
Crossbow Lounge
2.98 miles away
13 Lyn Mar Plz
11th Frame
3.04 miles away
540 Fairground Hill Rd
Please note this information may vary. If you come across anything inaccurate, please contact us.
Builder details
D.R. Horton
In 1978, D.R. Horton broke ground on our first home in Fort Worth, Texas. Since that day, the company has defined its success not by bricks and mortar, but by the satisfaction of the families that make our houses their homes. Our foundation is a single, guiding principle: a value-first dedication to the individual needs of each and every one of our nation’s homebuyers.
From first-time homebuyers to empty nesters, our family of brands provides a home for every stage in life. Our highly-trained, market experts are where you want to live, from New Jersey to Hawaii, providing unique, personalized services tailored to your individual needs. But the real value comes from the quality construction we put into every home, and the peace of mind that comes with a premium-backed warranty from America’s Number One Homebuilder.
We’ve come a long way, and while more people choose our family of brands over any other builder in the country, we never forget the most important thing of all – the families that choose us for their place to call home.
So continue to live out those dreams, America, and know we’ll be here for you every step of the way.
More new homes in Butler, Pennsylvania
401 CHERRY TREE DRIVE (REGENT) by D.R. Horton
saved to favorites!
To see all the homes you’ve saved, visit the My Favorites section of your account.
Discover More Great Communities
Select additional listings for more information
Way to Go!
An agent will be in contact soon!
