Regent - Finished Basement Plan
Ready to build
100 Union Way, Harmony PA 16037
Home by D.R. Horton
Last updated 2 days ago
The Price Range displayed reflects the base price of the homes built in this community.
You get to select from the many different types of homes built by this Builder and personalize your New Home with options and upgrades.
3 BR
2.5 BA
2 GR
2,208 SQ FT
Claim this listing to update information, get access to exclusive tools and more!

Floorplan 0 1/1
Overview
1 Half Bathroom
2 Bathrooms
2 Car Garage
2208 Sq Ft
3 Bedrooms
3 Stories
Townhome
Regent - Finished Basement Plan Info
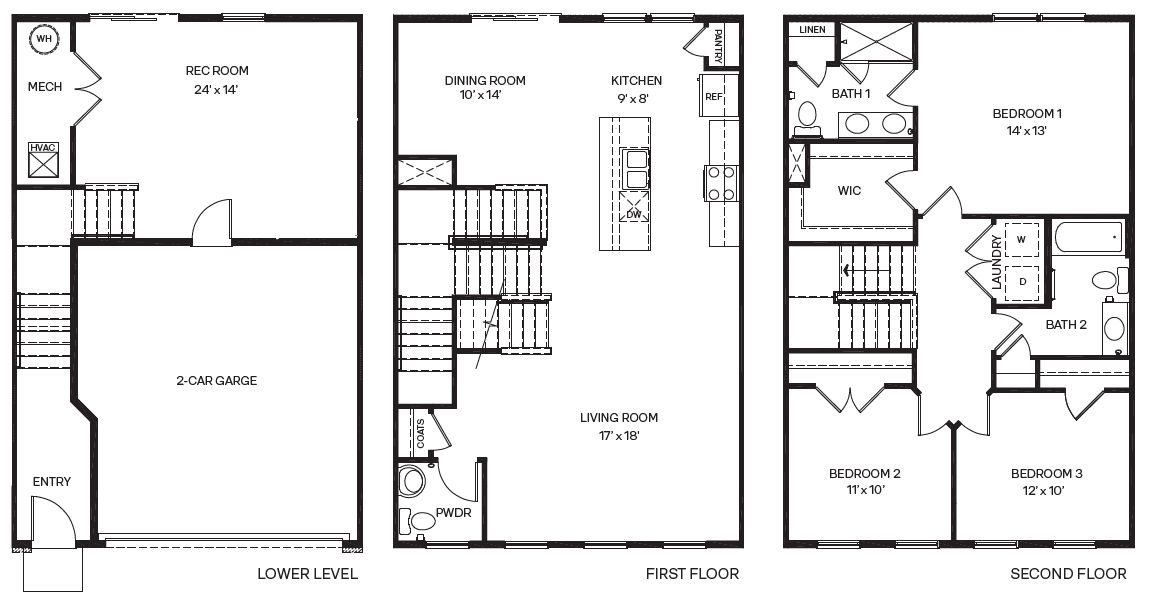
The Regent by D.R. Horton is a stunning new construction 3- story townhome plan featuring 2,208 square feet of open living space, 3 bedrooms, 2.5 baths and 1 or 2-car garage. The convenience of townhome living meets the amenities of a single-family home with the Regent. The main level eat-in kitchen with large pantry and modern island opens to an airy, bright dining and living room. The upper level features 3 bedrooms, all with generous closet space, a hall bath, upstairs laundry, and spacious owner's suite that highlights a large walk-in closet and owner's bath with double vanity. The finished rec room is the perfect additional space for both entertaining and storage! At Creekside Manor, everything you need is right at your fingertips. Whether it's grabbing a coffee, enjoying a local meal, or meeting up with friends, you'll love being surrounded by everyday conveniences and opportunities for fun. Plus, with easy access to I-79, commuting to work or nearby towns is a breeze. Beyond your doorstep, residents enjoy quick access to recreation, shopping, dining, and seasonal events that make the area feel like a true hometown. It's more than just a place to live-it's a place to belong. With this unbeatable combination of location, thoughtful design, and incredible value, Creekside Manor offers the lifestyle you've been searching for. Don't miss your chance to join this vibrant community-schedule your visit today!
Floor plan center
View floor plan details for this property.
- Floor Plans
- Exterior Images
- Interior Images
- Other Media
Neighborhood
Community location & sales center
100 Union Way
Harmony, PA 16037
100 Union Way
Harmony, PA 16037
888-790-3488
Schools near Creekside Manor
- Seneca Valley School District
- Seneca Valley Middle School
Actual schools may vary. Contact the builder for more information.
Amenities
Home details
Ready to build
Build the home of your dreams with the Regent - Finished Basement plan by selecting your favorite options. For the best selection, pick your lot in Creekside Manor today!
Nearby schools
Seneca Valley School District
Elementary-Middle-High school. Grades KG to 12.
- Public school
- Students enrolled: 50
126 Seneca School Rd, Harmony, PA, 16037
724-452-6040
Actual schools may vary. We recommend verifying with the local school district, the school assignment and enrollment process.
Neighborhood amenities
Northgate Bi-Lo Foods & Pharmacy
0.56 mile away
115 Perry Hwy
South West Butler County Food
2.94 miles away
557 Perry Hwy
Evans City Comm Food Cupboard
4.50 miles away
202 Van Buren St
Giant Eagle
7.43 miles away
289 Route 288
Doug Barrante Designs
7.51 miles away
106 Thomson Park Dr
Lagerhaus Bakery
0.25 mile away
534 Main St
Tin Man Sweets
0.60 mile away
100 Perry Hwy
Health Naturale
0.61 mile away
114 Perry Hwy
Tin Man Sweets Bake Shoppe
1.05 miles away
205 Main St
Baldinger's Market
1.52 miles away
519 Perry Way
Domino's
0.21 mile away
115 Perry Highway Route 19 N
The Ridge Pub & Restaurant
0.21 mile away
135 McNulty LN Strawberry Ridg
Harmony Inn
0.24 mile away
230 Mercer St
Neff Haus Ice Cream
0.31 mile away
550 Main St
The Shubrewery
0.37 mile away
733 Spring St
Wunderbar Coffee House
0.20 mile away
253 Mercer St
Spring & Main Cafe
0.88 mile away
109 N Main St
Dunkin'
1.05 miles away
301 U.S. 19
Coffee Brake
4.21 miles away
111 E Main St
Dunkin'
7.77 miles away
20411 Route 19
Moon Phases & Co Boutique
0.24 mile away
528 Main St
Harry's Joint
0.60 mile away
100 Perry Hwy
Whitey's General Store & Clothing
0.95 mile away
137 S Main St
Boutique 16063
0.96 mile away
200 S Main St
One Enchanted Evening
2.01 miles away
22406 Perry Hwy
Fisher's Bar
0.94 mile away
131 S Main St
Three B's Lounge
1.10 miles away
309 S Main St
Bakers Backstreet Tavern
4.31 miles away
113 Jefferson St
T J's Hideaway
5.93 miles away
346 Spithaler School Rd
North Park Lounge Cranberry
6.40 miles away
20810 Route 19
Please note this information may vary. If you come across anything inaccurate, please contact us.
Builder details
D.R. Horton
In 1978, D.R. Horton broke ground on our first home in Fort Worth, Texas. Since that day, the company has defined its success not by bricks and mortar, but by the satisfaction of the families that make our houses their homes. Our foundation is a single, guiding principle: a value-first dedication to the individual needs of each and every one of our nation’s homebuyers.
From first-time homebuyers to empty nesters, our family of brands provides a home for every stage in life. Our highly-trained, market experts are where you want to live, from New Jersey to Hawaii, providing unique, personalized services tailored to your individual needs. But the real value comes from the quality construction we put into every home, and the peace of mind that comes with a premium-backed warranty from America’s Number One Homebuilder.
We’ve come a long way, and while more people choose our family of brands over any other builder in the country, we never forget the most important thing of all – the families that choose us for their place to call home.
So continue to live out those dreams, America, and know we’ll be here for you every step of the way.
More new homes in Harmony, Pennsylvania
Regent - Finished Basement Plan by D.R. Horton
saved to favorites!
To see all the homes you’ve saved, visit the My Favorites section of your account.
Discover More Great Communities
Select additional listings for more information
Way to Go!
An agent will be in contact soon!
