175 Sweetwater Drive (Regent - Finished Basement)
Under Construction
Moon Township, PA 15108
Home by D.R. Horton
Last updated 2 days ago
The Price Range displayed reflects the base price of the homes built in this community.
You get to select from the many different types of homes built by this Builder and personalize your New Home with options and upgrades.
3 BR
2.5 BA
2 GR
2,208 SQ FT
Claim this listing to update information, get access to exclusive tools and more!

Floor Plan 1/1
Overview
1 Half Bathroom
2 Bathrooms
2 Car Garage
2208 Sq Ft
3 Bedrooms
3 Stories
Multi Family
175 Sweetwater Drive (Regent - Finished Basement) Home Info
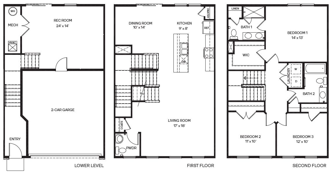
Experience the perfect blend of space, style, and low-maintenance living in The Regent by D.R. Horton at Rolling Hills. This impressive 3-story townhome offers 2,208 sq. ft. with 3 bedrooms, 2.5 baths, and a 2-car garage. The open-concept main level features a modern eat-in kitchen with a 9-foot island, complete with a sleek quartz countertop, deep, single bowl sink, and functional pantry, that flows seamlessly into a bright dining and living area-ideal for everyday living or entertaining. Luxury Vinyl Plank is included throughout the main level. Upstairs, enjoy three spacious bedrooms, a full hall bath, convenient laundry,and a generous owner's suite with a walk-in closet and dual vanity. The finished rec room on the lower level adds flexible space for relaxing, working, or hosting guests. With the comfort of a single-family layout and the ease of townhome living, make The Regent at Rolling Hills your home today. Dec/Jan Estimated Completion.
Floor plan center
View floor plan details for this property.
- Floor Plans
- Exterior Images
- Interior Images
- Other Media
Neighborhood
Community location & sales center
190 Sweetwater Drive
Moon Township, PA 15108
190 Sweetwater Drive
Moon Township, PA 15108
888-790-3488
Schools near Rolling Hills
- Moon Area School District
- Bon Meade Elementary School
- Moon Area Lower Middle School
- Moon Senior High School
Actual schools may vary. Contact the builder for more information.
Amenities
Home details
Now building
This home is currently under construction at 175 Sweetwater Drive and will soon be available for move-in at Rolling Hills. Contact D.R. Horton today to lock in your options!
Nearby schools
Moon Area School District
Elementary school. Grades KG to 4.
- Public school
- Teacher - student ratio: 1:15
- Students enrolled: 594
1595 Brodhead Rd, Moon Township, PA, 15108
724-457-7471
Elementary-Middle school. Grades 5 to 6.
- Public school
- Teacher - student ratio: 1:13
- Students enrolled: 623
904 Beaver Grade Rd, Moon Township, PA, 15108
412-264-9440
High school. Grades 9 to 12.
- Public school
- Teacher - student ratio: 1:13
- Students enrolled: 1218
8353 University Blvd, Moon Township, PA, 15108
412-264-9440
Actual schools may vary. We recommend verifying with the local school district, the school assignment and enrollment process.
Neighborhood amenities
Kuhn's Market
2.24 miles away
2284 Brodhead Rd
Giant Eagle
2.53 miles away
5 Quaker Village Shopping Ctr
Giant Eagle
2.83 miles away
5990 University Blvd
Walmart Supercenter
3.03 miles away
7500 University Blvd
ALDI
3.15 miles away
2830 Gracy Center Way
Carries Confections
0.73 mile away
5270 Webb St
Stangl's Bakery
2.52 miles away
572 Merchant St
Vital Health Chiropractic
2.58 miles away
993 Brodhead Rd
Dewalt's Health Food Centre
2.64 miles away
813 Merchant St
The Humble Cookie Shop
2.66 miles away
1944 Maratta Rd
Patrick's Pub & Grille
0.75 mile away
1207 Spring Run Rd Ext
China City
1.11 miles away
2049 Brodhead Rd
Scoochs Pizza
1.11 miles away
2049 Brodhead Rd
Subway
1.11 miles away
2049 Brodhead Rd
McDonald's
1.11 miles away
3003 Heights Rd
Old Crow Coffeehouse
3.07 miles away
1398 Merchant St
Dunkin'
3.08 miles away
830 Beaver Grade Rd
Starbucks
3.18 miles away
100 Hazel Ln
Adesso Cafe
3.71 miles away
441 1/2 Walnut St
Dunkin'
3.77 miles away
2658 Brodhead Rd
BSN Sports
2.53 miles away
600 Merchant St
Walmart Supercenter
3.03 miles away
7500 University Blvd
Bei Doni Boutique LLC
3.24 miles away
868 Beaver Grade Rd
Perfect the Unique Boutique
3.71 miles away
451 Beaver St
Soho of Sewickley
3.74 miles away
346 Beaver St
Patrick's Pub & Grille
0.75 mile away
1207 Spring Run Rd Ext
Trenney's Grille
1.17 miles away
1303 Gringo Rd
Walker's Bar & Grill
1.33 miles away
176 McGovern Blvd
Harold's Inn
1.44 miles away
2134 Brodhead Rd
The Hangar
1.95 miles away
500 Flaugherty Run Rd
Please note this information may vary. If you come across anything inaccurate, please contact us.
Builder details
D.R. Horton
In 1978, D.R. Horton broke ground on our first home in Fort Worth, Texas. Since that day, the company has defined its success not by bricks and mortar, but by the satisfaction of the families that make our houses their homes. Our foundation is a single, guiding principle: a value-first dedication to the individual needs of each and every one of our nation’s homebuyers.
From first-time homebuyers to empty nesters, our family of brands provides a home for every stage in life. Our highly-trained, market experts are where you want to live, from New Jersey to Hawaii, providing unique, personalized services tailored to your individual needs. But the real value comes from the quality construction we put into every home, and the peace of mind that comes with a premium-backed warranty from America’s Number One Homebuilder.
We’ve come a long way, and while more people choose our family of brands over any other builder in the country, we never forget the most important thing of all – the families that choose us for their place to call home.
So continue to live out those dreams, America, and know we’ll be here for you every step of the way.
More new homes in Moon Township, Pennsylvania
175 Sweetwater Drive (Regent - Finished Basement) by D.R. Horton
saved to favorites!
To see all the homes you’ve saved, visit the My Favorites section of your account.
Discover More Great Communities
Select additional listings for more information
Way to Go!
An agent will be in contact soon!
