702 Olivia Street (REGENT)
Under Construction
Pittsburgh, PA 15205
Home by D.R. Horton
at Legacy
Last updated 2 days ago
The Price Range displayed reflects the base price of the homes built in this community.
You get to select from the many different types of homes built by this Builder and personalize your New Home with options and upgrades.
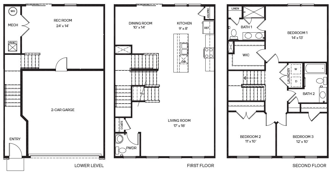
3 BR
2.5 BA
2 GR
2,208 SQ FT
Claim this listing to update information, get access to exclusive tools and more!

Floor Plan 1/1
Overview
1 Half Bathroom
2 Bathrooms
2 Car Garage
2208 Sq Ft
3 Bedrooms
3 Stories
Multi Family
702 Olivia Street (REGENT) Home Info
New Building Released! Luxury new construction inground townhome located in the Legacy community in Collier Twp. The Regent floorplan townhome features upgraded cabinets, quartz countertops, 9ft kitchen island, LVP flooring, stainless steel gas appliance package, spacious finished basement and so much more! Beautiful sidewalk community with many amenities. The HOA includes: lawncare, pool, clubhouse, fitness center and more. Minutes from major highways 376-79-22, Pittsburgh International Airport, Settlers Ridge County Park, shopping and entertainment in the Robinson Area. About 10-15 minutes into downtown Pittsburgh. Completion date: December/January.
Floor plan center
View floor plan details for this property.
- Floor Plans
- Exterior Images
- Interior Images
- Other Media
Neighborhood
Community location & sales center
776 Olivia Street
Pittsburgh, PA 15205
776 Olivia Street
Pittsburgh, PA 15205
888-790-3488
Schools near Legacy
- Chartiers Valley School District
- Chartiers Valley Primary School
- Chartiers Valley Intermediate School
- Chartiers Valley Middle School
- Chartiers Valley High School
Actual schools may vary. Contact the builder for more information.
Amenities
Home details
Now building
This home is currently under construction at 702 Olivia Street and will soon be available for move-in at Legacy. Contact D.R. Horton today to lock in your options!
Nearby schools
Chartiers Valley School District
Elementary school. Grades KG to 2.
- Public school
- Teacher - student ratio: 1:15
- Students enrolled: 879
125 Thoms Run Rd, Bridgeville, PA, 15017
412-429-3270
Elementary school. Grades 3 to 5.
- Public school
- Teacher - student ratio: 1:15
- Students enrolled: 797
2030 Swallow Hill Rd, Pittsburgh, PA, 15220
412-429-2233
Middle school. Grades 6 to 8.
- Public school
- Teacher - student ratio: 1:12
- Students enrolled: 718
50 Thoms Run Rd, Bridgeville, PA, 15017
412-429-2241
High school. Grades 9 to 12.
- Public school
- Teacher - student ratio: 1:15
- Students enrolled: 1018
50 Thoms Run Rd, Bridgeville, PA, 15017
412-429-2241
Actual schools may vary. We recommend verifying with the local school district, the school assignment and enrollment process.
Neighborhood amenities
Market District
1.04 miles away
100 Settlers Ridge Center Dr
Market District Pharmacy
1.04 miles away
100 Settlers Ridge Center Dr
Indospice Inc
2.05 miles away
1510 Park Manor Blvd
Walmart Supercenter
2.28 miles away
250 Summit Park Dr
Gordon Food Service Store
2.37 miles away
1 Urbano Way
GNC
0.89 mile away
285 Settlers Ridge Center Dr
The Vitamin Shoppe
0.94 mile away
210 Settlers Ridge Center Dr
Le Macaron French Pastries
1.95 miles away
100 Robinson Center Dr
Walmart Bakery
2.28 miles away
250 Summit Park Dr
Nothing Bundt Cakes
2.30 miles away
208 McHolme Dr
Eat'n Park
0.32 mile away
410 Vista Park Dr
Anthony's Coal Fired Pizza
0.68 mile away
1810 Settlers Ridge Center Dr
Thai Foon
0.75 mile away
1950 Settlers Ridge Center Dr
Red Robin Gourmet Burgers and Brews
0.81 mile away
1230 Settlers Ridge Center Dr
Walnut Grill Robinson
0.81 mile away
1200 Settlers Ridge Center Dr
Orange Julius
0.91 mile away
268 Settlers Ridge Center Dr
Starbucks
1.04 miles away
100 Settlers Ridge Center Dr
Orange Julius
1.95 miles away
100 Robinson Center Dr
Starbucks
1.95 miles away
100 Robinson Center Dr
Starbucks
2.06 miles away
1050 Park Manor Blvd
Skechers Warehouse Outlet
0.74 mile away
2200 Settlers Ridge Center Dr
Lane Bryant
0.88 mile away
1330 Settlers Ridge Center Dr
Ross Dress For Less
0.88 mile away
500 Settlers Ridge Center Dr
Sassy Sensantions
1.04 miles away
6080 Steubenville Pike
DXL Big + Tall
1.37 miles away
5205 Campbells Run Rd
Anthony's Coal Fired Pizza
0.68 mile away
1810 Settlers Ridge Center Dr
Cadillac Ranch
0.84 mile away
1060 Settlers Ridge Center Dr
Bronze Hood Lounge
1.34 miles away
5920 Steubenville Pike
Ditka's
1.80 miles away
1 Robinson Plz
Smokey Bones Bar & Fire Grill
1.81 miles away
6050 Robinson Center Dr
Please note this information may vary. If you come across anything inaccurate, please contact us.
Builder details
D.R. Horton
In 1978, D.R. Horton broke ground on our first home in Fort Worth, Texas. Since that day, the company has defined its success not by bricks and mortar, but by the satisfaction of the families that make our houses their homes. Our foundation is a single, guiding principle: a value-first dedication to the individual needs of each and every one of our nation’s homebuyers.
From first-time homebuyers to empty nesters, our family of brands provides a home for every stage in life. Our highly-trained, market experts are where you want to live, from New Jersey to Hawaii, providing unique, personalized services tailored to your individual needs. But the real value comes from the quality construction we put into every home, and the peace of mind that comes with a premium-backed warranty from America’s Number One Homebuilder.
We’ve come a long way, and while more people choose our family of brands over any other builder in the country, we never forget the most important thing of all – the families that choose us for their place to call home.
So continue to live out those dreams, America, and know we’ll be here for you every step of the way.
More new homes in Pittsburgh, Pennsylvania
702 Olivia Street (REGENT) by D.R. Horton
saved to favorites!
To see all the homes you’ve saved, visit the My Favorites section of your account.
Discover More Great Communities
Select additional listings for more information
Way to Go!
An agent will be in contact soon!
