224 Dama Del Mar Way (Rhett)
Under Construction
Panama City Beach, FL 32407
Home by D.R. Horton
Last updated 2 days ago
The Price Range displayed reflects the base price of the homes built in this community.
You get to select from the many different types of homes built by this Builder and personalize your New Home with options and upgrades.
4 BR
2 BA
2 GR
1,799 SQ FT
Claim this listing to update information, get access to exclusive tools and more!

Floor Plan 1/1
Overview
1 Story
1799 Sq Ft
2 Bathrooms
2 Car Garage
4 Bedrooms
Single Family
224 Dama Del Mar Way (Rhett) Home Info
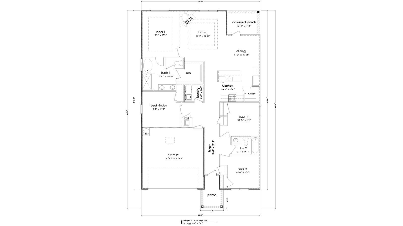
Welcome to 224 Dama Del Mar Way, a new home at Caballeros Estates at Hombre in Panama City Beach, Florida. This single-family floor plan is under construction and has four bedrooms, two full bathrooms and a single car garage. As you enter this home you will find a bright entry with EVP flooring throughout the home. The foyer leads to the spacious living area that is designed for comfortable living. In the open concept living area you will find the kitchen with a center island that has space for seating. The kitchen has quartz countertops and white cabinetry for all your storage needs. A corner pantry allows space for your dry goods and small appliance storage. An appliance package is included with a stove, microwave and dishwasher. The primary bedroom is located off the living area it features EVP flooring, trey ceilings with a ceiling fan and an ensuite bathroom. The primary bath has a dual sink vanity with quartz countertops and lower storage drawers and cabinetry. There is a separate shower and soak tub as well as a large closet for your wardrobe needs. Each guest bedroom has EVP flooring and ample closet space. A shared bathroom has a vanity with quartz countertop and lower cabinetry for storage. Outside this home you will find a landscaped entry, 30-year dimensional shingles, and Hardie® exterior. For more information on this home, contact a D.R. Horton Sales Representative.
Floor plan center
View floor plan details for this property.
- Floor Plans
- Exterior Images
- Interior Images
- Other Media
Neighborhood
Community location & sales center
101 Dama Del Mar Way
Panama City Beach, FL 32407
101 Dama Del Mar Way
Panama City Beach, FL 32407
888-790-3488
Schools near Caballeros Estates At Hombre
- Bay District Schools
- Hutchison Beach Elementary School
- Surfside Middle School
Actual schools may vary. Contact the builder for more information.
Amenities
Home details
Now building
This home is currently under construction at 224 Dama Del Mar Way and will soon be available for move-in at Caballeros Estates At Hombre. Contact D.R. Horton today to lock in your options!
Nearby schools
Bay District Schools
Elementary school. Grades PK to 5.
- Public school
- Teacher - student ratio: 1:15
- Students enrolled: 621
12900 Hutchison Blvd, P C Beach, FL, 32407
850-767-5195
Middle school. Grades 6 to 8.
- Public school
- Teacher - student ratio: 1:19
- Students enrolled: 843
300 Nautilus St, P C Beach, FL, 32413
850-767-5180
Actual schools may vary. We recommend verifying with the local school district, the school assignment and enrollment process.
Neighborhood amenities
Walmart Supercenter
0.60 mile away
10270 Front Beach Rd
Publix
0.69 mile away
11240 Panama City Beach Pkwy
Brazilian Grocery Store LLC
1.50 miles away
8317 Front Beach Rd
European Food Mart LLC
1.61 miles away
8730 Thomas Dr
J Shannelle Caribbean Food Cafe Market
1.77 miles away
7950C Front Beach Rd
A Cup of Bread LLC
0.38 mile away
5 Miracle Strip Loop
Walmart Bakery
0.60 mile away
10270 Front Beach Rd
GNC
0.69 mile away
11160 Panama City Beach Pkwy
Jaes Sinful Delights
0.86 mile away
539 N Richard Jackson Blvd
Flowers Baking Co
2.44 miles away
501 Enterprise Dr
China Coast
0.47 mile away
10100 Hutchison Blvd
Shane's Rib Shack
0.47 mile away
10100 Hutchison Blvd
The Wicked Wheel
0.48 mile away
10025 Hutchison Blvd
Burger Guyz of Florida Inc
0.48 mile away
10031 Hutchison Blvd
Gulf Coast Burger
0.48 mile away
10031 Hutchison Blvd
Dunkin'
0.62 mile away
11150 Panama City Beach Pkwy
Tropical Smoothie Cafe
0.74 mile away
11260 Panama City Beach Pkwy
Starbucks
0.75 mile away
98 Richard Jackson Blvd
Lotus Cafe Juice Bar
1.02 miles away
707 Richard Jackson Blvd
Boost Juice Bar Cafe LLC
1.50 miles away
12202 Hutchison Blvd
Big Airbrush
0.60 mile away
10270 Front Beach Rd
Walmart Supercenter
0.60 mile away
10270 Front Beach Rd
Surf Style Inc
0.75 mile away
10400 Front Beach Rd
Fantasy Fun Wear of Panama City Beach, Inc
0.78 mile away
10015 Front Beach Rd
Applebee's Grill + Bar
0.50 mile away
10071 Hutchison Blvd
Coyote Ugly Saloon
0.77 mile away
10512 Front Beach Rd
Rock'it Lanes
0.86 mile away
513 N Richard Jackson Blvd
Firefly
0.86 mile away
535 N Richard Jackson Blvd
Please note this information may vary. If you come across anything inaccurate, please contact us.
Builder details
D.R. Horton
In 1978, D.R. Horton broke ground on our first home in Fort Worth, Texas. Since that day, the company has defined its success not by bricks and mortar, but by the satisfaction of the families that make our houses their homes. Our foundation is a single, guiding principle: a value-first dedication to the individual needs of each and every one of our nation’s homebuyers.
From first-time homebuyers to empty nesters, our family of brands provides a home for every stage in life. Our highly-trained, market experts are where you want to live, from New Jersey to Hawaii, providing unique, personalized services tailored to your individual needs. But the real value comes from the quality construction we put into every home, and the peace of mind that comes with a premium-backed warranty from America’s Number One Homebuilder.
We’ve come a long way, and while more people choose our family of brands over any other builder in the country, we never forget the most important thing of all – the families that choose us for their place to call home.
So continue to live out those dreams, America, and know we’ll be here for you every step of the way.
More new homes in Panama City Beach, Florida
224 Dama Del Mar Way (Rhett) by D.R. Horton
saved to favorites!
To see all the homes you’ve saved, visit the My Favorites section of your account.
Discover More Great Communities
Select additional listings for more information
Way to Go!
An agent will be in contact soon!
