Riverwalk Home Community Plan
Ready to build
Brewerton NY 13029
Home by Cornerstone Homes CNY
at Riverwalk
The Price Range displayed reflects the base price of the homes built in this community.
You get to select from the many different types of homes built by this Builder and personalize your New Home with options and upgrades.
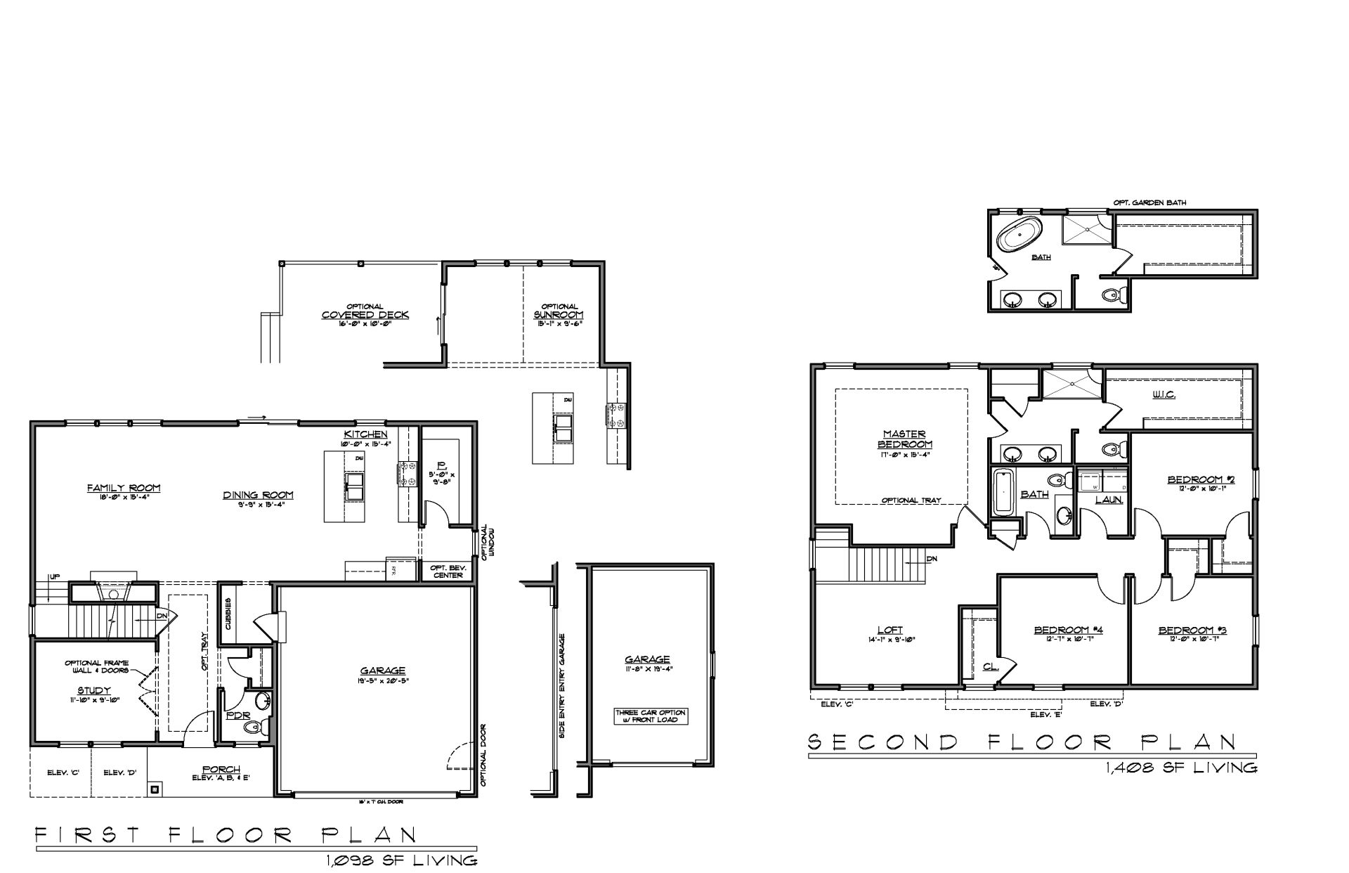
4 BR
2.5 BA
2 GR
2,496 SQ FT
Claim this listing to update information, get access to exclusive tools and more!

Exterior 1/3
Overview
1 Half Bathroom
2 Bathrooms
2 Car Garage
2496 Sq Ft
4 Bedrooms
Single Family
Riverwalk Home Community Plan Info
The ashton is quickly becoming our most popular floor plan! over 2500 sq. Ft. Of living space with a massive kitchen large island huge walk-in pantry beautiful great room with oversized windows and a cozy gas fireplace first floor study 4 bedrooms and a 2nd floor loft 2nd floor laundry 2 full bathrooms upstairs & so much more!.
Neighborhood
Community location & sales center
Brewerton, NY 13029
Brewerton, NY 13029
888-790-3488
Schools near Riverwalk
- Central Square Central School District
Actual schools may vary. Contact the builder for more information.
Amenities
The Hamilton floor plan has plenty of room for a growing family. The first floor is open and has a ceiling height of 9', making it versatile and perfect for formal dining, living or study. Kitchen features an eat-in dining area with optional custom made island that is great for cooking or entertaining guests. Sun-filled morning room opens to an expansive great room with windows airing out onto the backyard deck/patio area perfect for enjoying the outdoors in summertime. Upstairs offers 4 bedrooms each with spacious closets and private baths, including one luxurious owners’ suite complete with a spa tub, shower stall and large walk-in closet.
The Preston floor plan has plenty of space to live and have a family. The gourmet kitchen with an island is perfect for cooking meals or hosting guests. The great room flows into the formal dining area which makes it easy to entertain friends or family. You can find everything you need in the laundry room and mudroom, including cubbies that are customized just for your needs. There are four bedrooms on this level, one with a walk-in closet and another that could be turned into a fifth bedroom if desired.
Cornerstone Homes has been building quality homes in Central New York for over four decades. They develop floor plans specifically tailored to meet the needs of their residents, and work with a variety of lenders to find the best options for each homebuyer. Their locally designed homes offer exceptional value, and they are proud to be your builder of choice in the area. More info about Riverwalk
Home details
Ready to build
Build the home of your dreams with the Riverwalk Home Community plan by selecting your favorite options. For the best selection, pick your lot in Riverwalk today!
Community & neighborhood
Local points of interest
- Lake
Neighborhood amenities
Nice N Easy Grocery Shoppe
1.80 miles away
5565 Bartel Rd
BJ's Wholesale Club
4.06 miles away
4145 State Route 31
Wegmans
4.45 miles away
3955 State Route 31
ALDI
4.59 miles away
5962 State Route 31
ALDI
4.63 miles away
3942 State Route 31
Tasswood Bakery
2.78 miles away
702 County Route 10
Wegmans Bakery
4.45 miles away
3955 State Route 31
Walmart Bakery
4.64 miles away
8770 Dell Center Dr
Walmart Bakery
4.66 miles away
3018 East Ave
sweetFrog
5.00 miles away
8063 Brewerton Rd
Dunkin'
1.41 miles away
9555 Brewerton Rd
Woodcreek Outfitters
1.42 miles away
9461 Brewerton Rd
McDonald's
1.46 miles away
9563 Brewerton Rd
Top This Pizza
1.50 miles away
9664 Route 11
Cafe Bella Luna
1.53 miles away
9633 Brewerton Rd
Dunkin'
1.41 miles away
9555 Brewerton Rd
Ink Corner Cafe
3.91 miles away
5590 State Route 31
Dunkin'
3.92 miles away
4206 State Route 31
Dunkin'
4.08 miles away
3041 E Ave/ Route 49
Dunkin'
4.32 miles away
5865 State Route 31
Janes to Jeans
2.95 miles away
113 Center Rd
Glow Fashion LLC
3.64 miles away
8494 Melo Cir
BJ's Wholesale Club
4.06 miles away
4145 State Route 31
Shoe Dept
4.11 miles away
4155 State Route 31
Fleet Feet
4.19 miles away
4136 State Route 31
Dailey's Pour House
1.63 miles away
9686 Brewerton Rd
The Waterfront Tavern
1.73 miles away
6 US Route 11
Barado's on the Water
2.44 miles away
57 Bradbury Rd
Monirae's Restaurant
3.60 miles away
688 County Route 10
Dox Grill at Pirates Cove
4.07 miles away
9170 Horseshoe Island Rd
Please note this information may vary. If you come across anything inaccurate, please contact us.
Builder details
Cornerstone Homes CNY
More new homes in Brewerton, New York
Riverwalk Home Community Plan by Cornerstone Homes CNY
saved to favorites!
To see all the homes you’ve saved, visit the My Favorites section of your account.
Discover More Great Communities
Select additional listings for more information
Way to Go!
An agent will be in contact soon!