Rutherford Plan
Ready to build
3585 Engineering Dr, Peachtree Corners GA 30092
Home by D.R. Horton
Last updated 1 day ago
The Price Range displayed reflects the base price of the homes built in this community.
You get to select from the many different types of homes built by this Builder and personalize your New Home with options and upgrades.
4 BR
3.5 BA
2 GR
2,314 SQ FT
Claim this listing to update information, get access to exclusive tools and more!

Floorplan 1 1/1
Overview
1 Half Bathroom
2 Car Garage
2314 Sq Ft
3 Bathrooms
3 Stories
4 Bedrooms
Townhome
Rutherford Plan Info
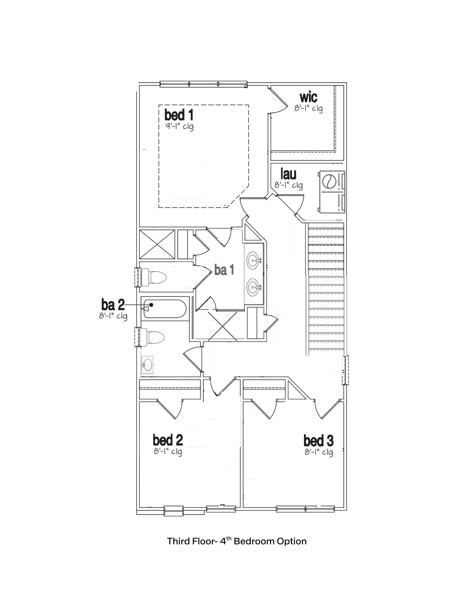
We are excited to announce our newest floor plan The Rutherford! This stunning three-story townhome features 3-4 bedrooms, 3.5 baths, and a two-car garage. On the main level, homeowners will find a beautifully appointed bedroom with a full bath, perfect for guests or multigenerational living. The second level offers an open-concept design with a spacious kitchen, large island, and designer finishes, overlooking the family room - ideal for everyday living and entertaining. On the third floor, enjoy a private primary suite with spacious walk-in closet, a secondary bedroom with a full bath, and a versatile flex area perfect for a home office, loft, or cozy retreat. The Rutherford offers a thoughtful design, modern living, and space exactly where you need it. Call us today to learn more.
Floor plan center
View floor plan details for this property.
- Floor Plans
- Exterior Images
- Interior Images
- Other Media
Neighborhood
Community location & sales center
3585 Engineering Dr
Peachtree Corners, GA 30092
3585 Engineering Dr
Peachtree Corners, GA 30092
888-355-8096
Schools near Overlook at Peachtree Corners
- Gwinnett County Schools
Actual schools may vary. Contact the builder for more information.
Amenities
Home details
Ready to build
Build the home of your dreams with the Rutherford plan by selecting your favorite options. For the best selection, pick your lot in Overlook at Peachtree Corners today!
Builder details
D.R. Horton
In 1978, D.R. Horton broke ground on our first home in Fort Worth, Texas. Since that day, the company has defined its success not by bricks and mortar, but by the satisfaction of the families that make our houses their homes. Our foundation is a single, guiding principle: a value-first dedication to the individual needs of each and every one of our nation’s homebuyers.
From first-time homebuyers to empty nesters, our family of brands provides a home for every stage in life. Our highly-trained, market experts are where you want to live, from New Jersey to Hawaii, providing unique, personalized services tailored to your individual needs. But the real value comes from the quality construction we put into every home, and the peace of mind that comes with a premium-backed warranty from America’s Number One Homebuilder.
We’ve come a long way, and while more people choose our family of brands over any other builder in the country, we never forget the most important thing of all – the families that choose us for their place to call home.
So continue to live out those dreams, America, and know we’ll be here for you every step of the way.
More new homes in Peachtree Corners, Georgia
Rutherford Plan by D.R. Horton
saved to favorites!
To see all the homes you’ve saved, visit the My Favorites section of your account.
Discover More Great Communities
Select additional listings for more information
Way to Go!
An agent will be in contact soon!
