14824 DAYTON CIRCLE (RYDER)
Under Construction
Foley, AL 36535
Home by D.R. Horton
Last updated 23 hours ago
The Price Range displayed reflects the base price of the homes built in this community.
You get to select from the many different types of homes built by this Builder and personalize your New Home with options and upgrades.
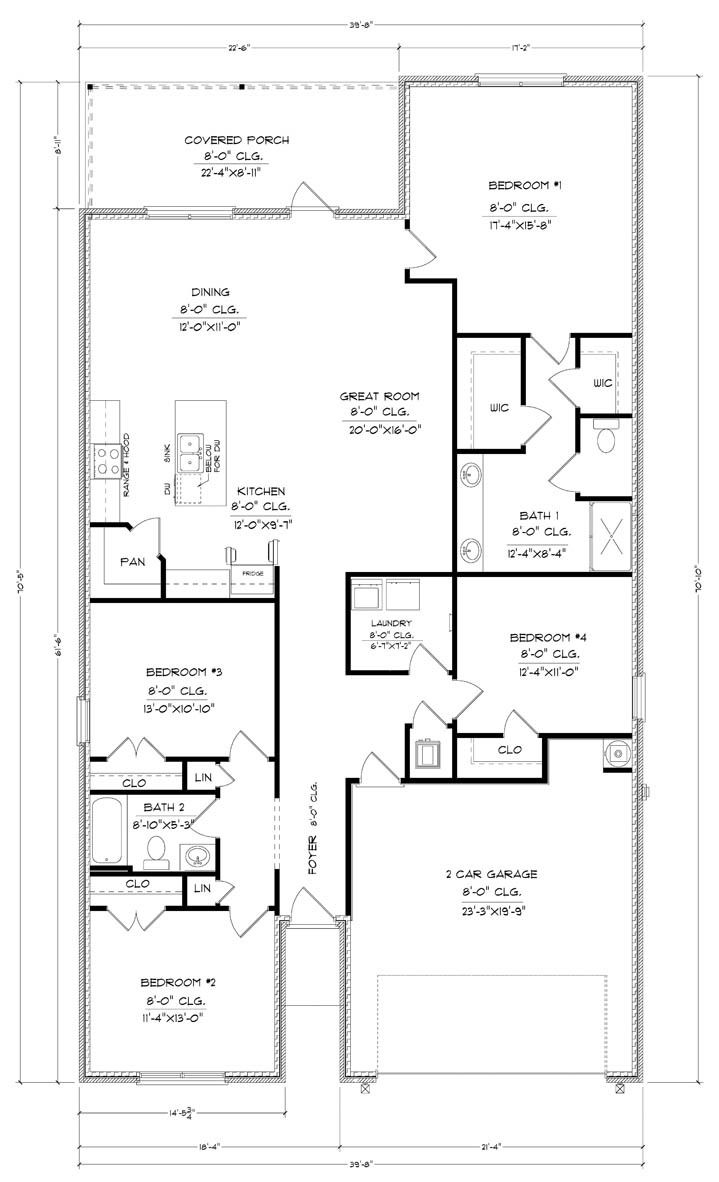
4 BR
2 BA
2 GR
2,031 SQ FT
Claim this listing to update information, get access to exclusive tools and more!

Floor Plan 1/1
Overview
1 Story
2 Bathrooms
2 Car Garage
2031 Sq Ft
4 Bedrooms
Single Family
14824 DAYTON CIRCLE (RYDER) Home Info
Welcome to 14824 Dayton Circle, a beautiful new home in our lovely community of Hadley Village. This home offers a blend of convenience and natural beauty. Situated on a larger lot in the heart of the community, it provides easy access to main roads, making commuting a breeze. The property backs up to a beautiful common space area, offering serene views and a peaceful environment perfect for relaxation or recreational activities. Additionally, its proximity to the mail kiosk ensures that picking up your mail is quick and easy, adding a touch of convenience to your daily routine. The Ryder boasts 4 generously sized bedrooms, 2 well-appointed bathrooms, a spacious 2-car garage, and a total of 2,031 square feet of living space, seamlessly blending modern aesthetics with practical functionality. Upon entering the Ryder, you are welcomed by an open-concept layout that is perfect for families and those who enjoy entertaining. The expansive kitchen serves as the centerpiece of the home, featuring sleek slab granite countertops, sophisticated shaker-style cabinetry, and top-of-the-line stainless steel appliances. This stunning kitchen effortlessly transitions into the bright and airy family room, where abundant natural light creates a warm and inviting atmosphere, ideal for both casual living and hosting guests. A standout feature of the Ryder is its split bedroom design, which ensures enhanced privacy and comfort for all residents. The spacious owner's suite provides a tranq
Floor plan center
View floor plan details for this property.
- Floor Plans
- Exterior Images
- Interior Images
- Other Media
Neighborhood
Community location & sales center
14984 Dayton Circle
Foley, AL 36535
14984 Dayton Circle
Foley, AL 36535
888-790-3488
Schools near Hadley Village
- Baldwin County Public Schools
Actual schools may vary. Contact the builder for more information.
Amenities
Home details
Now building
This home is currently under construction at 14824 DAYTON CIRCLE and will soon be available for move-in at Hadley Village. Contact D.R. Horton today to lock in your options!
Neighborhood amenities
Foley Fish Co Inc
2.74 miles away
321 S McKenzie St
Winn-Dixie
3.43 miles away
1235 S McKenzie St
Piggly Wiggly
3.45 miles away
1200 S McKenzie St
La Michoacana
3.69 miles away
1508 S McKenzie St
Walmart Supercenter
4.15 miles away
2200 S McKenzie St
Sweet Fantasy
2.43 miles away
14809 AL-59
Path to Wellness
2.52 miles away
240 W Laurel Ave
Smallcakes Cupcakery
4.12 miles away
2163 S McKenzie St
Walmart Bakery
4.15 miles away
2200 S McKenzie St
Hot Pies Inc
4.32 miles away
2303 S McKenzie St
Summit Grill
1.46 miles away
1301 N McKenzie St
Subway
1.62 miles away
1159 N McKenzie St
Chick & Sea Restaurant & Catering
1.65 miles away
1127 N McKenzie St
Pelican's SnoBalls
1.82 miles away
1001 N McKenzie St
Local & Company Food & Drink
1.97 miles away
812 N McKenzie St
Foley Coffee Shop
2.41 miles away
213 N McKenzie St
7 Brew Coffee
2.43 miles away
3231 S McKenzie St
Drowsy Poet at the Foley Station
2.66 miles away
218 S McKenzie St
Linkin Good Donuts
3.48 miles away
201 E Michigan Ave
The Hottest Fashions
1.71 miles away
1103 N McKenzie St
Anthony's Bridal & Tuxedo Shop
1.73 miles away
1021 N McKenzie St
Roses & Lace Weddings
2.61 miles away
107 W Orange Ave
Family Dollar
3.16 miles away
761 S McKenzie St
Bealls
3.39 miles away
1104 S McKenzie St
Local & Company Food & Drink
1.97 miles away
812 N McKenzie St
Scuttlebutt Pub
2.32 miles away
319A N McKenzie St
Doc Hollidays
2.43 miles away
203 N Cypress St
Bier Shack Taproom
2.43 miles away
8191 AL-59
Please note this information may vary. If you come across anything inaccurate, please contact us.
Builder details
D.R. Horton
In 1978, D.R. Horton broke ground on our first home in Fort Worth, Texas. Since that day, the company has defined its success not by bricks and mortar, but by the satisfaction of the families that make our houses their homes. Our foundation is a single, guiding principle: a value-first dedication to the individual needs of each and every one of our nation’s homebuyers.
From first-time homebuyers to empty nesters, our family of brands provides a home for every stage in life. Our highly-trained, market experts are where you want to live, from New Jersey to Hawaii, providing unique, personalized services tailored to your individual needs. But the real value comes from the quality construction we put into every home, and the peace of mind that comes with a premium-backed warranty from America’s Number One Homebuilder.
We’ve come a long way, and while more people choose our family of brands over any other builder in the country, we never forget the most important thing of all – the families that choose us for their place to call home.
So continue to live out those dreams, America, and know we’ll be here for you every step of the way.
More new homes in Foley, Alabama
14824 DAYTON CIRCLE (RYDER) by D.R. Horton
saved to favorites!
To see all the homes you’ve saved, visit the My Favorites section of your account.
Discover More Great Communities
Select additional listings for more information
Way to Go!
An agent will be in contact soon!
