Saguaro Plan
Ready to build
17690 N Piccolo Circle, Maricopa AZ 85138
Home by D.R. Horton
at Sorrento
Last updated 1 day ago
The Price Range displayed reflects the base price of the homes built in this community.
You get to select from the many different types of homes built by this Builder and personalize your New Home with options and upgrades.
4 BR
3 BA
3 GR
2,055 SQ FT
Claim this listing to update information, get access to exclusive tools and more!

Floorplan 0 1/1
Overview
1 Story
2055 Sq Ft
3 Bathrooms
3 Car Garage
4 Bedrooms
Single Family
Saguaro Plan Info
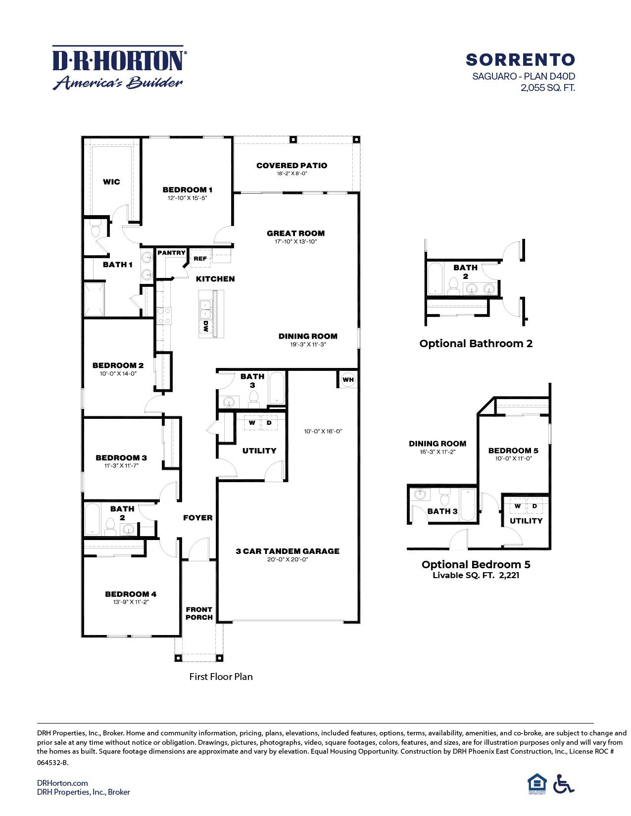
The Saguaro floor plan is a single-story home including 4 bedrooms, 3 bathrooms, and a 3-car garage. The spacious floor plan spans 2,055 sq. ft., and is ideal for any resident looking to have ample space. The foyer leads to the directly accessible kitchen, showcasing a modern design with abundant counter space, cabinetry, and state-of-the-art appliances. The living room is adjacent to the kitchen, and offers an open space for relaxation and gatherings. Its layout ensures a seamless flow from cooking to entertaining. Large sliding doors open from this space to a 12-foot-wide covered back patio. This outdoor space is perfect for entertaining or enjoying the fresh air. The primary bedroom includes a generous walk-in closet, as well as a bathroom with a dual-sink vanity. The four additional bedrooms offer flexibility as guest rooms, a private den, or a home office. Each room is designed to ensure comfort and privacy. The two additional bathrooms are located to serve both the bedrooms and common areas, and are designed with fuctionality an style in mind. Located in the lavish community of Sorrento.
Floor plan center
View floor plan details for this property.
- Floor Plans
- Exterior Images
- Interior Images
- Other Media
Neighborhood
Community location & sales center
17690 N Piccolo Circle
Maricopa, AZ 85138
17690 N Piccolo Circle
Maricopa, AZ 85138
888-355-8096
Schools near Sorrento
- Casa Grande Union High School District
- Maricopa Unified School District
Actual schools may vary. Contact the builder for more information.
Amenities
Home details
Ready to build
Build the home of your dreams with the Saguaro plan by selecting your favorite options. For the best selection, pick your lot in Sorrento today!
Neighborhood amenities
Walmart Supercenter
2.28 miles away
41650 W Maricopa Casa Grande Hwy
Fry's Food
4.44 miles away
20797 N John Wayne Pkwy
Fry's Marketplace
4.44 miles away
20797 N John Wayne Pkwy
Carniceria Sonora
4.63 miles away
19590 N Maricopa Rd
Sprouts Farmers Market
4.67 miles away
20300 N John Wayne Pkwy
Walmart Bakery
2.28 miles away
41650 W Maricopa Casa Grande Hwy
Tajs Sweet Treats
2.91 miles away
19000 N Porter Rd
Panaderia Hacienda
4.63 miles away
W Tucker Rd
Copa Craze
4.65 miles away
20928 N John Wayne Pkwy
Khanvics Alibi
1.62 miles away
36623 W Velazquez Dr
Sugar Plum Snocones LLC
1.74 miles away
36244 W Bilbao St
Dickey's Barbecue Pit
2.28 miles away
41650 W Maricopa Casa Grande Hwy
Papa Johns
2.28 miles away
41620 W Maricopa Casa Grande Hwy
Nekter Juice Bar
2.91 miles away
44360 W Edison Rd
Honeycutt Coffee Cafe
4.22 miles away
44400 W Honeycutt Rd
Dunkin'
4.39 miles away
15406 N Maricopa Rd
Starbucks
4.44 miles away
20797 N John Wayne Pkwy
Starbucks
4.54 miles away
21423 N John Wayne Pkwy
Walmart Supercenter
2.28 miles away
41650 W Maricopa Casa Grande Hwy
Aconav LLC
3.43 miles away
41912 W Colby Dr
Erwin L Hartnett L C
4.00 miles away
19989 N Jones Dr
Ross Dress For Less
4.41 miles away
20595 N John Wayne Pkwy
Marshalls
4.63 miles away
20250 N John Wayne Pkwy
Honeycutt Coffee Cafe
4.22 miles away
44400 W Honeycutt Rd
Oak & Fork
4.39 miles away
15406 N Maricopa Rd
True Grit Tavern
4.62 miles away
20800 N John Wayne Pkwy
Raceway Bar & Grill
8.09 miles away
49237 W Papago Rd
Please note this information may vary. If you come across anything inaccurate, please contact us.
Builder details
D.R. Horton
In 1978, D.R. Horton broke ground on our first home in Fort Worth, Texas. Since that day, the company has defined its success not by bricks and mortar, but by the satisfaction of the families that make our houses their homes. Our foundation is a single, guiding principle: a value-first dedication to the individual needs of each and every one of our nation’s homebuyers.
From first-time homebuyers to empty nesters, our family of brands provides a home for every stage in life. Our highly-trained, market experts are where you want to live, from New Jersey to Hawaii, providing unique, personalized services tailored to your individual needs. But the real value comes from the quality construction we put into every home, and the peace of mind that comes with a premium-backed warranty from America’s Number One Homebuilder.
We’ve come a long way, and while more people choose our family of brands over any other builder in the country, we never forget the most important thing of all – the families that choose us for their place to call home.
So continue to live out those dreams, America, and know we’ll be here for you every step of the way.
More new homes in Maricopa, Arizona
Saguaro Plan by D.R. Horton
saved to favorites!
To see all the homes you’ve saved, visit the My Favorites section of your account.
Discover More Great Communities
Select additional listings for more information
Way to Go!
An agent will be in contact soon!
