SALEM Plan
Ready to build
202 Gammon Lane, Fountain Inn SC 29644
Home by D.R. Horton
Last updated 1 day ago
The Price Range displayed reflects the base price of the homes built in this community.
You get to select from the many different types of homes built by this Builder and personalize your New Home with options and upgrades.
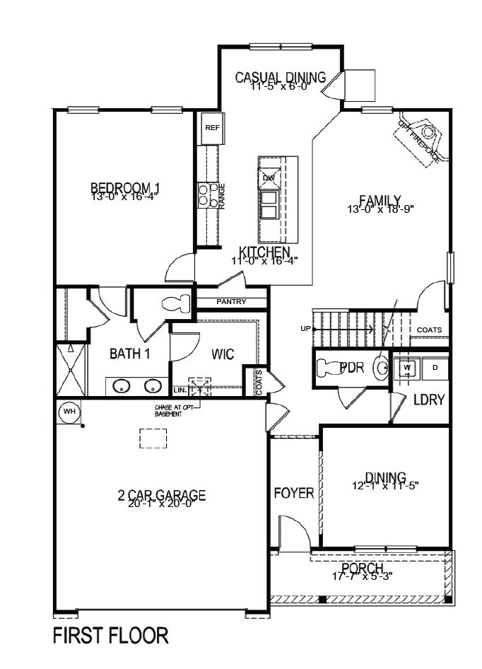
4 BR
2.5 BA
2 GR
2,618 SQ FT
Claim this listing to update information, get access to exclusive tools and more!

Floorplan 0 1/3
Overview
1 Half Bathroom
2 Stories
Single Family
SALEM Plan Info
Check out the Salem, a stunning floorplan offered at Durbin Meadows. This gorgeous two-story home features four bedrooms, two and a half bathrooms, and a two-car garage, featuring both luxury and practicality with the option of dual primary suites. As you enter, you'll be welcomed by an inviting foyer that connects to a spacious dining room before leading into the heart of the home. The open-concept design includes a large living room that seamlessly blends into the functional kitchen. The gourmet kitchen is equipped with stainless steel appliances, ample cabinet space, and a large island with a breakfast bar, perfect for both cooking and casual dining. Adjacent to the kitchen, you'll find the main primary suite, complete with a large walk-in closet and a private bathroom. Upstairs, the optional second primary suite features two walk-in closets and a private bathroom, featuring plenty of space for relaxation. A versatile loft area upstairs provides additional space, perfect for a media room or playroom, if no secondary primary suite is chosen. Three additional bedrooms and a full bathroom complete the second floor, making this home perfect for multigenerational living with its dual primary suites.
Floor plan center
View floor plan details for this property.
- Floor Plans
- Exterior Images
- Interior Images
- Other Media
Neighborhood
Community location & sales center
202 Gammon Lane
Fountain Inn, SC 29644
202 Gammon Lane
Fountain Inn, SC 29644
888-790-3488
Schools near Durbin Meadows Traditions
- Greenville 01 School District
Actual schools may vary. Contact the builder for more information.
Amenities
Home details
Ready to build
Build the home of your dreams with the SALEM plan by selecting your favorite options. For the best selection, pick your lot in Durbin Meadows Traditions today!
Builder details
D.R. Horton
In 1978, D.R. Horton broke ground on our first home in Fort Worth, Texas. Since that day, the company has defined its success not by bricks and mortar, but by the satisfaction of the families that make our houses their homes. Our foundation is a single, guiding principle: a value-first dedication to the individual needs of each and every one of our nation’s homebuyers.
From first-time homebuyers to empty nesters, our family of brands provides a home for every stage in life. Our highly-trained, market experts are where you want to live, from New Jersey to Hawaii, providing unique, personalized services tailored to your individual needs. But the real value comes from the quality construction we put into every home, and the peace of mind that comes with a premium-backed warranty from America’s Number One Homebuilder.
We’ve come a long way, and while more people choose our family of brands over any other builder in the country, we never forget the most important thing of all – the families that choose us for their place to call home.
So continue to live out those dreams, America, and know we’ll be here for you every step of the way.
More new homes in Fountain Inn, South Carolina
SALEM Plan by D.R. Horton
saved to favorites!
To see all the homes you’ve saved, visit the My Favorites section of your account.
Discover More Great Communities
Select additional listings for more information
Way to Go!
An agent will be in contact soon!
