34216 Forest Acres Dr (SEVERN)
Under Construction
Millville, DE 19967
Home by D.R. Horton
Last updated 2 days ago
The Price Range displayed reflects the base price of the homes built in this community.
You get to select from the many different types of homes built by this Builder and personalize your New Home with options and upgrades.
3 BR
2 BA
2 GR
1,500 SQ FT
Claim this listing to update information, get access to exclusive tools and more!

Floor Plan 1/1
Overview
1 Story
1500 Sq Ft
2 Bathrooms
2 Car Garage
3 Bedrooms
Multi Family
34216 Forest Acres Dr (SEVERN) Home Info
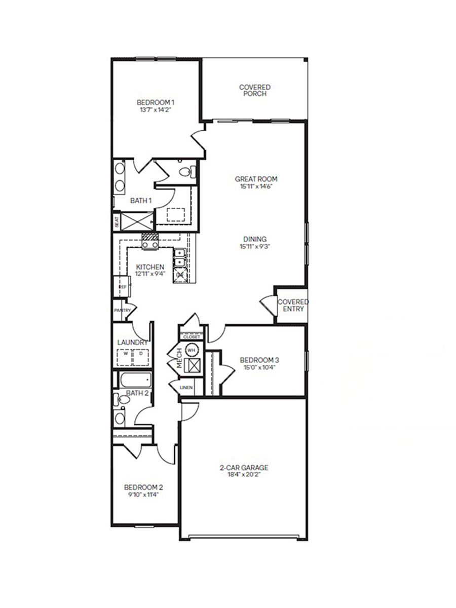
Move-in before the holidays into Belle Shoal Village at Millville by the Sea at 34216 Forest Acres Drive in Millville, DE! This one-story Severn floorplan, a 1,500 square foot twin villa new home, offers open-concept living with three sizeable bedrooms, two full bathrooms, and a two-car garage. Upon entering the home through the private, side front door, you step into the spacious living and dining area that flows nicely into the functional kitchen with well-appointed white cabinetry and granite countertops, stainless steel appliances, a peninsula kitchen island, and a sizeable pantry. Enjoy the open floorplan as it allows you to entertain guests and family in your great room and kitchen simultaneously while also providing access to the quiet covered porch at the rear of the home. A welcoming guest room near the entrance ensures convenience for visitors, while the nearby laundry room adds practicality. Continuing down the hall is another guest bedroom and a full bathroom. The private main suite, tucked in the back of the home, includes a large en suite bathroom and a grand walk-in closet. Your new home comes complete with a white blind package, a fully sodded, landscaped, and irrigated lawn, and an exclusive Smart Home® package, ensuring your peace of mind and comfort in every aspect of living. Pictures, artist renderings, photographs, colors, features, and sizes are for illustration purposes only and will vary from the homes as built. Image representative of plan o
Floor plan center
View floor plan details for this property.
- Floor Plans
- Exterior Images
- Interior Images
- Other Media
Neighborhood
Community location & sales center
31023 Coastal Living Lane
Millville, DE 19967
31023 Coastal Living Lane
Millville, DE 19967
888-790-3488
Schools near Belle Shoal at Millville by the Sea
- Indian River School District
Actual schools may vary. Contact the builder for more information.
Amenities
Home details
Now building
This home is currently under construction at 34216 Forest Acres Dr and will soon be available for move-in at Belle Shoal at Millville by the Sea. Contact D.R. Horton today to lock in your options!
Neighborhood amenities
Hocker's Grocery & Deli
0.94 mile away
34960 Atlantic Ave
Hocker's SuperCenter
0.94 mile away
34960 Atlantic Ave
Good Earth Market
1.14 miles away
31806 Good Earth Ln
Giant Food
1.46 miles away
38069 Town Center Dr
Weis Markets
1.56 miles away
36731 Old Mill Rd
Morning Buns Bake Shop
1.62 miles away
35715 Atlantic Ave
Beach Break Bakery & Cafe
2.66 miles away
7 Canal Ct
Three Blonde Bakers
3.62 miles away
5 Garfield Pkwy
Nadine's Coastal Cupcakes & Sweets
4.68 miles away
38130 Jetty Ln
Sweet Disposition
5.12 miles away
38290 London Ave
Birch Tree Cafe
0.99 mile away
31826 Good Earth Ln
Shaka Shack LLC
1.02 miles away
35308 Atlantic Ave
Al Casapulla's Subs Steaks-PZZ
1.11 miles away
35265 Atlantic Ave
Agape Creamery LLC
1.21 miles away
35287 Atlantic Ave
Perucci's
1.31 miles away
35507 Atlantic Ave
Starbucks
1.46 miles away
38069 Town Center Dr
Fractured Prune
1.57 miles away
210 Town Center Dr
Drifting Grounds Coffee House
1.84 miles away
117 Atlantic Ave
Dunkin'
4.12 miles away
33364 S Pennsylvania Ave
Starbucks
4.68 miles away
31221 Americana Pkwy
R Lynne Boutique
1.82 miles away
35849 Atlantic Ave
The Coastal Cottage
1.96 miles away
101 Atlantic Ave
Lete
2.44 miles away
1934 Route 1
Crazy Ladyz
2.69 miles away
9 Atlantic Ave
Delaware Surf Co
2.73 miles away
7 Town Rd
Hooked Up Ale House & Raw Bar
1.46 miles away
38069 Town Center Dr
Sedona
4.05 miles away
26 N Pennsylvania Ave
Bethany Boathouse
4.09 miles away
39817 Hickman Plaza Rd
Scotty's Bayside Tavern
4.61 miles away
36666 Bluewater Run W
Signatures at Bayside
4.88 miles away
12021 N Haven Dr
Please note this information may vary. If you come across anything inaccurate, please contact us.
Builder details
D.R. Horton
In 1978, D.R. Horton broke ground on our first home in Fort Worth, Texas. Since that day, the company has defined its success not by bricks and mortar, but by the satisfaction of the families that make our houses their homes. Our foundation is a single, guiding principle: a value-first dedication to the individual needs of each and every one of our nation’s homebuyers.
From first-time homebuyers to empty nesters, our family of brands provides a home for every stage in life. Our highly-trained, market experts are where you want to live, from New Jersey to Hawaii, providing unique, personalized services tailored to your individual needs. But the real value comes from the quality construction we put into every home, and the peace of mind that comes with a premium-backed warranty from America’s Number One Homebuilder.
We’ve come a long way, and while more people choose our family of brands over any other builder in the country, we never forget the most important thing of all – the families that choose us for their place to call home.
So continue to live out those dreams, America, and know we’ll be here for you every step of the way.
More new homes in Millville, Delaware
34216 Forest Acres Dr (SEVERN) by D.R. Horton
saved to favorites!
To see all the homes you’ve saved, visit the My Favorites section of your account.
Discover More Great Communities
Select additional listings for more information
Way to Go!
An agent will be in contact soon!
