SHELBY Plan
Ready to build
19972 Elizabeth Gardens Boulevard, Silverhill AL 36576
Home by D.R. Horton
Last updated 1 day ago
The Price Range displayed reflects the base price of the homes built in this community.
You get to select from the many different types of homes built by this Builder and personalize your New Home with options and upgrades.
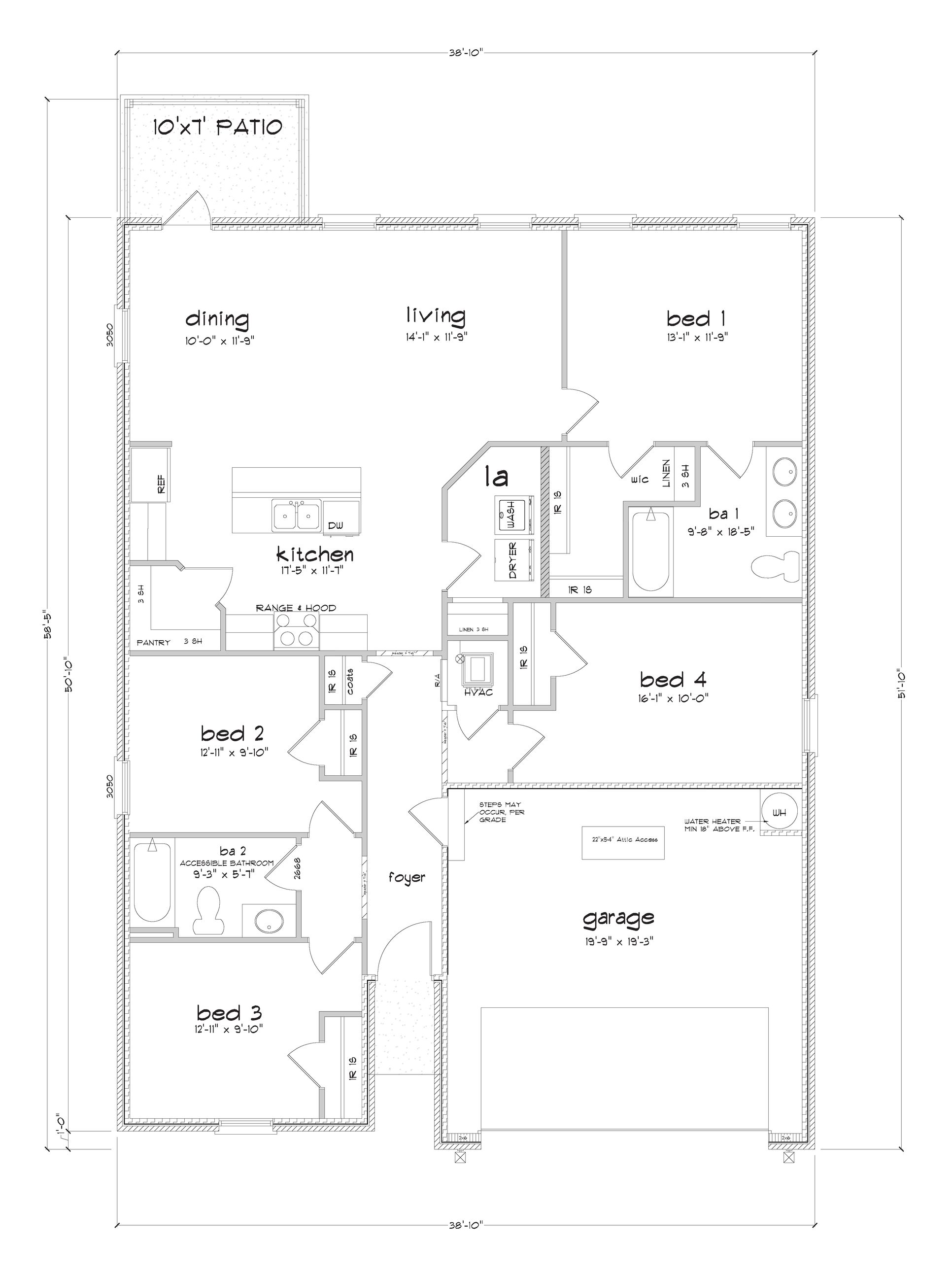
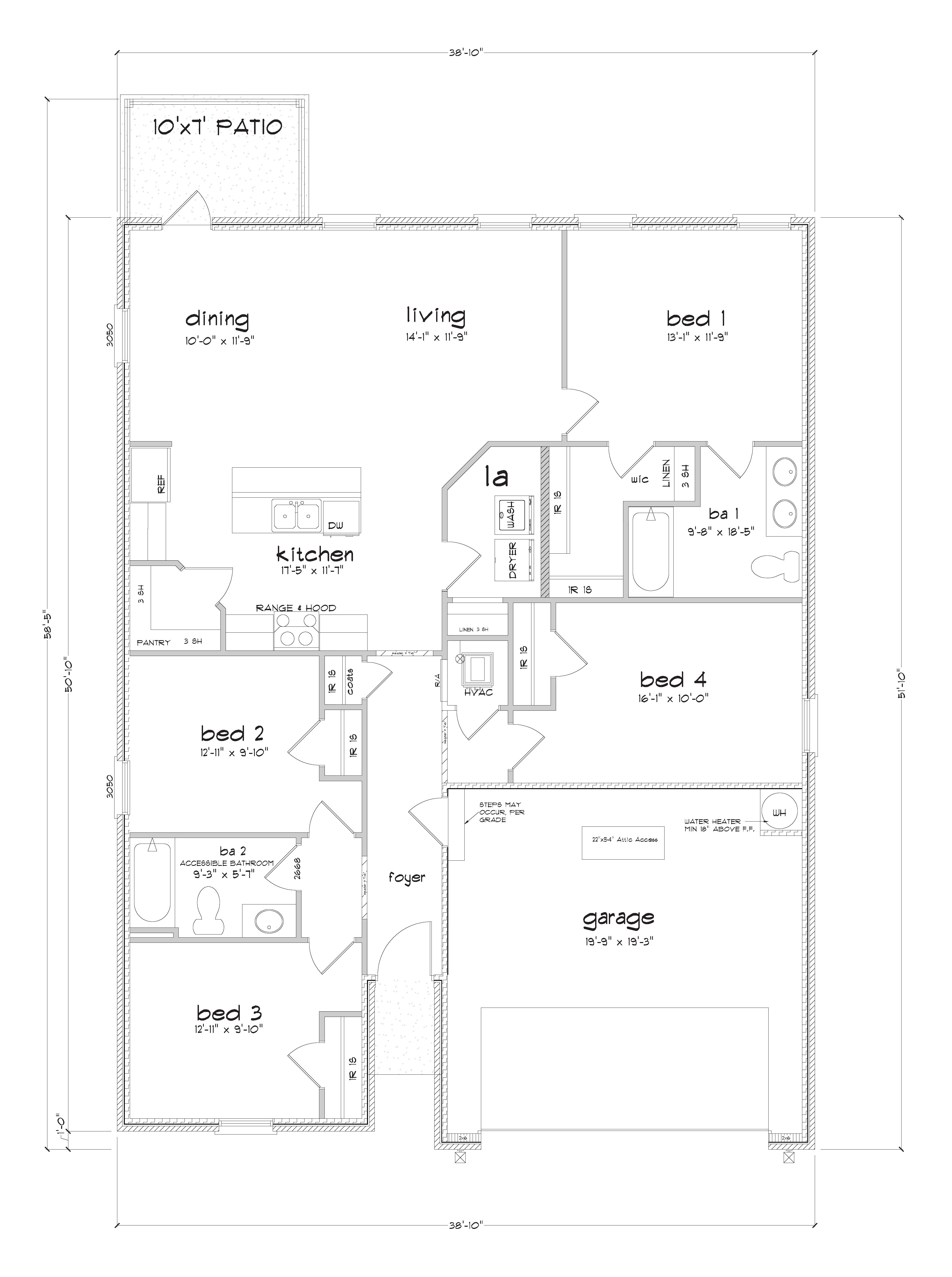
4 BR
2 BA
2 GR
1,490 SQ FT
Claim this listing to update information, get access to exclusive tools and more!

Floorplan 0 1/1
Overview
1 Story
Single Family
SHELBY Plan Info
Introducing the Shelby, a single-story home with a 2-car garage, nestled in the picturesque Elizabeth Gardens neighborhood of Silverhill, Alabama. With a variety of stylish exterior options, the Shelby is crafted to make a lasting impression and enhance your lifestyle. Spanning 1,490 square feet, this thoughtfully designed home features 4 spacious bedrooms and 2 bathrooms, all highlighted by 9-foot ceilings that create an open, airy feel throughout. As you enter, you're welcomed by a bright and inviting foyer that seamlessly transitions into an expansive open-concept layout - perfect for entertaining and daily living. The heart of the home is the kitchen, bathed in natural light and perfectly connected to the breakfast nook and living room, offering a unified space for family gatherings or hosting friends. The kitchen is as functional as it is elegant, featuring an abundance of counter space, a central peninsula island, shaker-style cabinetry, sleek stainless-steel appliances, granite countertops, and a pantry for extra storage. The primary bedroom is a private retreat, complete with a walk-in closet and a luxurious ensuite bathroom. The ensuite features a double vanity, a shower/tub combination, and abundant space for relaxation. The three additional bedrooms are spacious and versatile, perfect for guests, an office, or a home gym. These rooms share a conveniently located bathroom with a bathtub/shower combination. For your advantage, the attached 2-car garage provides di
Floor plan center
View floor plan details for this property.
- Floor Plans
- Exterior Images
- Interior Images
- Other Media
Neighborhood
Community location & sales center
19972 Elizabeth Gardens Boulevard
Silverhill, AL 36576
19972 Elizabeth Gardens Boulevard
Silverhill, AL 36576
888-790-3488
Schools near Elizabeth Gardens
- Baldwin County Public Schools
- Silverhill Elementary School
- Central Baldwin Middle School
- Robertsdale High School
Actual schools may vary. Contact the builder for more information.
Amenities
Home details
Ready to build
Build the home of your dreams with the SHELBY plan by selecting your favorite options. For the best selection, pick your lot in Elizabeth Gardens today!
Nearby schools
Baldwin County Public Schools
Silverhill Elementary School
Elementary-Middle school. Grades PK to 6
Public school
Class ratio: 1: 16
Enrollment: 485
251-945-5188
15800 4th Ave, Silverhill, AL, 36576
Central Baldwin Middle School
Middle school. Grades 7 to 8
Public school
Class ratio: 1: 17
Enrollment: 757
251-947-2327
24545 State Highway 59, Loxley, AL, 36551
Robertsdale High School
High school. Grades 9 to 12
Public school
Class ratio: 1: 18
Enrollment: 1450
251-947-4154
21630 State Highway 59 S, Robertsdale, AL, 36567
Actual schools may vary. We recommend verifying with the local school district, the school assignment and enrollment process.
Builder details
D.R. Horton
In 1978, D.R. Horton broke ground on our first home in Fort Worth, Texas. Since that day, the company has defined its success not by bricks and mortar, but by the satisfaction of the families that make our houses their homes. Our foundation is a single, guiding principle: a value-first dedication to the individual needs of each and every one of our nation’s homebuyers.
From first-time homebuyers to empty nesters, our family of brands provides a home for every stage in life. Our highly-trained, market experts are where you want to live, from New Jersey to Hawaii, providing unique, personalized services tailored to your individual needs. But the real value comes from the quality construction we put into every home, and the peace of mind that comes with a premium-backed warranty from America’s Number One Homebuilder.
We’ve come a long way, and while more people choose our family of brands over any other builder in the country, we never forget the most important thing of all – the families that choose us for their place to call home.
So continue to live out those dreams, America, and know we’ll be here for you every step of the way.
More new homes in Silverhill, Alabama
SHELBY Plan by D.R. Horton
saved to favorites!
To see all the homes you’ve saved, visit the My Favorites section of your account.
Discover More Great Communities
Select additional listings for more information
Way to Go!
An agent will be in contact soon!
