SPARROW Plan
Ready to build
6613 Nystrom Terrace, Colorado Springs CO 80925
Home by D.R. Horton
Last updated 2 days ago
The Price Range displayed reflects the base price of the homes built in this community.
You get to select from the many different types of homes built by this Builder and personalize your New Home with options and upgrades.
4 BR
2.5 BA
2 GR
1,956 SQ FT
Claim this listing to update information, get access to exclusive tools and more!

Floorplan 0 1/2
Overview
1 Half Bathroom
1956 Sq Ft
2 Bathrooms
2 Car Garage
2 Stories
4 Bedrooms
Single Family
SPARROW Plan Info
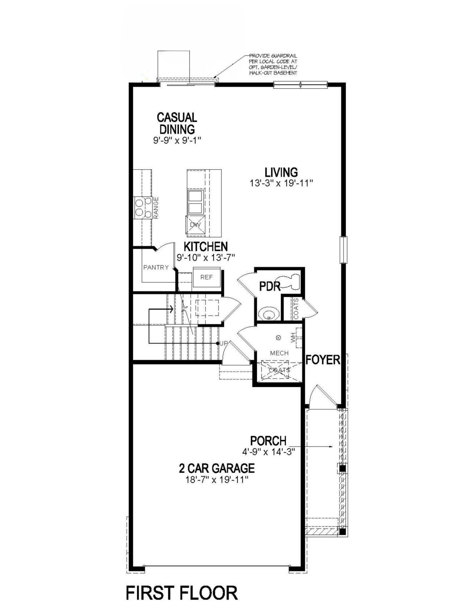
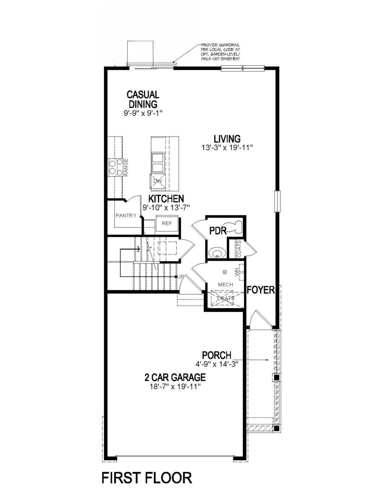
The Sparrow floor plan in the Lorson Ranch community, Colorado Springs, Colorado, offers a beautifully designed two-story layout with four bedrooms, two and a half bathrooms, and a two-car garage. This thoughtfully crafted home is perfect for families, professionals, and those looking for a modern living experience. The first floor features an open-concept design, where the spacious living room flows seamlessly into the casual dining area and kitchen. The kitchen is equipped with ample counter space, a pantry for additional storage, and high-quality appliances. A powder room is conveniently located near the foyer. The optional covered patio extends the living space outdoors, providing the perfect setting for relaxation or entertaining. The attached two-car garage allows for easy home access and extra storage space. Upstairs, the primary suite serves as a private retreat with a generous walk-in closet and an en-suite bathroom featuring dual sinks. Three additional bedrooms offer flexible space for family, guests, or a home office. A second full bathroom is centrally located for convenience, while the laundry room on the second floor simplifies daily routines. Home Is Connected®: All D.R. Horton homes come with an industry-leading suite of smart home products that keep you connected with the people and places you value most. Additionally, D.R. Horton Colorado includes a tankless water heater for each home in our new communities. Schedule a tour today! *Photos are for r
Floor plan center
View floor plan details for this property.
- Floor Plans
- Exterior Images
- Interior Images
- Other Media
Neighborhood
Community location & sales center
6613 Nystrom Terrace
Colorado Springs, CO 80925
6613 Nystrom Terrace
Colorado Springs, CO 80925
888-355-8096
Schools near The Ridge at Lorson Ranch
- Widefield School District 3
Actual schools may vary. Contact the builder for more information.
Amenities
Home details
Ready to build
Build the home of your dreams with the SPARROW plan by selecting your favorite options. For the best selection, pick your lot in The Ridge at Lorson Ranch today!
Builder details
D.R. Horton
In 1978, D.R. Horton broke ground on our first home in Fort Worth, Texas. Since that day, the company has defined its success not by bricks and mortar, but by the satisfaction of the families that make our houses their homes. Our foundation is a single, guiding principle: a value-first dedication to the individual needs of each and every one of our nation’s homebuyers.
From first-time homebuyers to empty nesters, our family of brands provides a home for every stage in life. Our highly-trained, market experts are where you want to live, from New Jersey to Hawaii, providing unique, personalized services tailored to your individual needs. But the real value comes from the quality construction we put into every home, and the peace of mind that comes with a premium-backed warranty from America’s Number One Homebuilder.
We’ve come a long way, and while more people choose our family of brands over any other builder in the country, we never forget the most important thing of all – the families that choose us for their place to call home.
So continue to live out those dreams, America, and know we’ll be here for you every step of the way.
More new homes in Colorado Springs, Colorado
SPARROW Plan by D.R. Horton
saved to favorites!
To see all the homes you’ve saved, visit the My Favorites section of your account.
Discover More Great Communities
Select additional listings for more information
Way to Go!
An agent will be in contact soon!
