2446 Trailside DR NE 187 (Stafford)
Under Construction
Olympia, WA 98506
Home by D.R. Horton
Last updated 1 day ago
The Price Range displayed reflects the base price of the homes built in this community.
You get to select from the many different types of homes built by this Builder and personalize your New Home with options and upgrades.
6 BR
2.5 BA
2 GR
3,259 SQ FT
Claim this listing to update information, get access to exclusive tools and more!

Floor Plan 1/1
Overview
1 Half Bathroom
2 Stories
Single Family
2446 Trailside DR NE 187 (Stafford) Home Info
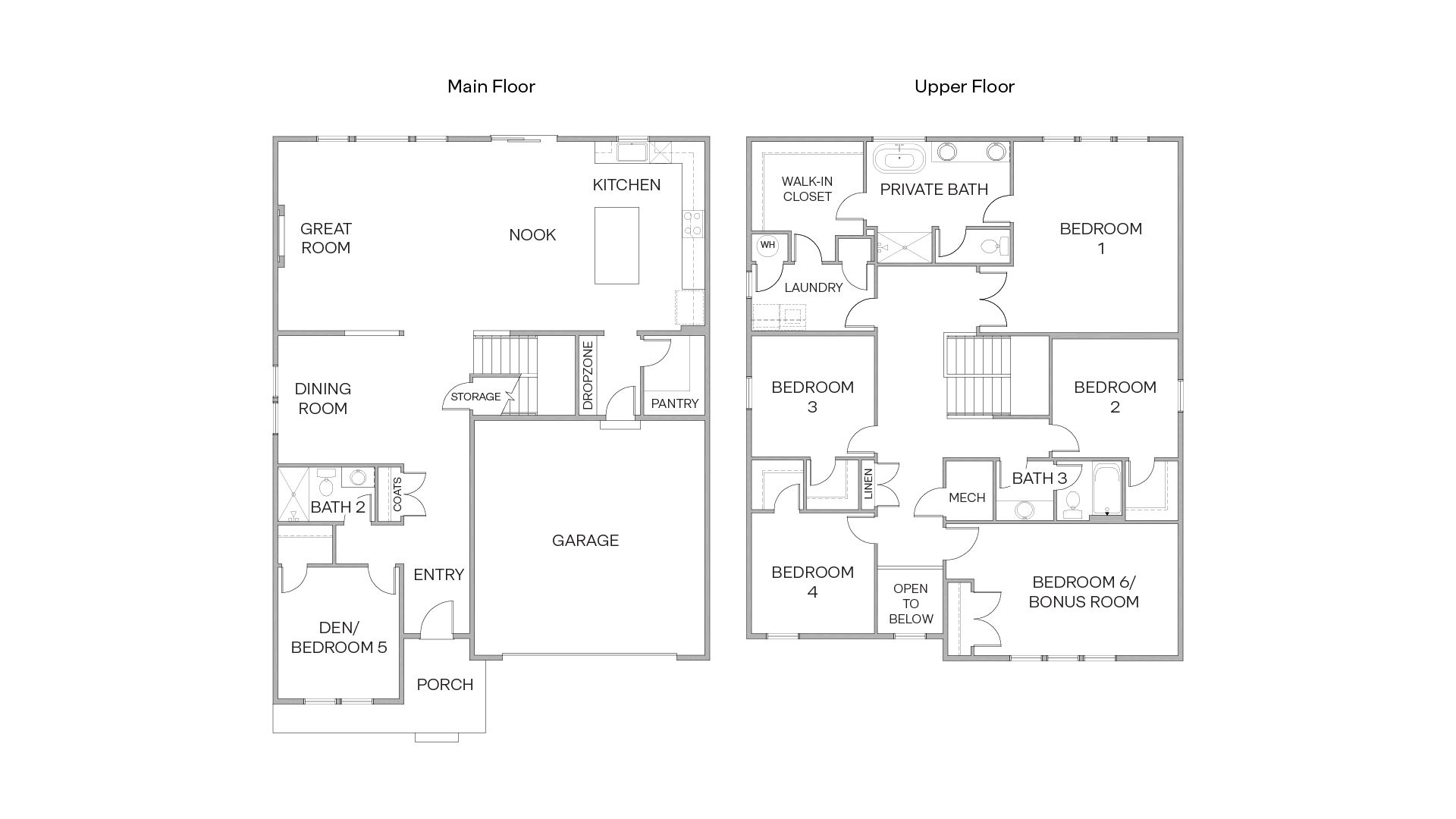
Offering inviting spaces to gather and privacy just where you need it, the Stafford is built for every occasion. On the main floor, the dining room leads into a large, open great room, nook, and kitchen. Complete with well-arranged appliances, ample counter space, cabinets, and a pantry for storage, there's much to enjoy. A full bathroom and a bedroom off entry finish off the main floor before heading upstairs. There you'll find five more bedrooms, three with walk-in closets, a full bathroom, and a laundry room. Highlighting the upper floor, is the larger-than-life primary suite, with a five-piece private bathroom and walk-in closet to complement.
Floor plan center
View floor plan details for this property.
- Floor Plans
- Exterior Images
- Interior Images
- Other Media
Neighborhood
Community location & sales center
4038 23rd Ave NE
Olympia, WA 98506
4038 23rd Ave NE
Olympia, WA 98506
888-790-3488
Schools near Sleater Crossing
- North Thurston Public Schools
- Pleasant Glade Elementary School
- Chinook Middle School
- North Thurston High School
Actual schools may vary. Contact the builder for more information.
Amenities
Home details
Now building
This home is currently under construction at 2446 Trailside DR NE 187 and will soon be available for move-in at Sleater Crossing. Contact D.R. Horton today to lock in your options!
Nearby schools
North Thurston Public Schools
Pleasant Glade Elementary School
Elementary-Middle school. Grades PK to 6.
Public school
Teacher - student ratio: 1:16
Students enrolled: 644
360-412-4620
1920 Abernethy Rd Ne, Lacey, WA, 98516
Chinook Middle School
Middle school. Grades 7 to 8.
Public school
Teacher - student ratio: 1:18
Students enrolled: 788
360-412-4760
4301 6th Ave Ne, Lacey, WA, 98516
North Thurston High School
High school. Grades 9 to 12.
Public school
Teacher - student ratio: 1:20
Students enrolled: 1440
360-412-4800
600 Sleater Kinney Rd Ne, Lacey, WA, 98506
Actual schools may vary. We recommend verifying with the local school district, the school assignment and enrollment process.
Neighborhood amenities
Safeway
1.06 miles away
4280 Martin Way E
South Bay Market & Deli
1.24 miles away
3425 Shincke Rd NE
Albertsons
1.60 miles away
3520 Pacific Ave SE
Fred Meyer
1.65 miles away
700 Sleater Kinney Rd SE
Hong Phat Market
1.93 miles away
1107 College St SE
Super Supplements
1.15 miles away
4104 Martin Way E
The Vitamin Shoppe
1.15 miles away
4104 Martin Way E
Albertsons Bakery
1.60 miles away
3520 Pacific Ave SE
GNC
1.65 miles away
700 Sleater Kinney Rd SE
Miss Moffets
1.77 miles away
730 Sleater Kinney Rd SE
Lucky Lunchbox Lilly
0.65 mile away
700 Lilly Rd NE
Jack in the Box
1.14 miles away
4040 Martin Way E
Panda Express
1.15 miles away
4210 Martin Way E
Jersey Mike's Subs
1.19 miles away
4131 Martin Way E
Casa Mia Italian Restaurant
1.19 miles away
4426 Martin Way E
Starbucks
1.02 miles away
413 Lilly Rd NE
Starbucks
1.05 miles away
4230 Martin Way E
Starbucks
1.19 miles away
4131 Martin Way E
Avenue Espresso Martin Way
1.23 miles away
3931 Martin Way E
Starbucks
1.47 miles away
537 Sleater Kinney Rd SE
Howard's Cleaners
0.13 mile away
4125 23rd Ave NE
Lovers
1.21 miles away
3959 Martin Way E
Kohl's
1.46 miles away
681 Sleater Kinney Rd SE
Burlington
1.50 miles away
5600 Martin Way E
Target
1.51 miles away
665 Sleater Kinney Rd SE
Puget Sound Taps
1.15 miles away
4250 Martin Way E
South Bay Pub & Eatery
1.20 miles away
3323 South Bay Rd NE
Brewery City Pizza Co
1.23 miles away
4353 Martin Way E
O'Blarney's Irish Pub
1.26 miles away
4411 Martin Way E
Applebee's Grill + Bar
1.43 miles away
525 Sleater Kinney Rd SE
Please note this information may vary. If you come across anything inaccurate, please contact us.
Builder details
D.R. Horton
In 1978, D.R. Horton broke ground on our first home in Fort Worth, Texas. Since that day, the company has defined its success not by bricks and mortar, but by the satisfaction of the families that make our houses their homes. Our foundation is a single, guiding principle: a value-first dedication to the individual needs of each and every one of our nation’s homebuyers.
From first-time homebuyers to empty nesters, our family of brands provides a home for every stage in life. Our highly-trained, market experts are where you want to live, from New Jersey to Hawaii, providing unique, personalized services tailored to your individual needs. But the real value comes from the quality construction we put into every home, and the peace of mind that comes with a premium-backed warranty from America’s Number One Homebuilder.
We’ve come a long way, and while more people choose our family of brands over any other builder in the country, we never forget the most important thing of all – the families that choose us for their place to call home.
So continue to live out those dreams, America, and know we’ll be here for you every step of the way.
More new homes in Olympia, Washington
2446 Trailside DR NE 187 (Stafford) by D.R. Horton
saved to favorites!
To see all the homes you’ve saved, visit the My Favorites section of your account.
Discover More Great Communities
Select additional listings for more information
Way to Go!
An agent will be in contact soon!
