3089 YELLOWHAMMER DRIVE (Stratford)
Under Construction
Marietta, GA 30064
Home by D.R. Horton
at Barrett Cove
Last updated 19 hours ago
The Price Range displayed reflects the base price of the homes built in this community.
You get to select from the many different types of homes built by this Builder and personalize your New Home with options and upgrades.
3 BR
2.5 BA
2 GR
1,894 SQ FT
Claim this listing to update information, get access to exclusive tools and more!

Floor Plan 1/2
Overview
1 Half Bathroom
1894 Sq Ft
2 Bathrooms
2 Car Garage
2 Stories
3 Bedrooms
Multi Family
3089 YELLOWHAMMER DRIVE (Stratford) Home Info
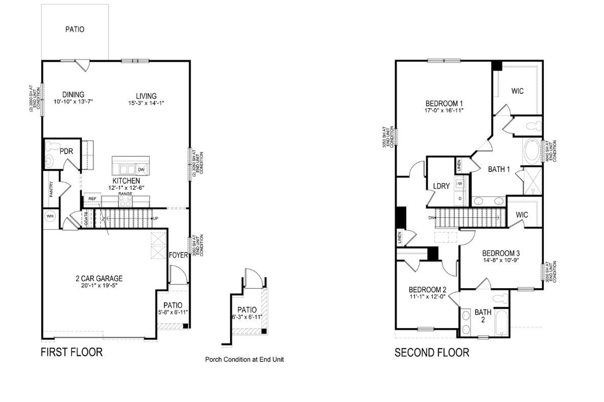
The Stratford plan is a stunning example of modern design and comfort, featuring 3 bedrooms and 2.5 bathrooms. This open-concept layout includes RevWood flooring throughout the main level, creating a warm and inviting atmosphere. Enjoy outdoor living on the rear patio, and benefit from the convenience of a front-entry two-car garage. The chef-inspired kitchen is a focal point, offering a large island with quartz countertops and stainless-steel appliances, perfect for cooking and entertaining. The upstairs layout is thoughtfully designed for privacy, with secondary bedrooms at the front of the home, sharing a Jack and Jill bathroom. The sprawling primary suite, located at the rear of the home, provides a serene retreat with views of the backyard.
Floor plan center
View floor plan details for this property.
- Floor Plans
- Exterior Images
- Interior Images
- Other Media
Neighborhood
Community location & sales center
3066 Yellowhammer Drive
Marietta, GA 30064
3066 Yellowhammer Drive
Marietta, GA 30064
888-355-8096
Schools near Barrett Cove
- Cobb County School District
- Hollydale Elementary School
- Smitha Middle School
- Osborne High School
- Marietta City Schools
Actual schools may vary. Contact the builder for more information.
Amenities
Home details
Now building
This home is currently under construction at 3089 YELLOWHAMMER DRIVE and will soon be available for move-in at Barrett Cove. Contact D.R. Horton today to lock in your options!
Nearby schools
Cobb County School District
Elementary school. Grades PK to 5.
- Public school
- Teacher - student ratio: 1:9
- Students enrolled: 566
2901 Bay Berry Dr Sw, Marietta, GA, 30008
678-594-8143
Middle school. Grades 6 to 8.
- Public school
- Teacher - student ratio: 1:12
- Students enrolled: 881
2025 Powder Springs Rd Sw, Marietta, GA, 30064
678-594-8267
High school. Grades 9 to 12.
- Public school
- Teacher - student ratio: 1:16
- Students enrolled: 2772
2451 Favor Rd Sw, Marietta, GA, 30060
770-437-5900
Actual schools may vary. We recommend verifying with the local school district, the school assignment and enrollment process.
Neighborhood amenities
Walmart Supercenter
0.79 mile away
6520 Ernest W Barrett Pkwy SW
Garvey's West Indian
0.81 mile away
2575 Whitehaven Dr SW
Lidl
0.92 mile away
2641 Powder Springs Rd SW
Blessed Tropical Foods
1.05 miles away
2365 Powder Springs Rd SW
C Classic Tropical Market LLC
1.09 miles away
2325 Powder Springs Rd SW
Walmart Bakery
0.79 mile away
6520 Ernest W Barrett Pkwy SW
The Vitamin Shoppe
2.64 miles away
1605 East-West Connector
Subway
0.79 mile away
6520 Ernest W Barrett Pkwy SW
Waffle House
0.89 mile away
2661 Powder Springs Rd SW
Firehouse Subs
0.92 mile away
2860 E West Connector
Pizza Hut
0.92 mile away
2860 E West Connector
Wing Street
0.92 mile away
2860 E West Connector
Dunkin'
1.41 miles away
3721 Tramore Pointe Pkwy
Paradise Smoothie Juice Bar
2.50 miles away
1750 Powder Springs Rd SW
Dunkin'
2.62 miles away
4100 Macland Rd
Starbucks
2.64 miles away
1025 East-West Connector SW
DOUGH IN THE BOX DONUTS-MARIETTA
2.77 miles away
3184 Austell Rd SW
Walmart Supercenter
0.79 mile away
6520 Ernest W Barrett Pkwy SW
Family Dollar
1.99 miles away
3824 Powder Springs Rd
Fashion World News
2.06 miles away
1711 Silverchase Dr SW
Kohl's
2.54 miles away
1825 E West Connector
Rack Room Shoes
2.54 miles away
1825 E West Connector
O'Charley's Restaurant + Bar
2.60 miles away
4130 Austell Rd
LongHorn Steakhouse
2.64 miles away
1365 East-West Connector
Sports Grill
2.65 miles away
3999 Austell Rd
Chili's
2.67 miles away
4145 Austell Rd
Please note this information may vary. If you come across anything inaccurate, please contact us.
Builder details
D.R. Horton
In 1978, D.R. Horton broke ground on our first home in Fort Worth, Texas. Since that day, the company has defined its success not by bricks and mortar, but by the satisfaction of the families that make our houses their homes. Our foundation is a single, guiding principle: a value-first dedication to the individual needs of each and every one of our nation’s homebuyers.
From first-time homebuyers to empty nesters, our family of brands provides a home for every stage in life. Our highly-trained, market experts are where you want to live, from New Jersey to Hawaii, providing unique, personalized services tailored to your individual needs. But the real value comes from the quality construction we put into every home, and the peace of mind that comes with a premium-backed warranty from America’s Number One Homebuilder.
We’ve come a long way, and while more people choose our family of brands over any other builder in the country, we never forget the most important thing of all – the families that choose us for their place to call home.
So continue to live out those dreams, America, and know we’ll be here for you every step of the way.
More new homes in Marietta, Georgia
3089 YELLOWHAMMER DRIVE (Stratford) by D.R. Horton
saved to favorites!
To see all the homes you’ve saved, visit the My Favorites section of your account.
Discover More Great Communities
Select additional listings for more information
Way to Go!
An agent will be in contact soon!
