16238 TIGRIS DRIVE (SULLIVAN)
Under Construction
Fairhope, AL 36532
Home by D.R. Horton
Last updated 20 hours ago
The Price Range displayed reflects the base price of the homes built in this community.
You get to select from the many different types of homes built by this Builder and personalize your New Home with options and upgrades.
4 BR
2 BA
1 GR
1,410 SQ FT
Claim this listing to update information, get access to exclusive tools and more!

Floor Plan 1/1
Overview
1 Car Garage
1 Story
1410 Sq Ft
2 Bathrooms
4 Bedrooms
Single Family
16238 TIGRIS DRIVE (SULLIVAN) Home Info
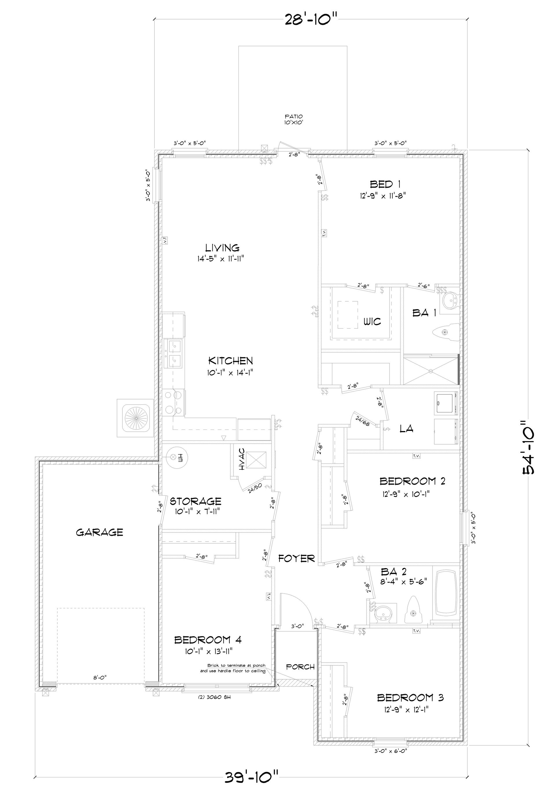
Welcome to 16238 Tigris Drive in Fairhope, Alabama! This is the lovely Sullivan floorplan in our new community Cottonwood Estates! This brand-new home offers 4 bedrooms and 2 bathrooms with 1,410 square feet of living space. As you enter the foyer, two front bedrooms will be on one side across from the garage. A bathroom is conveniently located between them. Continue on, and you will land in the beautiful, open kitchen with an island featuring a built-in sink. This area will be perfect for entertaining and make meal prep a breeze. The kitchen seamlessly flows to the dining room and the living room. From the dining room, is the entrance to the covered back porch. This is a great extended living space great for gatherings or unwinding from the day. From the living room, the primary bedroom is located in the back corner of the home with great privacy featuring an ensuite with a beautiful bathroom boasting a separate shower and soaking tub, double bowl vanity and a large walk-in closet. The closet also connects to the laundry room that is also located off of the kitchen, hello convenience! Contact us to schedule your tour of and find your new home in Cottonwood Estates! Cottonwood Estates boasts a premier location in the highly desirable market of Fairhope, Alabama! This home is being built to Gold Fortified Home TM certification and will be equipped with Smart Home Technology. The Smart Home Connect Technology System includes your video doorbell, keyless entry door lock
Floor plan center
View floor plan details for this property.
- Floor Plans
- Exterior Images
- Interior Images
- Other Media
Neighborhood
Community location & sales center
16378 Tigris Drive
Fairhope, AL 36532
16378 Tigris Drive
Fairhope, AL 36532
888-790-3488
Schools near Cottonwood Estates
- Baldwin County Public Schools
Actual schools may vary. Contact the builder for more information.
Amenities
Home details
Now building
This home is currently under construction at 16238 TIGRIS DRIVE and will soon be available for move-in at Cottonwood Estates. Contact D.R. Horton today to lock in your options!
Neighborhood amenities
Day Break Mart
1.75 miles away
13432 County Road 32
Publix
4.50 miles away
18125 Wright Blvd
Walmart Supercenter
4.53 miles away
10040 County Road 48
ALDI
4.71 miles away
10101 County Road 48
Fairhope Market
5.59 miles away
101 Greeno Rd S
Walmart Bakery
4.53 miles away
10040 County Road 48
Punta Clara Kitchen
5.42 miles away
17111 Scenic Highway 98
Healing Touch Chiropractic
5.46 miles away
119 Professional Park Dr
Strawcherry Two LLC
5.52 miles away
199 Baldwin Sq
Warehouse Bakery & Donuts
5.59 miles away
759 Nichols Ave
Grill Thirty & Two
0.73 mile away
11950 County Road 32
Big Daddy's Grill
0.95 mile away
16542 Ferry Rd
Hunt Brothers Pizza
1.75 miles away
13432 County Road 32
Biscuit King's Fun Barn
2.54 miles away
9555 County Road 24
Saraceno's Restaurant
2.57 miles away
9509 County Road 32
Refuge Coffee
6.47 miles away
4 S Bancroft St
Mr Gene's Beans
6.52 miles away
302 De La Mare Ave
The Coffee Loft
6.98 miles away
503 N Section St
Brodie's Cream & Bean
7.28 miles away
16320 Silverhill Ave
7 Brew Coffee
8.75 miles away
3231 S McKenzie St
Walmart Supercenter
4.53 miles away
10040 County Road 48
Family Dollar
5.03 miles away
14627 US Highway 98
Sweet Seconds Boutique
5.37 miles away
21193 State Highway 181
Private Gallery
5.48 miles away
9902 Vance Ln
Shoe Station
5.71 miles away
350 Eastern Shore Shopping Ctr
Bill-E's
4.19 miles away
19992 State Highway 181
The Hope Farm
5.41 miles away
915 Nichols Ave
District Hall
5.58 miles away
761 Nichols Ave
Fairhope's Grill & Bar
5.74 miles away
210 Eastern Shore Shopping Ctr
Plow
5.80 miles away
96 Plantation Pointe
Please note this information may vary. If you come across anything inaccurate, please contact us.
Builder details
D.R. Horton
In 1978, D.R. Horton broke ground on our first home in Fort Worth, Texas. Since that day, the company has defined its success not by bricks and mortar, but by the satisfaction of the families that make our houses their homes. Our foundation is a single, guiding principle: a value-first dedication to the individual needs of each and every one of our nation’s homebuyers.
From first-time homebuyers to empty nesters, our family of brands provides a home for every stage in life. Our highly-trained, market experts are where you want to live, from New Jersey to Hawaii, providing unique, personalized services tailored to your individual needs. But the real value comes from the quality construction we put into every home, and the peace of mind that comes with a premium-backed warranty from America’s Number One Homebuilder.
We’ve come a long way, and while more people choose our family of brands over any other builder in the country, we never forget the most important thing of all – the families that choose us for their place to call home.
So continue to live out those dreams, America, and know we’ll be here for you every step of the way.
More new homes in Fairhope, Alabama
16238 TIGRIS DRIVE (SULLIVAN) by D.R. Horton
saved to favorites!
To see all the homes you’ve saved, visit the My Favorites section of your account.
Discover More Great Communities
Select additional listings for more information
Way to Go!
An agent will be in contact soon!
