SULLIVAN Plan
Ready to build
21105 Roughleaf Drive, Summerdale AL 36580
Home by D.R. Horton
Last updated 1 day ago
The Price Range displayed reflects the base price of the homes built in this community.
You get to select from the many different types of homes built by this Builder and personalize your New Home with options and upgrades.
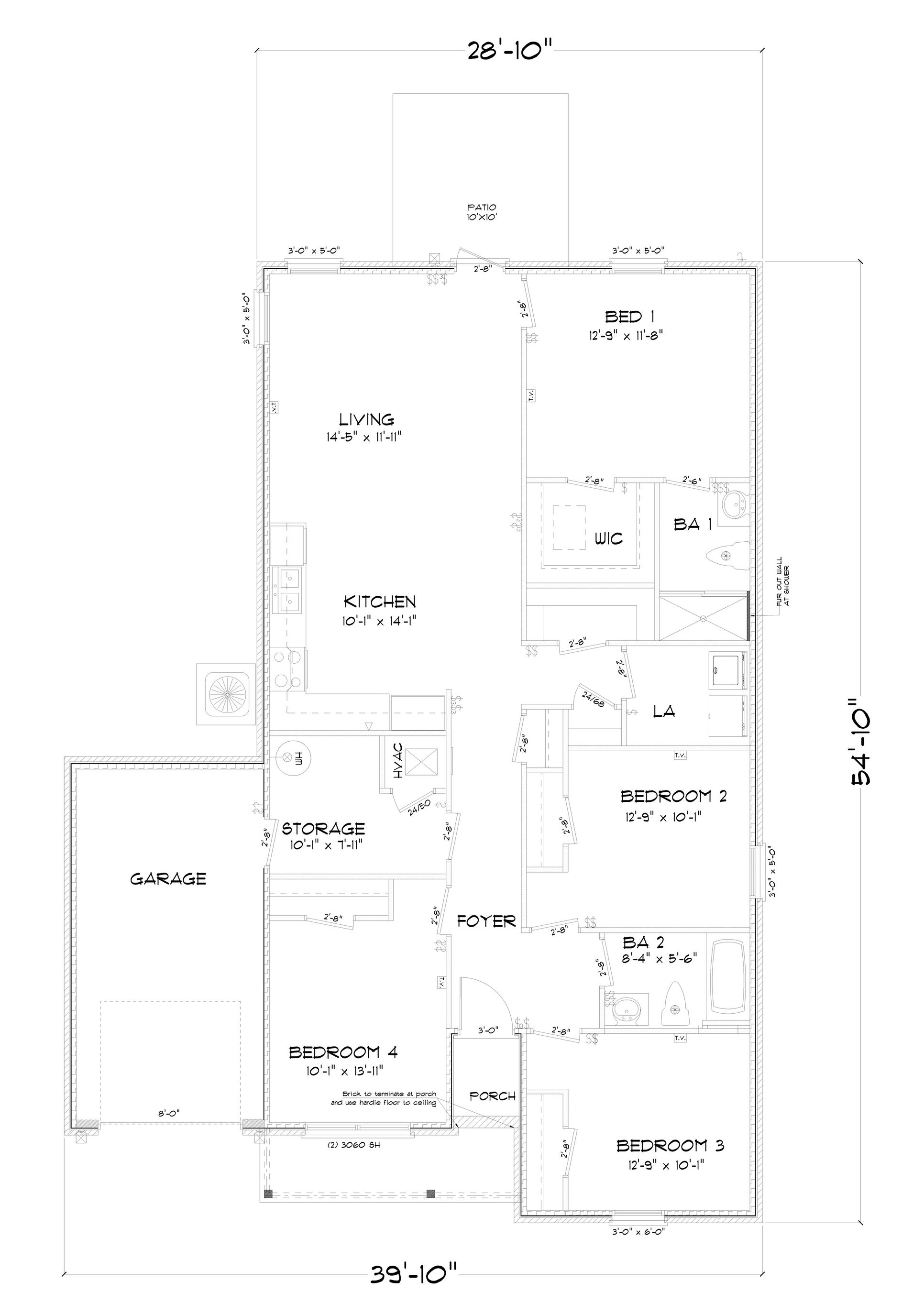
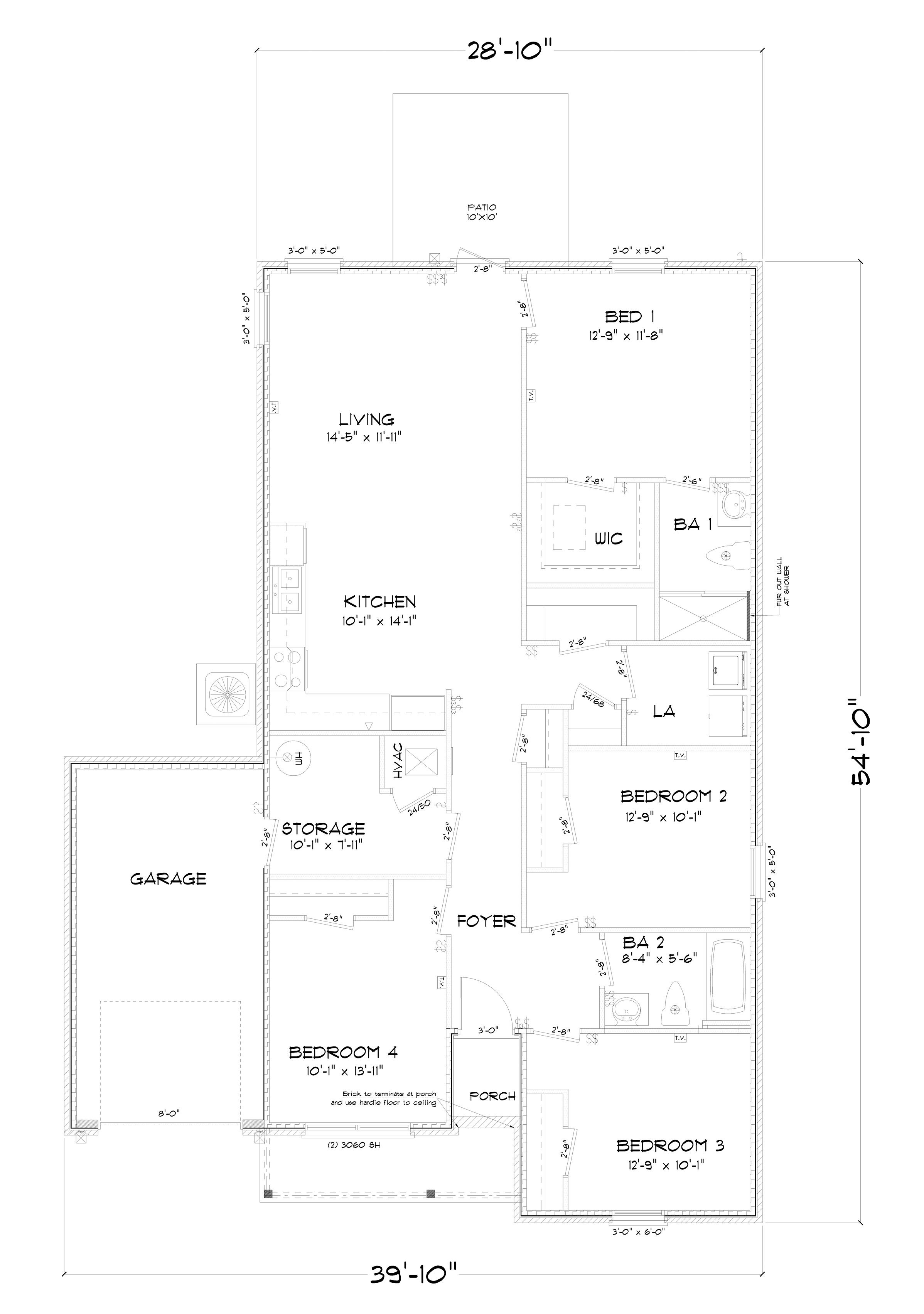
4 BR
2 BA
1 GR
1,410 SQ FT
Claim this listing to update information, get access to exclusive tools and more!

Floorplan 1 1/2
Overview
1 Story
Single Family
SULLIVAN Plan Info
Introducing the Sullivan, a beautiful single-story floor plan in Dogwood Estates, located in Summerdale, Alabama. With numerous unique exteriors to choose from, this home is designed to impress. Boasting 1,417 square feet of thoughtfully planned living space, the Sullivan offers 4 spacious bedrooms and 2 well-appointed bathrooms. Upon entry, you're greeted by a welcoming foyer that flows into an open-concept living area, seamlessly connecting the kitchen, dining, and great room - perfect for both everyday living and entertaining. The chef-inspired kitchen is a highlight of the home, featuring stylish shaker-style cabinetry, sleek stainless steel Whirlpool appliances, luxurious granite countertops, and a pantry for extra storage. With ample counter space, it's ideal for preparing meals and hosting guests. Tucked away for privacy, the spacious primary bedroom includes a large walk-in closet and an ensuite bathroom with granite countertops and an enclosed shower. The three additional bedrooms are generously sized and versatile - great for children, guests, or even a home office. These bedrooms share a conveniently located full bathroom, featuring a tub and shower combination. Step outside to the backyard, where you'll find plenty of room for relaxation or outdoor entertaining. The front yard is beautifully landscaped, with a charming pathway leading you to the front door, adding to the home's curb appeal. Equipped with Smart Home Connect Technology, this home includes a vid
Floor plan center
View floor plan details for this property.
- Floor Plans
- Exterior Images
- Interior Images
- Other Media
Neighborhood
Community location & sales center
21105 Roughleaf Drive
Summerdale, AL 36580
21105 Roughleaf Drive
Summerdale, AL 36580
888-790-3488
Schools near Dogwood Estates
- Baldwin County Public Schools
- Summerdale School
- Elberta High School
Actual schools may vary. Contact the builder for more information.
Amenities
Home details
Ready to build
Build the home of your dreams with the SULLIVAN plan by selecting your favorite options. For the best selection, pick your lot in Dogwood Estates today!
Nearby schools
Baldwin County Public Schools
Summerdale School
Elementary-Middle school. Grades KG to 8
Public school
Class ratio: 1: 16
Enrollment: 573
251-989-6850
400 E Broadway St, Summerdale, AL, 36580
Elberta High School
High school. Grades 9 to 12
Public school
Class ratio: 1: 18
Enrollment: 784
251-986-8127
13366 Illinois Street, Elberta, AL, 36530
Actual schools may vary. We recommend verifying with the local school district, the school assignment and enrollment process.
Neighborhood amenities
Walmart Supercenter
3.58 miles away
21141 State Highway 59
Greer's Cashsaver
4.74 miles away
21951 AL-59
Foley Fish Co Inc
7.02 miles away
321 S McKenzie St
ALDI
7.33 miles away
130 E Pride Blvd
Elberta Grocery
7.33 miles away
25250 US Highway 98
Walmart Bakery
3.58 miles away
21141 State Highway 59
Earth Grain Depot
4.74 miles away
23105 Grissom Dr
Sweet Fantasy
6.75 miles away
14809 AL-59
Path to Wellness
6.84 miles away
240 W Laurel Ave
Smallcakes Cupcakery
8.38 miles away
2163 S McKenzie St
Dan's Diner
2.60 miles away
105 NW 1st St
Cajun Boudin Connection
3.03 miles away
103 State Highway 59 S
Krispy Krunchy Chicken
3.26 miles away
1033 State Highway 59 S
Waffle House
3.31 miles away
1024 State Highway 59 S
Zaxby's Chicken Fingers & Buffalo Wings
3.58 miles away
21141 State Highway 59
Lickin Good Donuts
4.36 miles away
22379 State Highway 59 S
Brodie's Cream & Bean
5.79 miles away
16320 Silverhill Ave
Foley Coffee Shop
6.71 miles away
213 N McKenzie St
7 Brew Coffee
6.75 miles away
3231 S McKenzie St
Walmart Supercenter
3.58 miles away
21141 State Highway 59
The Hottest Fashions
6.01 miles away
1103 N McKenzie St
Anthony's Bridal & Tuxedo Shop
6.04 miles away
1021 N McKenzie St
Roses & Lace Weddings
6.90 miles away
107 W Orange Ave
Morning Glory Creations Elbrt
7.23 miles away
25054 State St
Billy Jacks Grill & Bar
4.74 miles away
22951 State Route 59
Alley Cat Alley
5.96 miles away
14835 AL-104
Porch in Silverhill
5.96 miles away
14835 State Highway 104
Local & Company Food & Drink
6.27 miles away
812 N McKenzie St
Scuttlebutt Pub
6.62 miles away
319A N McKenzie St
Please note this information may vary. If you come across anything inaccurate, please contact us.
Builder details
D.R. Horton
In 1978, D.R. Horton broke ground on our first home in Fort Worth, Texas. Since that day, the company has defined its success not by bricks and mortar, but by the satisfaction of the families that make our houses their homes. Our foundation is a single, guiding principle: a value-first dedication to the individual needs of each and every one of our nation’s homebuyers.
From first-time homebuyers to empty nesters, our family of brands provides a home for every stage in life. Our highly-trained, market experts are where you want to live, from New Jersey to Hawaii, providing unique, personalized services tailored to your individual needs. But the real value comes from the quality construction we put into every home, and the peace of mind that comes with a premium-backed warranty from America’s Number One Homebuilder.
We’ve come a long way, and while more people choose our family of brands over any other builder in the country, we never forget the most important thing of all – the families that choose us for their place to call home.
So continue to live out those dreams, America, and know we’ll be here for you every step of the way.
More new homes in Summerdale, Alabama
SULLIVAN Plan by D.R. Horton
saved to favorites!
To see all the homes you’ve saved, visit the My Favorites section of your account.
Discover More Great Communities
Select additional listings for more information
Way to Go!
An agent will be in contact soon!
