2260 Summit View Circle West (The Avery)
Under Construction
Mobile, AL 36695
Home by D.R. Horton
Last updated 3 days ago
The Price Range displayed reflects the base price of the homes built in this community.
You get to select from the many different types of homes built by this Builder and personalize your New Home with options and upgrades.
4 BR
3.5 BA
2 GR
2,495 SQ FT
Claim this listing to update information, get access to exclusive tools and more!

Floor Plan 1/1
Overview
1 Half Bathroom
1 Story
2 Car Garage
2495 Sq Ft
3 Bathrooms
4 Bedrooms
Single Family
2260 Summit View Circle West (The Avery) Home Info
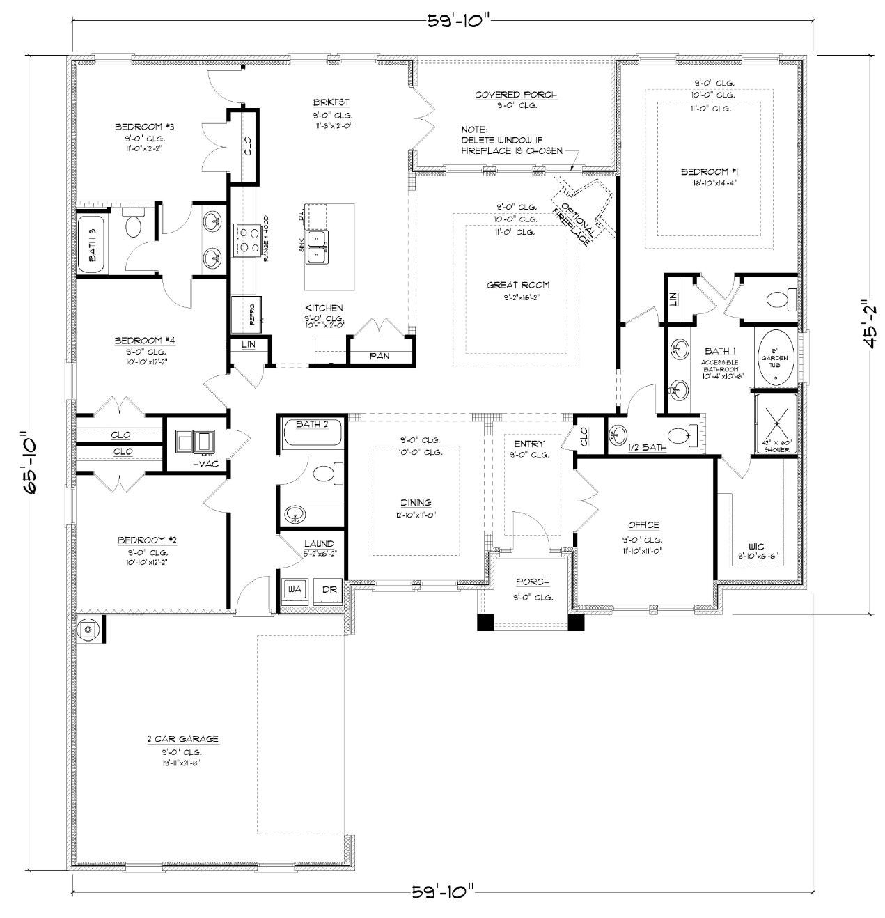
Step into 2260 Summit View Circle West in Mobile, Alabama, a new home in our Hamilton Ridge community. The Avery plan features 4-bedrooms and 3.5-bathrooms in over 2,400 square feet of living space with a 2-car garage. Entering the home, you'll find a formal dining room and a study. This popular floorplan features an open living area and a kitchen that features stainless steel appliances, an island with granite countertops and pantry. Just off the breakfast area is access to the covered porch. Tucked behind the kitchen and breakfast area are two bedrooms, both sharing access to a shared bathroom with a shower/tub combination. Also, on this side of the home is a third bedroom and additional bathroom along with the laundry room. On the opposite side of the home is an additional half bathroom for guests to utilize and a hallway leading to the primary bedroom. The primary bedroom has an ensuite with a separate water closet, double vanity, garden tub, tiled shower and large walk-in closet. The Avery includes a Home is Connected smart home technology package which allows you to control your home with your smart device while near or away. Pictures may be of a similar home and not necessarily of the subject property. Pictures are representational only. The Avery is a must-see floor plan so schedule your tour today!
Floor plan center
View floor plan details for this property.
- Floor Plans
- Exterior Images
- Interior Images
- Other Media
Neighborhood
Community location & sales center
2382 Hamilton Ridge Drive East
Mobile, AL 36695
2382 Hamilton Ridge Drive East
Mobile, AL 36695
888-790-3488
Schools near Hamilton Ridge
- Mobile County Schools
- Baker High School
Actual schools may vary. Contact the builder for more information.
Amenities
Home details
Now building
This home is currently under construction at 2260 Summit View Circle West and will soon be available for move-in at Hamilton Ridge. Contact D.R. Horton today to lock in your options!
Nearby schools
Mobile County Schools
High school. Grades 9 to 12.
- Public school
- Teacher - student ratio: 1:18
- Students enrolled: 2491
8901 Airport Blvd, Mobile, AL, 36608
251-221-3000
Actual schools may vary. We recommend verifying with the local school district, the school assignment and enrollment process.
Neighborhood amenities
Fulton Grocery
0.34 mile away
9573 White Castle Rd
Publix
0.87 mile away
9124 Cottage Hill Rd
Walmart Supercenter
1.52 miles away
2500 Dawes Rd
Winn-Dixie
2.19 miles away
9948 Airport Blvd
Mobile Grocery Delivery
2.78 miles away
2090 Schillinger Rd S
Walmart Bakery
1.52 miles away
2500 Dawes Rd
Walmart Bakery
3.68 miles away
685 Schillinger Rd S
Reneygs Honey Butter
0.77 mile away
9211 Cottage Hill Rd
Dlish Ice Cream
1.39 miles away
2410 Dawes Rd
Sweet Pea's Hse-Treats-Eats
1.39 miles away
2410 Dawes Rd
Marco's Pizza
1.40 miles away
2394 Dawes Rd
Tetsujin
1.47 miles away
2413 Dawes Rd
Special Touch Coffee & Prayer Room
3.06 miles away
880 Dawes Rd
Starbucks
3.43 miles away
790 Schillinger Rd S
Dunkin'
3.87 miles away
505 Schillinger Rd S
Starbucks
3.92 miles away
390 Schillinger Rd S
Tropical Smoothie Cafe
4.48 miles away
7450 Airport Blvd
Kids Cottage
1.01 miles away
1845 Holly Branch Ct
Lucy's Boutique & Gifts
1.39 miles away
2410 Dawes Rd
Kenziee Grace Boutique
1.48 miles away
2351 Dawes Rd
Walmart Supercenter
1.52 miles away
2500 Dawes Rd
Chic Jolie Boutique
2.19 miles away
9948 Airport Blvd
Alabama Bar
2.08 miles away
10071 Airport Blvd
Boondocks Bar & Grill
2.15 miles away
10210 Airport Blvd
PS Taco Company-West Mobile
2.68 miles away
7899 Cottage Hill Rd
Cruise City Bar & Grill
3.23 miles away
8400 Airport Blvd
Hacienda San Miguel: House of Tequila-Mobile
3.46 miles away
880 Schillinger Rd S
Please note this information may vary. If you come across anything inaccurate, please contact us.
Builder details
D.R. Horton
In 1978, D.R. Horton broke ground on our first home in Fort Worth, Texas. Since that day, the company has defined its success not by bricks and mortar, but by the satisfaction of the families that make our houses their homes. Our foundation is a single, guiding principle: a value-first dedication to the individual needs of each and every one of our nation’s homebuyers.
From first-time homebuyers to empty nesters, our family of brands provides a home for every stage in life. Our highly-trained, market experts are where you want to live, from New Jersey to Hawaii, providing unique, personalized services tailored to your individual needs. But the real value comes from the quality construction we put into every home, and the peace of mind that comes with a premium-backed warranty from America’s Number One Homebuilder.
We’ve come a long way, and while more people choose our family of brands over any other builder in the country, we never forget the most important thing of all – the families that choose us for their place to call home.
So continue to live out those dreams, America, and know we’ll be here for you every step of the way.
More new homes in Mobile, Alabama
2260 Summit View Circle West (The Avery) by D.R. Horton
saved to favorites!
To see all the homes you’ve saved, visit the My Favorites section of your account.
Discover More Great Communities
Select additional listings for more information
Way to Go!
An agent will be in contact soon!
