The Bentworth Plan
Ready to build
204 15th St, Wolfforth TX 79382
Home by D.R. Horton
Last updated 3 days ago
The Price Range displayed reflects the base price of the homes built in this community.
You get to select from the many different types of homes built by this Builder and personalize your New Home with options and upgrades.
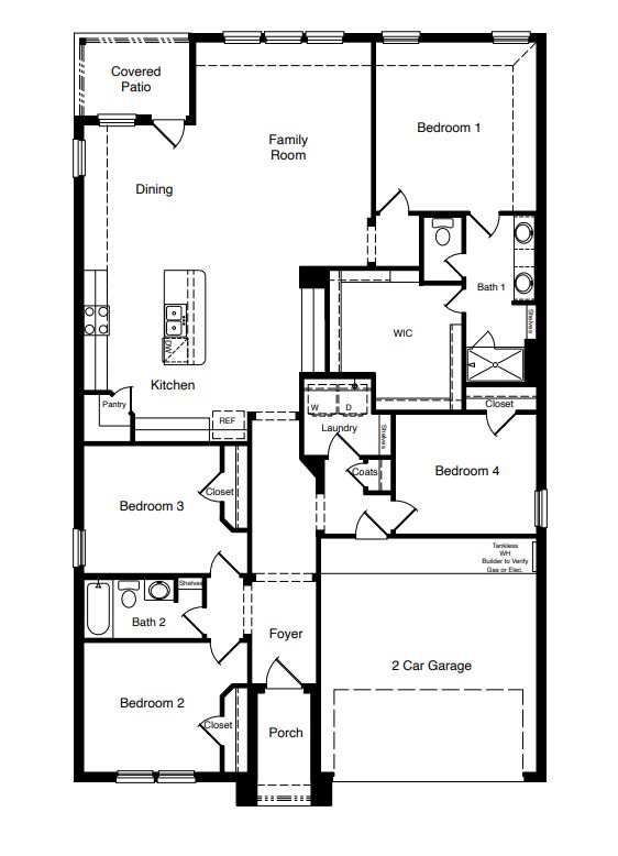
4 BR
2 BA
2 GR
2,035 SQ FT
Claim this listing to update information, get access to exclusive tools and more!

Floorplan 0 1/1
Overview
1 Story
Single Family
The Bentworth Plan Info
Meet the Bentworth a single-story home featuring 4 spacious bedrooms, 2 full bathrooms, and an open-concept layout ideal for entertaining. The kitchen includes a spacious island, pantry and opens to the dining and family room areas, all leading to a covered patio. The private primary suite offers a walk-in closet and double vanity with a walk-in shower in the bathroom. Additional highlights include a 2-car garage, dedicated laundry room and ample storage space throughout. Contact us today to find your home in Overlook West!
Floor plan center
View floor plan details for this property.
- Floor Plans
- Exterior Images
- Interior Images
- Other Media
Neighborhood
Community location & sales center
204 15th St
Wolfforth, TX 79382
204 15th St
Wolfforth, TX 79382
888-790-3488
Schools near Overlook West
- Frenship Independent School District
- Bennett Elementary School
- Frenship Middle School
- Frenship High School
Actual schools may vary. Contact the builder for more information.
Amenities
Home details
Ready to build
Build the home of your dreams with the The Bentworth plan by selecting your favorite options. For the best selection, pick your lot in Overlook West today!
Nearby schools
Frenship Independent School District
Bennett Elementary School
Elementary school. Grades PK to 5
Public school
Class ratio: 1: 16
Enrollment: 876
806-866-4443
101 Donald Preston Dr, Wolfforth, TX, 79382
Frenship Middle School
Middle school. Grades 6 to 8
Public school
Class ratio: 1: 16
Enrollment: 833
806-866-4464
500 Main St, Wolfforth, TX, 79382
Frenship High School
High school. Grades 9 to 12
Public school
Class ratio: 1: 15
Enrollment: 3247
806-866-4440
902 N Dowden Rd, Wolfforth, TX, 79382
Actual schools may vary. We recommend verifying with the local school district, the school assignment and enrollment process.
Neighborhood amenities
Walmart Supercenter
3.65 miles away
6315 82nd St
Asian Food Market
4.38 miles away
5903 82nd St
United Supermarkets
4.47 miles away
8010 Frankford Ave
S & S Pecan Shelling
4.73 miles away
5507 114th St
United Supermarkets
5.14 miles away
11310 Slide Rd
French Apron Bakery
1.78 miles away
8924 County Road 7100
Walmart Bakery
3.65 miles away
6315 82nd St
Ninety-Two Bakery & Cafe
3.82 miles away
6303 82nd St
Cakery
3.83 miles away
6301 82nd St
Simply Decadent Bakery
4.34 miles away
5905 82nd St
Chelos Mexican Restaurant
0.42 mile away
730 Highway 62
La Mission Restaurant
0.73 mile away
709 Main St
Some Other Place Cafe
0.73 mile away
709 Main St
Texas Legends Cafe
0.73 mile away
709 Main St
The Tamale Lady
0.73 mile away
709 Main St
Tumbleweed + Sage Coffeehouse
1.79 miles away
610 Donald Preston Dr
Out West Mercantile
3.62 miles away
6201 114th St
Dunkin'
3.78 miles away
7723 Milwaukee Ave
Dutch Bros Coffee
3.85 miles away
6312 82nd St
It Donut Shop
4.16 miles away
6023 82nd St
Texas Native Apparel
2.56 miles away
9209 Trenton Ave
Vibeage Boutique LLC
2.71 miles away
1223 N 15th St
Walmart Supercenter
3.65 miles away
6315 82nd St
Lizziequinn Boutique
3.78 miles away
6303 County Road 7420
Mainstream Boutique
3.81 miles away
7604 Milwaukee Ave
Buffalo Wild Wings
2.22 miles away
7638 82nd St
Albarran Mexican Bar & Grill
3.72 miles away
7722 Milwaukee Ave
Toro Burger Bar
3.77 miles away
7706 Milwaukee Ave
King Louie's
3.81 miles away
7604 Milwaukee Ave
Mr Brews Taphouse
3.81 miles away
7604 Milwaukee Ave
Please note this information may vary. If you come across anything inaccurate, please contact us.
Builder details
D.R. Horton
In 1978, D.R. Horton broke ground on our first home in Fort Worth, Texas. Since that day, the company has defined its success not by bricks and mortar, but by the satisfaction of the families that make our houses their homes. Our foundation is a single, guiding principle: a value-first dedication to the individual needs of each and every one of our nation’s homebuyers.
From first-time homebuyers to empty nesters, our family of brands provides a home for every stage in life. Our highly-trained, market experts are where you want to live, from New Jersey to Hawaii, providing unique, personalized services tailored to your individual needs. But the real value comes from the quality construction we put into every home, and the peace of mind that comes with a premium-backed warranty from America’s Number One Homebuilder.
We’ve come a long way, and while more people choose our family of brands over any other builder in the country, we never forget the most important thing of all – the families that choose us for their place to call home.
So continue to live out those dreams, America, and know we’ll be here for you every step of the way.
More new homes in Wolfforth, Texas
The Bentworth Plan by D.R. Horton
saved to favorites!
To see all the homes you’ve saved, visit the My Favorites section of your account.
Discover More Great Communities
Select additional listings for more information
Way to Go!
An agent will be in contact soon!
