The Bethany Plan
Ready to build
10 Salerno Drive Smyrna, Smyrna DE 19977
Custom Home by Lenape Builders
The Price Range displayed reflects the base price of the homes built in this community.
You get to select from the many different types of homes built by this Builder and personalize your New Home with options and upgrades.
3 BR
2 BA
2 GR
1,725 SQ FT
Claim this listing to update information, get access to exclusive tools and more!

Exterior 1/1
Overview
1725 Sq Ft
2 Bathrooms
2 Car Garage
3 Bedrooms
Single Family
The Bethany Plan Info
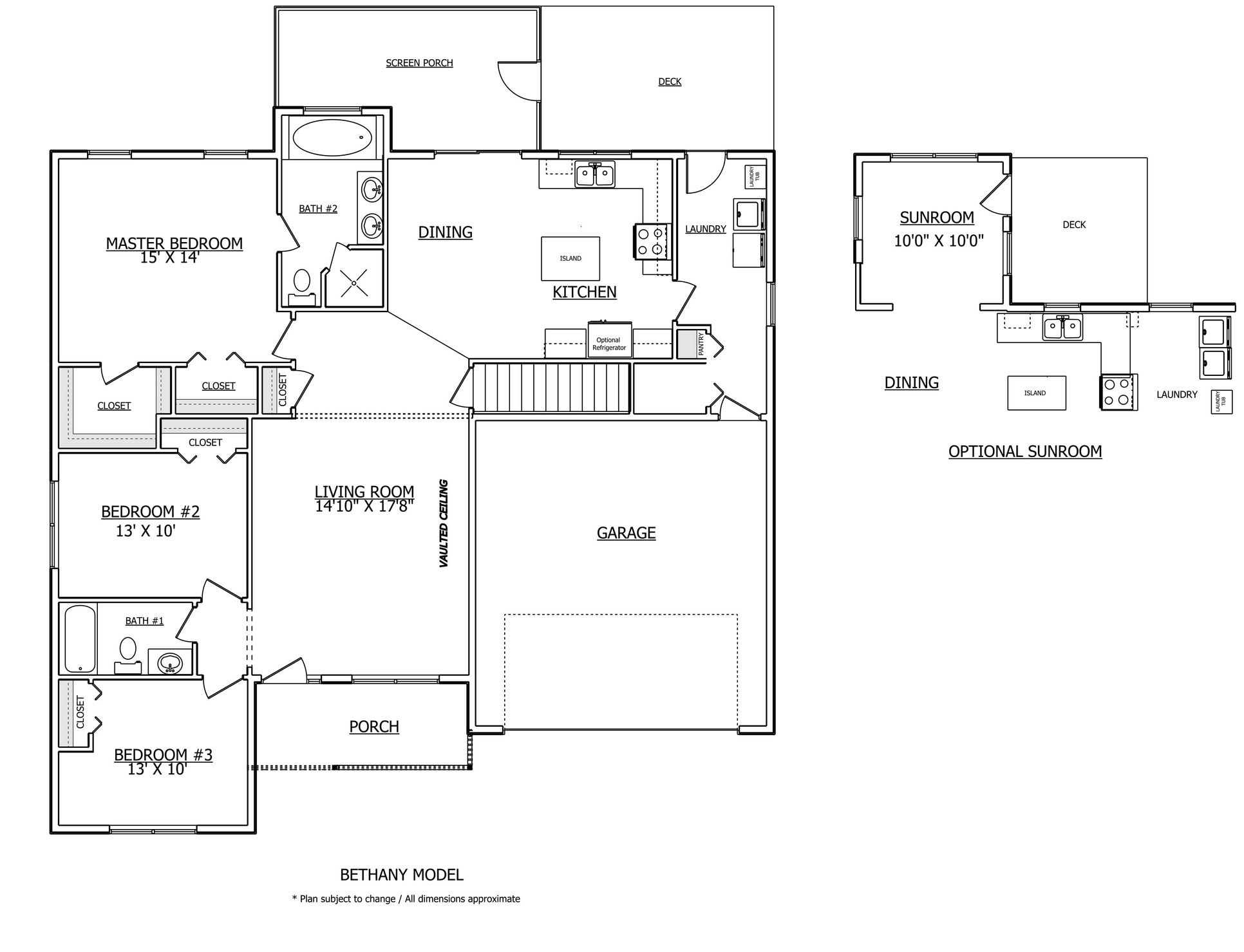
1725 sq. Ft. 3 bedroom 2 bath country kitchen with island and pantry cabinet vaulted living room ceiling master bath with tile shower soaking tub and 2 bowl vanity his and hers closets in master bedroom main floor laundry/mud room with additional pantry storage closet and laundry tub full unfinished basement 2-car garage sunroom and rear deck. To view the floor plan for the bethany please click.
Neighborhood
Community location & sales center
10 Salerno Drive Smyrna
Smyrna, DE 19977
10 Salerno Drive Smyrna
Smyrna, DE 19977
888-790-3488
Schools near Lenape Builders
- Smyrna School District
- John Bassett Moore Intermediate School
- Smyrna Middle School
- Smyrna High School
Actual schools may vary. Contact the builder for more information.
Builder details
Lenape Builders
More new homes in Smyrna, Delaware
The Bethany Plan by Lenape Builders
saved to favorites!
To see all the homes you’ve saved, visit the My Favorites section of your account.
Discover More Great Communities
Select additional listings for more information
Way to Go!
An agent will be in contact soon!