The Bristol Plan
Ready to build
7687 Anglebrook Road North, Mobile AL 36695
Home by D.R. Horton
at Anglebrook
Last updated 1 day ago
The Price Range displayed reflects the base price of the homes built in this community.
You get to select from the many different types of homes built by this Builder and personalize your New Home with options and upgrades.
3 BR
2 BA
2 GR
1,704 SQ FT
Claim this listing to update information, get access to exclusive tools and more!

Floorplan 1 1/1
Overview
1 Story
1704 Sq Ft
2 Bathrooms
2 Car Garage
3 Bedrooms
Single Family
The Bristol Plan Info
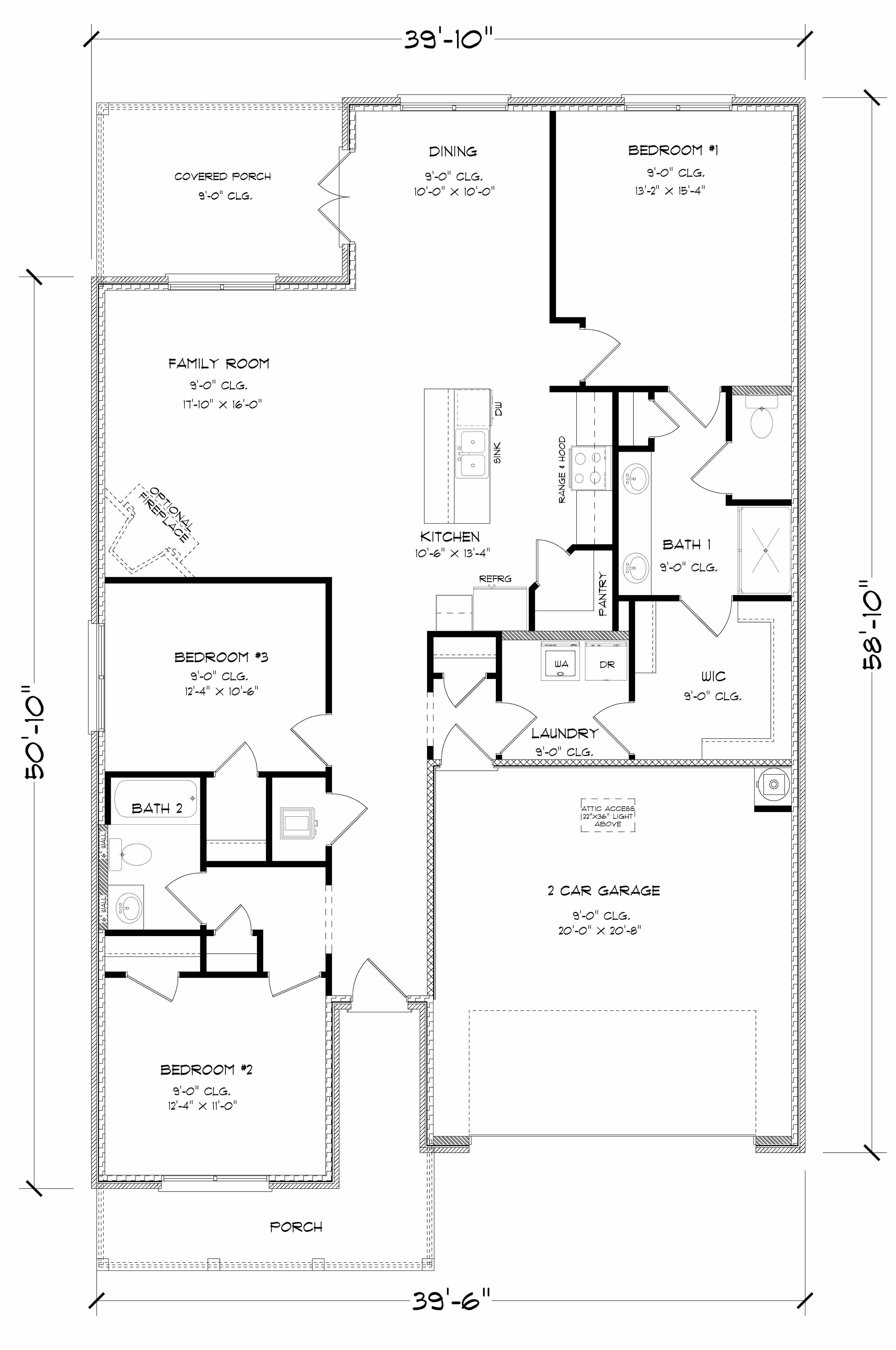
The Bristol floorplan offers three bedrooms, two bathrooms and a two-car garage with over 1,600 square feet of enjoyable living space. Entering the home, a short hall to one side leads to a bedroom, linen closet and a full bathroom with vanity and shower/tub combination. As you continue through the foyer there is another bedroom and adjacent to it is another short hall with a hall closet, access to the garage and entry to the laundry room. The laundry room offers a door into the primary bedroom's walk-in closet which leads into the primary bathroom. From the foyer as you enter the family room, it is open to the kitchen which offers stainless-steel appliances, shaker-style cabinetry, an island with granite countertops and an overhang that offers additional seating and a walk-in pantry. The Dining room is right off the kitchen and allows access to the covered porch. The primary bedroom sits to the back corner of the house with an attached ensuite and linen closet, dual sink vanity with granite countertops, separate water closet, standing shower and a large walk-in closet that also connects to the laundry room. The Bristol includes a Home is Connected smart home technology package which allows you to control your home with your smart device while near or away. This home is also being built to Gold FORTIFIED HomeTM certification so see your Sales Representative for details. Pictures may be of a similar home and not necessarily of the subject property. Pictures are rep
Floor plan center
View floor plan details for this property.
- Floor Plans
- Exterior Images
- Interior Images
- Other Media
Neighborhood
Community location & sales center
7687 Anglebrook Road North
Mobile, AL 36695
7687 Anglebrook Road North
Mobile, AL 36695
888-790-3488
Schools near Anglebrook
- Mobile County Schools
Actual schools may vary. Contact the builder for more information.
Amenities
Home details
Ready to build
Build the home of your dreams with the The Bristol plan by selecting your favorite options. For the best selection, pick your lot in Anglebrook today!
Builder details
D.R. Horton
In 1978, D.R. Horton broke ground on our first home in Fort Worth, Texas. Since that day, the company has defined its success not by bricks and mortar, but by the satisfaction of the families that make our houses their homes. Our foundation is a single, guiding principle: a value-first dedication to the individual needs of each and every one of our nation’s homebuyers.
From first-time homebuyers to empty nesters, our family of brands provides a home for every stage in life. Our highly-trained, market experts are where you want to live, from New Jersey to Hawaii, providing unique, personalized services tailored to your individual needs. But the real value comes from the quality construction we put into every home, and the peace of mind that comes with a premium-backed warranty from America’s Number One Homebuilder.
We’ve come a long way, and while more people choose our family of brands over any other builder in the country, we never forget the most important thing of all – the families that choose us for their place to call home.
So continue to live out those dreams, America, and know we’ll be here for you every step of the way.
More new homes in Mobile, Alabama
The Bristol Plan by D.R. Horton
saved to favorites!
To see all the homes you’ve saved, visit the My Favorites section of your account.
Discover More Great Communities
Select additional listings for more information
Way to Go!
An agent will be in contact soon!
