7394 Hawkins Manor West (The Bristol)
Under Construction
Mobile, AL 36695
Home by D.R. Horton
Last updated 3 days ago
The Price Range displayed reflects the base price of the homes built in this community.
You get to select from the many different types of homes built by this Builder and personalize your New Home with options and upgrades.
3 BR
2 BA
2 GR
1,704 SQ FT
Claim this listing to update information, get access to exclusive tools and more!

Floor Plan 1/1
Overview
1 Story
1704 Sq Ft
2 Bathrooms
2 Car Garage
3 Bedrooms
Single Family
7394 Hawkins Manor West (The Bristol) Home Info
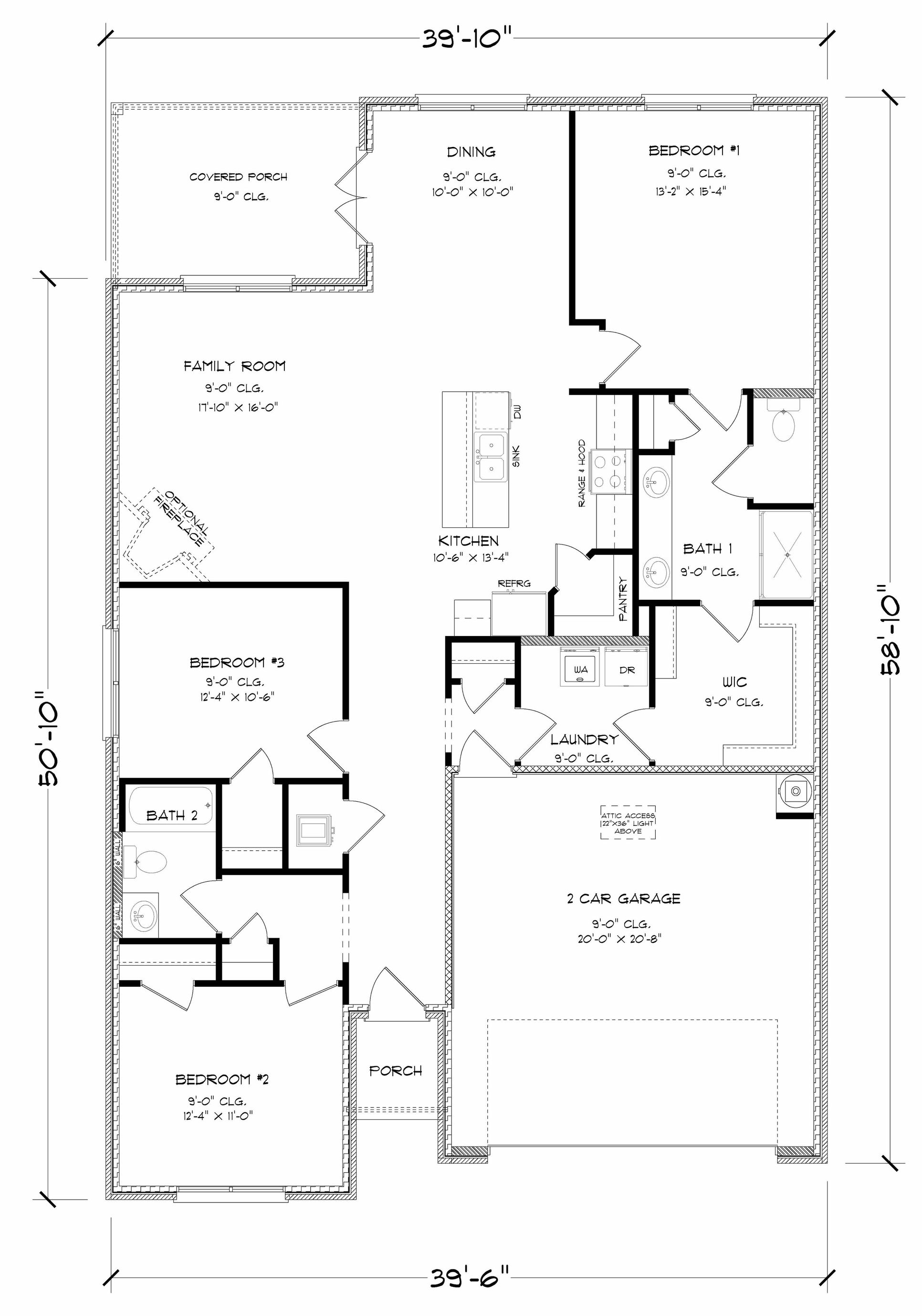
Check out 7394 Hawkins Manor West in Mobile, Alabama, one of our new homes in Hawkins Manor. When entering the community on Hawkins Manor, take the first left onto Hawkins Manor West. This beautiful home will be on the left across. The Bristol floorplan offers three bedrooms, two bathrooms and a two-car garage with over 1,600 square feet of enjoyable living space. Entering the home, a short hall to one side leads to a bedroom, linen closet and a full bathroom with vanity and shower/tub combination. As you continue through the foyer there is another bedroom and adjacent to it is another short hall with a hall closet, access to the garage and entry to the laundry room. The laundry room offers a door into the primary bedroom's walk-in closet which leads into the primary bathroom. From the foyer as you enter the family room, it is open to the kitchen which offers stainless-steel appliances, shaker-style cabinetry, an island with granite countertops and an overhang that offers additional seating and a walk-in pantry. The Dining room is right off the kitchen and allows access to the covered porch. The primary bedroom sits to the back corner of the house with an attached ensuite and linen closet, dual sink vanity with granite countertops, separate water closet, standing shower and a large walk-in closet that also connects to the laundry room. The Bristol includes a Home is Connected smart home technology package which allows you to control your home with your smart dev
Floor plan center
View floor plan details for this property.
- Floor Plans
- Exterior Images
- Interior Images
- Other Media
Neighborhood
Community location & sales center
7205 Hawkins Manor
Mobile, AL 36695
7205 Hawkins Manor
Mobile, AL 36695
888-790-3488
Schools near Hawkins Manor
- Mobile County Schools
- E.r. Dickson Elementary School
- Burns Middle School
- Davidson High School
Actual schools may vary. Contact the builder for more information.
Amenities
Home details
Now building
This home is currently under construction at 7394 Hawkins Manor West and will soon be available for move-in at Hawkins Manor. Contact D.R. Horton today to lock in your options!
Nearby schools
Mobile County Schools
Elementary school. Grades PK to 5.
- Public school
- Teacher - student ratio: 1:20
- Students enrolled: 1038
4645 Bit And Spur Rd, Mobile, AL, 36608
251-221-1180
Middle school. Grades 6 to 8.
- Public school
- Teacher - student ratio: 1:16
- Students enrolled: 710
6175 Girby Rd, Mobile, AL, 36693
251-221-2025
High school. Grades 9 to 12.
- Public school
- Teacher - student ratio: 1:18
- Students enrolled: 1535
3900 Pleasant Valley Rd, Mobile, AL, 36609
251-221-3084
Actual schools may vary. We recommend verifying with the local school district, the school assignment and enrollment process.
Neighborhood amenities
Walmart Neighborhood Market
0.69 mile away
6575 Airport Blvd
ALDI
0.92 mile away
975 Schillinger Rd S
Winn-Dixie
1.07 miles away
6300 Grelot Rd
Walmart Supercenter
1.34 miles away
685 Schillinger Rd S
Domke Market
1.40 miles away
720 Schillinger Rd S
Walmart Bakery
0.69 mile away
6575 Airport Blvd
Flourgirls Bakery
0.87 mile away
809 Hillcrest Rd
GNC
0.87 mile away
807 Hillcrest Rd
Bamboo Japanese Steak House
0.49 mile away
650 Cody Rd S
Zaxby's Chicken Fingers & Buffalo Wings
0.77 mile away
6551 Airport Blvd
Subway
0.78 mile away
1420 Cody Rd S
Poke Bowl Sushi Burrito & Boba-Hillcrest
0.80 mile away
907 Hillcrest Rd
Siam Thai Cuisine
0.80 mile away
915 Hillcrest Rd
Krispy Kreme Doughnuts
0.89 mile away
741 Hillcrest Rd
Starbucks
1.05 miles away
1363 Hillcrest Rd
PJ's Coffee
1.26 miles away
7449 Airport Blvd
Tropical Smoothie Cafe
1.36 miles away
7450 Airport Blvd
Dunkin'
1.40 miles away
505 Schillinger Rd S
New York Hi Style
0.51 mile away
7250 Vickers Ln
Ashbrooke Boutique
0.84 mile away
855 Hillcrest Rd
I Do Bridal & Formal
0.89 mile away
6920 Airport Blvd
Shoe Station
0.89 mile away
741 Hillcrest Rd
Run-N-Tri Co
0.93 mile away
6345 Airport Blvd
Bonefish Grill
0.82 mile away
6955 Airport Blvd
Up in Smoke
0.97 mile away
1222 Hillcrest Rd
Buffalo Wild Wings
0.99 mile away
6341 Airport Blvd
Ollie Mediterranean Grill
1.01 miles away
1248 Hillcrest Rd
LongHorn Steakhouse
1.16 miles away
6201 Airport Blvd
Please note this information may vary. If you come across anything inaccurate, please contact us.
Builder details
D.R. Horton
In 1978, D.R. Horton broke ground on our first home in Fort Worth, Texas. Since that day, the company has defined its success not by bricks and mortar, but by the satisfaction of the families that make our houses their homes. Our foundation is a single, guiding principle: a value-first dedication to the individual needs of each and every one of our nation’s homebuyers.
From first-time homebuyers to empty nesters, our family of brands provides a home for every stage in life. Our highly-trained, market experts are where you want to live, from New Jersey to Hawaii, providing unique, personalized services tailored to your individual needs. But the real value comes from the quality construction we put into every home, and the peace of mind that comes with a premium-backed warranty from America’s Number One Homebuilder.
We’ve come a long way, and while more people choose our family of brands over any other builder in the country, we never forget the most important thing of all – the families that choose us for their place to call home.
So continue to live out those dreams, America, and know we’ll be here for you every step of the way.
More new homes in Mobile, Alabama
7394 Hawkins Manor West (The Bristol) by D.R. Horton
saved to favorites!
To see all the homes you’ve saved, visit the My Favorites section of your account.
Discover More Great Communities
Select additional listings for more information
Way to Go!
An agent will be in contact soon!
