The Cove Lot 70 RH
Under Construction
Westerville, OH 43081
Home by Romanelli and Hughes Homes
at The Cove
The Price Range displayed reflects the base price of the homes built in this community.
You get to select from the many different types of homes built by this Builder and personalize your New Home with options and upgrades.
3 BR
3 BA
3 GR
2,609 SQ FT
Claim this listing to update information, get access to exclusive tools and more!

Exterior 1/2
Overview
Single Family
The Cove Lot 70 RH Home Info
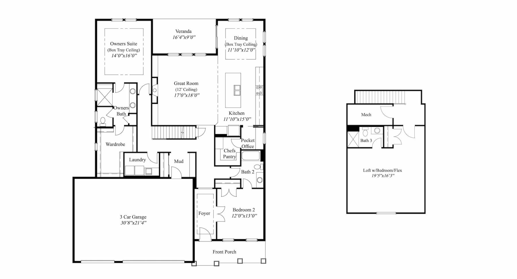
10 ceilings & 8 doors are throughout the first floor. Tray ceilings adorn the foyer owners suite and dining. The kitchen includes a pocket office & chefs pantry. The owners suite has an oversized shower and huge wardrobe w/laundry access door. A covered veranda first floor guest bedroom w/double doors a private mud entry w/bench & closet and a 2nd floor loft bedroom/flex room w/full bath complete this beautiful home.
Neighborhood
Community location & sales center
<br/> Westerville, OH 43081
<br/> Westerville, OH 43081
888-790-3488
Schools near The Cove
- Westerville City Schools
- Mcvay Elementary School
- Walnut Springs Middle School
- Westerville-north High School
- Worthington City Schools
Actual schools may vary. Contact the builder for more information.
Amenities
The community is home to a variety of schools, each with something unique to offer students and families. The school district includes Westerville Central High School, as well as a number of elementary and middle schools. There are also several private schools in the area, including St. Francis de Sales Catholic School and Columbus Academy. This quaint little town is home to many wonderful attractions. The Cove also has several beautiful parks, including Alum Creek State Park and Hoover Reservoir. These parks are perfect for a picnic lunch or a hike through the woods.
The Cove is a great community for shopping and dining. There are plenty of options for both in the area. Westerville Square is a popular spot for shopping. It features several retailers, including Target, Walmart, and Best Buy. For dining, there are many restaurants to choose from, including Pizza Hut, Olive Garden, and Red Robin. There is also a movie theater and a bowling alley in the square. The Easton Town Center is another great option for shopping and dining. If you're looking for a great place to raise a family, The Cove is an excellent choice. More info about The Cove
Home details
Now building
This home is currently under construction at The Cove Lot 70 RH and will soon be available for move-in at The Cove. Contact Romanelli and Hughes Homes today to lock in your options!
Community & neighborhood
Community services & perks
- Park
Nearby schools
Westerville City Schools
Mcvay Elementary School
Elementary school. Grades KG to 5.
Public school
Teacher - student ratio: 1:22
Students enrolled: 598
614-797-7230
270 S Hempstead Rd, Westerville, OH, 43081
Walnut Springs Middle School
Middle school. Grades 6 to 8.
Public school
Teacher - student ratio: 1:16
Students enrolled: 914
614-797-6700
888 E Walnut St, Westerville, OH, 43081
Westerville-north High School
High school. Grades 9 to 12.
Public school
Teacher - student ratio: 1:17
Students enrolled: 1524
614-797-6200
950 County Line Rd, Westerville, OH, 43081
Actual schools may vary. We recommend verifying with the local school district, the school assignment and enrollment process.
Neighborhood amenities
Wine & Brew Emporium
1.16 miles away
6154 S Sunbury Rd
Kroger
1.20 miles away
5991 S Sunbury Rd
ALDI
1.52 miles away
5996 Westerville Rd
Walmart Supercenter
1.61 miles away
50 E Schrock Rd
Grocery Gazelle
1.73 miles away
520 S State St
Kroger Bakery
1.20 miles away
5991 S Sunbury Rd
Cakes of Distinction
1.34 miles away
3371 Hunt Club Rd N
Westerville Family Chiropractic Center
1.52 miles away
528 S Otterbein Ave
Walmart Bakery
1.61 miles away
50 E Schrock Rd
Kroger Bakery
1.76 miles away
55 W Schrock Rd
Traditions at Westerville
0.36 mile away
975 S Sunbury Rd
Meat Eat Inc
0.43 mile away
1254 Colston Dr
Classic Pizza
0.44 mile away
906 S Sunbury Rd
Hot Soup Kitchen Reach & Feed
0.54 mile away
877 S Spring Rd
Tim Hortons
1.02 miles away
6259 S Sunbury Rd
Lic Hillthmv
1.02 miles away
6259 S Sunbury Rd
Tim Hortons
1.02 miles away
6259 S Sunbury Rd
Starbucks
1.20 miles away
5991 S Sunbury Rd
Clean Juice
1.49 miles away
6318 E Dublin Granville Rd
Tim Hortons
1.55 miles away
772 S State St
Blissed Out Boutique LLC
1.20 miles away
203 Fairdale Ave
Cool Tie Dye
1.33 miles away
3668 Managua Dr
Kohl's
1.35 miles away
133 Huber Village Blvd
Family Dollar
1.55 miles away
5950 Westerville Rd
Walmart Supercenter
1.61 miles away
50 E Schrock Rd
Brew-Stirs Fun Pub
1.14 miles away
6035 S Sunbury Rd
Larry B's Sports Lounge
1.58 miles away
5926 Westerville Rd
Average Joe's Pub & Grill
2.38 miles away
4949 E Dublin Granville Rd
Two Girls One Bar LLC
2.38 miles away
4949 E Dublin Granville Rd
Governors Cigar Lounge
2.47 miles away
33 E College Ave
Please note this information may vary. If you come across anything inaccurate, please contact us.
Builder details
Romanelli and Hughes Homes
More new homes in Westerville, Ohio
The Cove Lot 70 RH by Romanelli and Hughes Homes
saved to favorites!
To see all the homes you’ve saved, visit the My Favorites section of your account.
Discover More Great Communities
Select additional listings for more information
Way to Go!
An agent will be in contact soon!